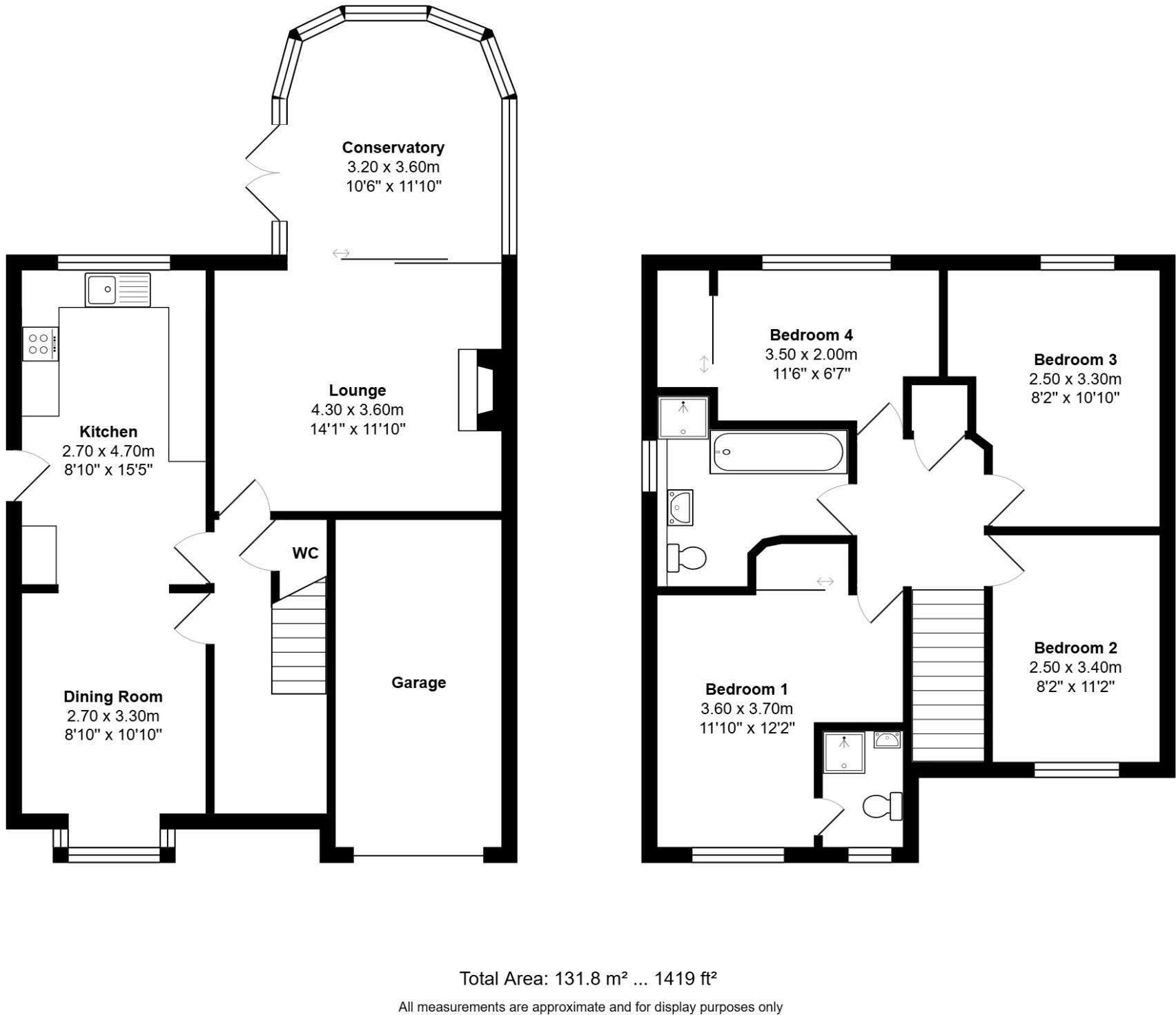
Four-bedroom detached property with garage, garden and open-plan living for growing households..
Four double bedrooms with en suite to the main bedroom
Set on a decent plot in a quiet West Winch setting, this four-bedroom detached house suits families needing flexible space. The ground floor offers an open-plan kitchen/dining area for everyday life and entertaining, a spacious lounge leading to a conservatory, plus a guest WC and useful side access.
Upstairs there are four well-proportioned bedrooms — the main bedroom has an en suite and built-in storage — and a generous family bathroom with both bath and shower. Parking is straightforward with space for multiple vehicles and an integral garage, while the enclosed rear garden provides safe outdoor space for children and pets.
Built in the early 1990s with double glazing and gas central heating, the property is presented in good order by the current owners and offers practical living rather than major renovation work. Buyers should note a slightly above-average local crime level and that the EPC is pending; a buyer survey and checks on services are recommended before exchange.
4 bedroom detached house for sale in West Winch, King's Lynn, Norfolk, PE33 — £367,500 • 4 bed • 2 bath • 1257 ft²
4 bedroom detached house for sale in Southfield Drive, West Winch, King's Lynn, PE33 — £465,000 • 4 bed • 2 bath • 1642 ft²
4 bedroom house for sale in Mason Gardens, West Winch, King's Lynn, Norfolk, PE33 — £300,000 • 4 bed • 2 bath
4 bedroom detached house for sale in Row Hill, King's Lynn, PE33 — £390,000 • 4 bed • 3 bath • 1716 ft²
4 bedroom detached house for sale in Southfield Drive, West Winch, PE33 — £350,000 • 4 bed • 2 bath • 1766 ft²
4 bedroom detached house for sale in Eller Drive, West Winch, King's Lynn, Norfolk, PE33 — £350,000 • 4 bed • 2 bath • 1732 ft²










































































