Spacious plot, two garages and excellent commuter links — ideal for growing families..
Chain-free four-bedroom detached home
Large rear garden and decent plot size
Driveway plus two garages for parking/storage
Single family bathroom only upstairs
Loft partly boarded and insulated; no fixed ladder
EPC D (68) and council tax band E
Built 1970s—some dated internal décor
Close to train station and Bluewater shopping centre
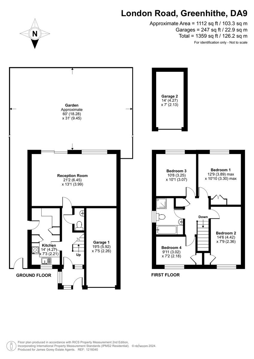
This chain-free four-bedroom detached house on London Road offers a generous garden, off-street parking and two garages — practical benefits for family life and hobby storage. Built in the early 1970s, the house provides solid bones, gas central heating and double glazing, making it comfortable from day one while leaving scope for updating.
Accommodation is arranged over multiple storeys with a convenient ground-floor WC and a single family bathroom upstairs, so families should note only one full bathroom serves four bedrooms. The loft is partly boarded and insulated but lacks a fixed ladder, and some internal areas show dated décor typical of the era, so cosmetic refurbishment would add significant value.
Location adds clear appeal: low local crime, fast broadband, and easy access to the nearby train station and Bluewater Shopping Centre. Good local schools and a range of amenities — pubs, shops, playgrounds and a community centre — make this a practical home for commuters and families seeking space close to services.
Practical considerations: EPC rated D (68) and council tax in band E mean running costs are above average. The property is Freehold and not at risk of flooding. Buyers seeking a ready-to-move-in showhome may find modernisation necessary, while those looking to add value will find clear potential.
3 bedroom detached house for sale in Dawes Close, Kent, DA9 — £560,000 • 3 bed • 1 bath • 1238 ft²
4 bedroom end of terrace house for sale in King Edward Road, Greenhithe, DA9 — £350,000 • 4 bed • 1 bath • 937 ft²
4 bedroom terraced house for sale in Calcroft Avenue, Greenhithe, Kent, DA9 — £500,000 • 4 bed • 3 bath • 1572 ft²
4 bedroom detached house for sale in Plantation Close, Greenhithe, Kent, DA9 — £500,000 • 4 bed • 2 bath • 1334 ft²
3 bedroom terraced house for sale in London Road, Greenhithe, DA9 — £325,000 • 3 bed • 1 bath • 969 ft²
4 bedroom detached house for sale in Vale Road, Northfleet, Gravesend, Kent, DA11 — £600,000 • 4 bed • 1 bath • 942 ft²










































































