Quiet village location with garden, garage and renovation potential for families.
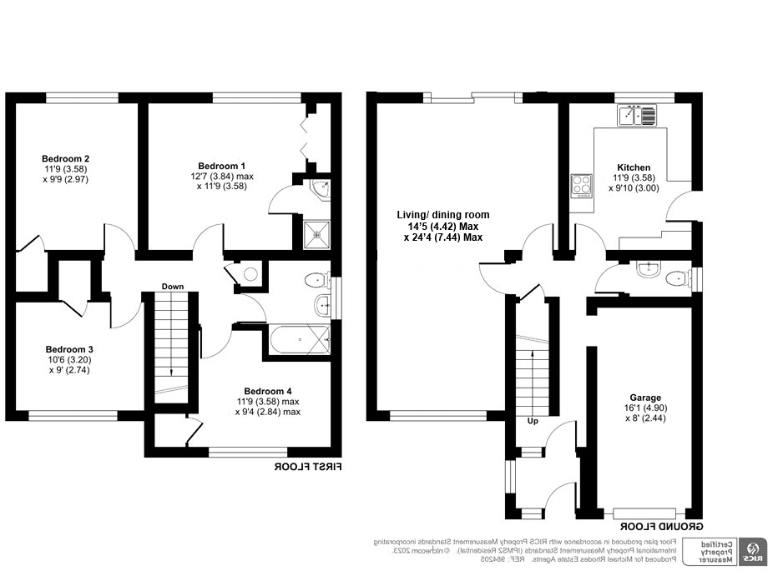
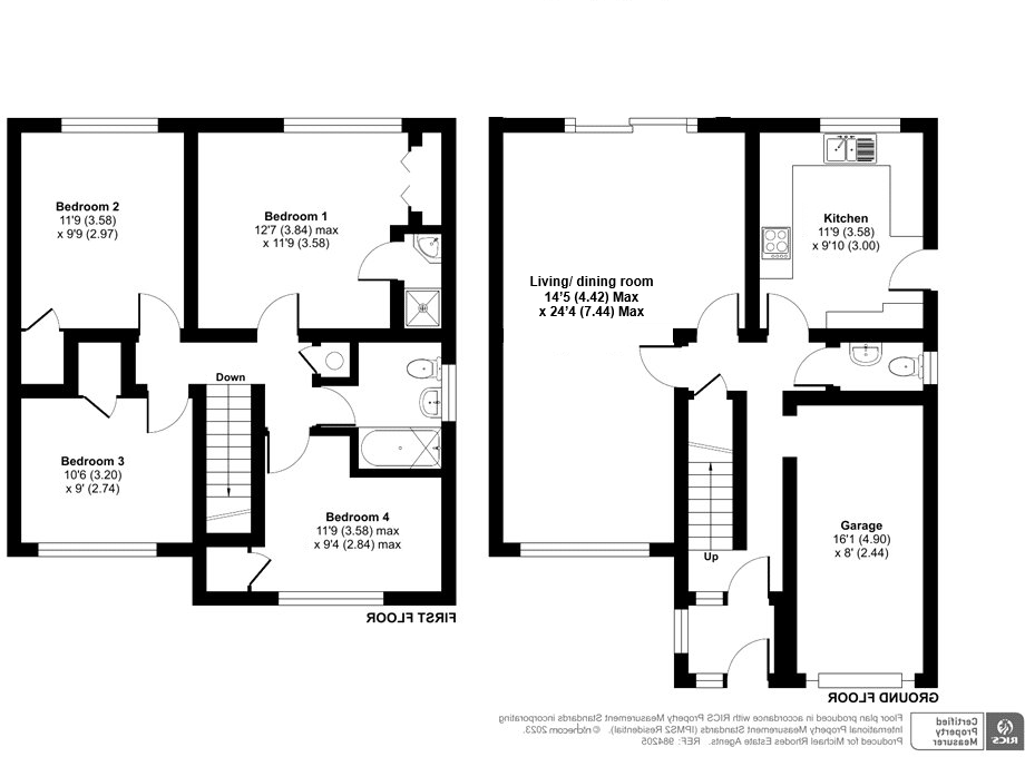
- Four bedrooms in a detached 1960s house
- Single family bathroom only, may need modernising
- Garage plus off-street driveway parking
- Private rear garden with patio and shed
- Total area about 966 sqft, modest for four beds
- Freehold tenure in an affluent, low-crime area
- Slow broadband speeds; consider upgrade for home working
- Good local schools and leisure amenities nearby
Set on a popular road in West Wellow, this freehold four-bedroom detached home offers traditional 1960s charm, a garage and off-street parking. The house sits on a decent plot with a private rear garden and patio, appealing to families who want outdoor space and parking in a peaceful, affluent neighbourhood.
Internally the property provides spacious living with two main reception rooms and four bedrooms across two storeys, all within approximately 966 sqft. The single family bathroom and period fittings suggest straightforward updating could add modern convenience and value. Broadband speeds are slow, which may affect home working until improved.
Local amenities are strong: good-rated primary and secondary schools nearby, accessible leisure facilities, and low crime. The home’s size is modest for four bedrooms, so it suits buyers seeking an affordable family-sized detached house with renovation potential rather than a large modern footprint.
This is a practical choice for a buyer who values location, a private garden and parking, and who is prepared to carry out cosmetic or systems updates to modernise the property and maximise value.
4 bedroom detached house for sale in Arun Way, West Wellow, Romsey, Hampshire, SO51 — £600,000 • 4 bed • 1 bath • 1614 ft²
4 bedroom detached house for sale in Stour Close, West Wellow, Romsey, Hampshire, SO51 — £595,000 • 4 bed • 1 bath • 1203 ft²
4 bedroom detached house for sale in Old Cottage Close, West Wellow, Romsey, Hampshire, SO51 — £700,000 • 4 bed • 2 bath • 1756 ft²
4 bedroom detached house for sale in Whinwhistle Road, East Wellow, Romsey, Hampshire, SO51 — £800,000 • 4 bed • 3 bath • 2024 ft²
5 bedroom detached house for sale in School Road, West Wellow, Romsey, Hampshire, SO51 — £685,000 • 5 bed • 2 bath • 1786 ft²
4 bedroom terraced house for sale in Old Cottage Close, West Wellow, ROMSEY, SO51 — £435,000 • 4 bed • 2 bath • 1087 ft²


























































