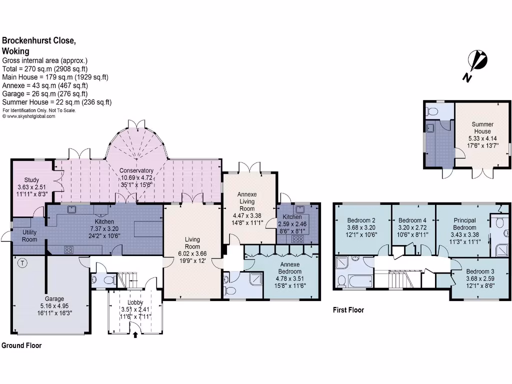
**Standout Features:**
- Spacious detached family home in a quiet cul-de-sac
- 5 bedrooms, including a principal suite with en suite
- Self-contained annexe ideal for guests or family
- Bright conservatory and separate study
- Well-maintained, south-facing garden with summer house
- Double garage and ample driveway parking
- Modern kitchen with integrated appliances and utility room
- Excellent transport links to London and local amenities
- Close to highly rated schools
**Summary:**
Discover a delightful and spacious detached family home nestled in a tranquil cul-de-sac in Horsell, Woking. Spanning over 2,500 sq ft, the property boasts an elegantly designed modern kitchen with integrated appliances, a generous living room featuring a log burner, and a bright conservatory that seamlessly connects to a well-maintained, south-facing garden. The primary suite offers an en suite bathroom, while four additional bedrooms on the first floor provide ample space for a growing family.
The added bonus of a self-contained annexe allows for versatile living options, making it perfect for guests, family, or an au pair. The property also benefits from a double garage and extensive driveway parking, ensuring convenience for multiple vehicles. With excellent transport links to London and a host of nearby amenities, this home promises both comfort and practicality. Excellent local schools and extensive recreational options make this an ideal choice for families seeking a peaceful yet connected lifestyle. Don’t miss out on this exceptional opportunity!
4 bedroom detached house for sale in Castle Road, Horsell, Woking, Surrey, GU21 — £1,000,000 • 4 bed • 2 bath • 1934 ft²
6 bedroom detached house for sale in Woodstock Close, Horsell, Surrey, GU21 — £1,175,000 • 6 bed • 4 bath • 2984 ft²
4 bedroom detached house for sale in Horsell, GU21 — £1,250,000 • 4 bed • 2 bath • 2275 ft²
4 bedroom detached house for sale in Brockenhurst Close, Horsell, Surrey, GU21 — £875,000 • 4 bed • 1 bath • 1571 ft²
4 bedroom detached house for sale in Orchard Drive, Horsell, GU21 — £900,000 • 4 bed • 2 bath • 1763 ft²
4 bedroom detached house for sale in Wheatsheaf Close, Horsell, Surrey, GU21 — £1,095,000 • 4 bed • 2 bath • 2071 ft²










































































































































































































