**Standout Features:**
- Three spacious bedrooms
- End terrace with ample garden space
- Driveway and detached garage
- Prime rural location in Upperton, Airdrie
- Excellent renovation potential
- Low council tax
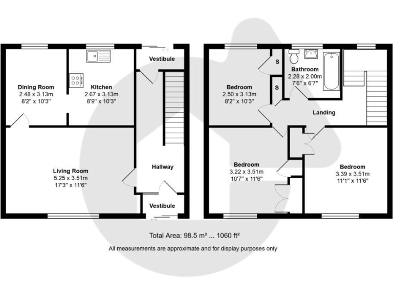
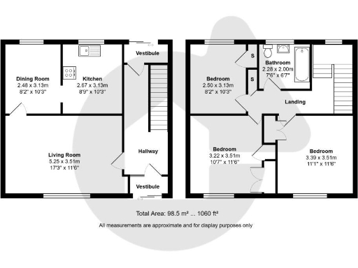
This charming three-bedroom end-terrace home in the tranquil village of Upperton, Airdrie, offers a spacious 1,060 sq. ft. layout ideal for families, first-time buyers, or investors seeking a project with notable potential for enhancement. Positioned on a generous corner plot, it boasts a well-kept private garden and off-street parking, complemented by a detached garage that adds convenience.
Inside, the property features a welcoming entrance that leads to a large lounge and a separate dining room, both providing delightful garden views. The well-sized kitchen and the main floor layout make it excellent for both everyday living and entertaining. Upstairs, you'll find three roomy bedrooms and a family bathroom that offers room for updates. An undeveloped loft space presents additional possibilities for conversion.
While the property requires renovation, this presents an exciting opportunity for buyers to add their personal touch and increase its value. Located close to key amenities in Airdrie and Coatbridge, with great transport links to Glasgow and Edinburgh, this home combines rural charm with accessibility. Experience the potential of this delightful house and envision the life you can create here! Don't miss out on this opportunity to make it your own.















































