Well-presented two-bed home with driveway, garden and modern kitchen.
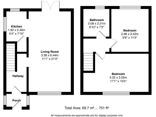
Two bedrooms, circa 751 sqft living space
This two-bedroom semi-detached house in Southport offers practical, well-presented living across circa 751 sqft, aimed squarely at first-time buyers or downsizers seeking turn-key accommodation. The ground floor flows from a spacious lounge into a dining area, while a modern kitchen with integrated appliances provides a ready-made cooking space. Upstairs are two comfortable bedrooms and a stylish three-piece bathroom.
Outside benefits include a private driveway for off-street parking and a sun-catching rear garden with a decent plot size, low-maintenance layout and good outdoor privacy. The home is freehold and offered chain-free, simplifying purchase. Its position near Ainsdale Village gives easy access to local shops, cafes, parks and well-regarded schools.
Buyers should note a few practical points: the property has an EPC rating of D and heating is provided via mains gas with room heaters, so further energy improvements or central heating upgrades may be desirable. Double glazing is present but the install date is unknown. Broadband and mobile signal are average for the area. There is no flooding risk recorded, council tax band is low, and the neighbourhood is generally affluent with average crime levels.
Overall this is a straightforward, comfortable home with modern touches and scope to add value by upgrading heating and energy efficiency. Viewings are recommended for anyone seeking an accessible, move-in-ready property in a popular coastal suburb.
3 bedroom semi-detached house for sale in Upper Aughton Road, Southport, Merseyside, PR8 5NJ, PR8 — £220,000 • 3 bed • 2 bath • 1319 ft²
3 bedroom semi-detached house for sale in Harrogate Way, Southport, PR9 — £240,000 • 3 bed • 2 bath • 1249 ft²
2 bedroom semi-detached house for sale in Southbank Road, Southport, PR8 6QJ, PR8 — £200,000 • 2 bed • 1 bath • 805 ft²
2 bedroom semi-detached house for sale in East Street, Southport, PR9 — £162,500 • 2 bed • 1 bath • 845 ft²
3 bedroom semi-detached house for sale in Limont Road, Southport, Merseyside, PR8 3NJ, PR8 — £290,000 • 3 bed • 1 bath • 871 ft²
2 bedroom semi-detached house for sale in Old Park Lane, Southport, PR9 — £175,000 • 2 bed • 1 bath • 911 ft²










































































































































