**Standout Features:**
- Large Grade II listed public house, ideal for investment or conversion
- Historic location in the center of Boston, alongside the picturesque River Haven
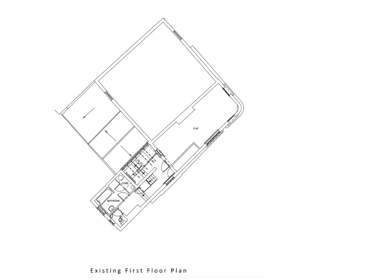
- Existing accommodation: 199 sqm (2,140 sq ft) with potential for conversion into 3 apartments
- Unique riverside courtyard garden, enhancing the property's outdoor appeal
- Full planning consent granted for residential conversion
This historic Grade II listed pub in the heart of Boston presents a remarkable investment opportunity for both developers and entrepreneurial minds. With a generous 2,140 sq ft of interior space, it currently houses a vibrant public house and manager's quarters but is primed for transformation into three stylish apartments, as outlined in the recently approved planning consent. It boasts a charming riverside courtyard garden, offering a serene retreat just steps from bustling town amenities.
While the property showcases beautiful period features and a classic brick exterior, it also faces the challenges typically associated with older structures, such as maintenance and renovation considerations. However, its location on one of Boston’s oldest streets provides an exclusive charm and accessibility to an array of shops and services, ensuring it remains a desirable asset. This property is more than just a pub; it’s a canvas for future potential. Don’t miss out on this unique opportunity that marries historic appeal with significant development potential!
Pub for sale in The Britannia 4 Church Street, Boston, PE21 6NW, PE21 — £175,000 • 1 bed • 1 bath • 2044 ft²
Commercial development for sale in South Street, Boston, Lincolnshire, PE21 6HT, PE21 — £200,000 • 1 bed • 1 bath • 3165 ft²
Commercial property for sale in Swineshead Bridge, Boston, PE20 — £380,000 • 5 bed • 4 bath • 6506 ft²
Commercial property for sale in London Road, Boston, PE21 — £849,000 • 17 bed • 10 bath • 7101 ft²
Land for sale in Former Little Peacock & Adjoining Land, 53 Wormgate, Boston, Lincolnshire, PE21 6NS, PE21 — £675,000 • 1 bed • 1 bath • 20909 ft²
High street retail property for sale in Market Place, Boston, PE21 — £300,000 • 1 bed • 1 bath • 3308 ft²


































































