Spacious Victorian two-bedroom with large garden and outbuilding in sought-after Lower Halstow.
Double-glazed Victorian end-terrace with characterful rooms
Generous rear garden plus outbuilding/store and separate bar room
Modern fitted kitchen and shower room, ready to use
Downstairs cloakroom adds practical everyday convenience
Solid brick walls likely without insulation—possible upgrade needed
Freehold tenure, no flood risk, mains gas central heating
Good local amenities, well-regarded primary school nearby
Fast broadband and excellent mobile signal in a very affluent area
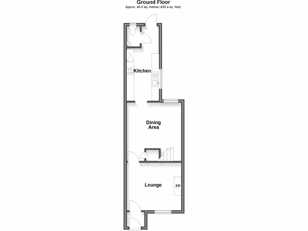
This two-bedroom end-of-terrace Victorian house offers a roomy, characterful layout ideal for first-time buyers or those downsizing. The home feels larger than it appears, with a separate dining area, modern fitted kitchen, and a useful downstairs cloakroom. Double glazing and mains gas central heating provide comfort and efficiency. Outside, a generous rear garden and an outbuilding (store/bar rooms) extend living and storage options and suit gardening or entertaining.
Located in sought-after Lower Halstow, the property sits in a peaceful village close to a well-regarded primary school, an award-winning gastropub, and the Saxon Shore Way. The Quayside and yacht club are nearby for watersports, while local footpaths and cycle routes appeal to nature lovers and dog owners. Despite the rural feel, fast transport links to London are accessible from nearby stations.
Practical points to note: the house dates from before 1900 and has solid brick walls assumed to lack cavity insulation, so buyers may want to budget for thermal upgrades and potential historic-property maintenance. The layout includes additional store and bar rooms that may need finishing or repurposing. Tenure is freehold, council tax is described as affordable, and there is no flood risk.
Overall this property blends village charm with usable indoor and outdoor space, offering immediate move-in comfort alongside clear scope to add value through sympathetic improvements.
2 bedroom end of terrace house for sale in Breach Lane, Lower Halstow, Sittingbourne, Kent, ME9 — £208,500 • 2 bed • 1 bath • 1034 ft²
2 bedroom terraced house for sale in High Street, Wouldham, ME1 — £275,000 • 2 bed • 1 bath • 657 ft²
3 bedroom end of terrace house for sale in Charming village home with generous garden, garage en bloc, and peaceful riverside setting, ME9 — £325,000 • 3 bed • 1 bath • 872 ft²
2 bedroom terraced house for sale in Orchard Street, Rainham, Gillingham, Kent, ME8 — £230,000 • 2 bed • 1 bath • 717 ft²
3 bedroom terraced house for sale in Kent Road, Halling, Rochester, Kent, ME2 — £290,000 • 3 bed • 1 bath • 580 ft²
2 bedroom terraced house for sale in Olivine Close, Sittingbourne, Kent, ME10 — £260,000 • 2 bed • 1 bath • 498 ft²






























































































