SN14 7HU - 3 bedroom village house for sale in Castle Combe, SN14

View on Property Piper

3 bedroom village house for sale in Castle Combe, SN14

Summary - THE BRIDGE HOUSE THE STREET CASTLE COMBE CHIPPENHAM SN14 7HU

3 bed 2 bath Village House

Spacious historic home with large garden and outbuildings in Castle Combe.
Iconic Grade II listed Cotswold stone house
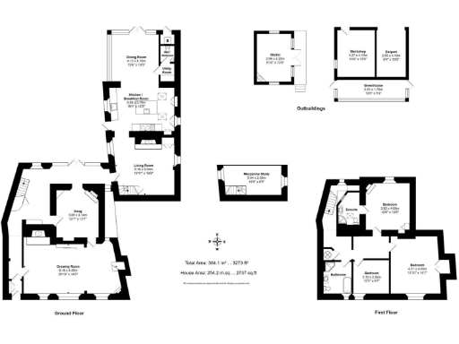
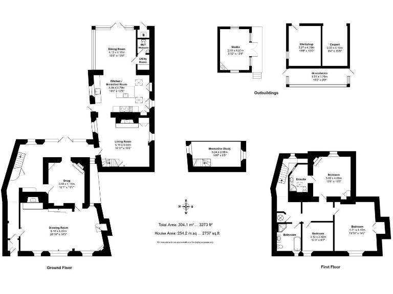
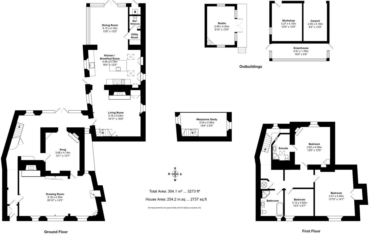
The Bridge House is a rare Grade II listed Cotswold stone house occupying an iconic spot in Castle Combe. Over 2,700 sq ft of well-proportioned living space centres on an impressive open-plan kitchen/dining room with vaulted ceiling and oil-fired Aga, generous ground-floor reception rooms and original fireplaces that retain strong period character. The large, private garden (c.0.41 acre) and powered outbuildings add practical flexibility for a home studio, workshop and ample parking accessed via a private driveway.

The current layout provides three bedrooms and two bathrooms with scope to create a fourth bedroom and en suite on the mezzanine above the snug — planning permission was secured in 2001 and is understood still to be valid. Modern upgrades include underfloor heating across much of the ground floor and mains services; superfast broadband is available on-site though mobile coverage is very limited.

Important practical points are clear: the property uses oil-fired heating and sits in a high flooding-risk zone, which will influence insurance and mitigation costs. Its Grade II listing and Conservation Area location will restrict alterations and require listed-building consents for significant changes. The area is rural and tranquil but records indicate higher local crime levels and slow mobile signal — factors to consider for family logistics and security.

This house will suit buyers seeking a characterful, substantial village home with a large garden and outbuildings — those who value historic detail and space over full modern convenience. It offers immediate, picturesque living with potential to reconfigure living accommodation, provided purchasers are comfortable working within listed-building constraints and addressing flood-risk and services considerations.

Property Details

Brochure Descriptions

Image Descriptions

Floorplan Description

Rooms

Textual Property Features

Target Audience

AI Tags

Detected Visual Features

Nearby Schools

Nearest Bars And Restaurants

,,,,}

Nearest General Shops

,,}

Nearest Grocery shops

,,}

Nearest Supermarkets

,,}

Nearest Religious buildings

,,}

Nearest Medical buildings

,,,}

Nearest Airports

}

Nearest Leisure Facilities

,,,,}

Nearest Tourist attractions

,,}

Nearest Train stations

,,,,}

Nearest Bus stations and stops

,,,,}

Nearest Hotels

,,}

Tags

Local Market Stats

AirBnB Data

Similar Properties

Meta

High Res Images

Compatible Images

Low res Images

Thumbnails

Raw Images

High Res Floorplan Images

Compatible Floorplan Images

Low res Floorplan Images

FloorplanImages Thumbnail

Raw Floorplan Images