**Standout Features:**
- 50% shared ownership (with rent on the remainder)
- Attractive mid-townhouse built in 2019
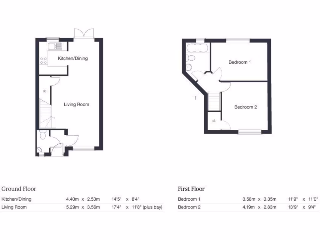
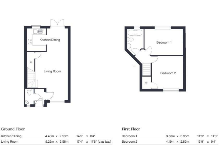
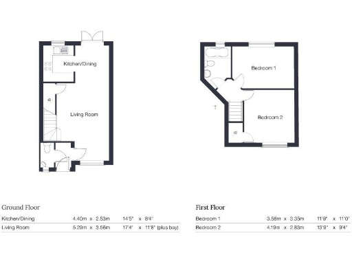
- Two spacious double bedrooms
- Open-plan lounge/dining area with ample natural light
- Larger-than-average private garden, ideal for entertaining
- Off-street parking and low service charge (£5/month)
- Excellent local amenities and low crime rate
- Chain-free opportunity
Welcome to a fabulous part-buy, part-rent opportunity in a sought-after village location. This modern mid-townhouse, built in 2019, offers two generous double bedrooms and a bright, open-plan lounge/dining room—perfect for family gatherings or entertaining guests. The larger-than-average rear garden presents ample space for outdoor activities and a relaxing retreat, while off-street parking adds to its convenience.
Ideal for young families or first-time buyers, this property is chain-free and part of a shared ownership scheme via Plus Dane Housing, making homeownership accessible and affordable. Monthly rent is competitively priced at £269.27, and service charges are remarkably low, creating a great blend of budget-friendly living and comfort.
Enjoy the tranquility of rural life while being close to essential amenities, schools with good ratings, and excellent broadband speeds. Embrace the potential of your future dream home—this opportunity won't last long!
2 bedroom end of terrace house for sale in Gibbs Avenue, Eaton, Congleton, Cheshire, CW12 — £115,000 • 2 bed • 1 bath • 862 ft²
2 bedroom semi-detached house for sale in Forge Lane, Congleton, CW12 — £129,950 • 2 bed • 1 bath • 732 ft²
2 bedroom apartment for sale in Long Beam Road, Sandbach, Cheshire, CW11 — £97,500 • 2 bed • 2 bath • 765 ft²
2 bedroom end of terrace house for sale in Elbourne Drive, Scholar Green, ST7 — £70,000 • 2 bed • 2 bath • 637 ft²
2 bedroom terraced house for sale in Cotton Field Road, Holmes Chapel, Crewe, Cheshire, CW4 — £62,500 • 2 bed • 1 bath
2 bedroom end of terrace house for sale in Dobson Way, Congleton, CW12 — £168,750 • 2 bed • 1 bath • 691 ft²


















































