Extended three-bedroom home with large south garden and double garage.
Victorian detached with character features and modernised interior
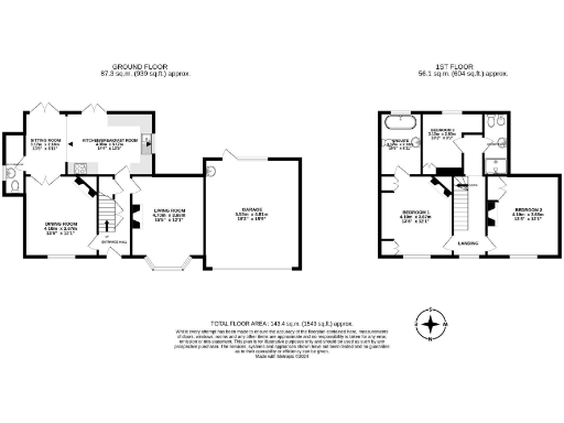
A handsome Victorian detached family home, recently extended and refurbished to provide a spacious, flexible layout across two floors. The house retains character features such as bay windows, original mantelpieces and fireplaces, while offering modern comforts including a fitted kitchen with induction hob, stacked electric ovens, boiling water tap and electric underfloor heating in the kitchen/breakfast area.
The ground floor flows from an entrance hall to a bay-fronted living room with log burner, separate dining room and an extended kitchen/breakfast room that opens via French doors to a south-facing rear garden. A utility room with WC and plumbing for laundry appliances and a large first-floor landing with loft access add practical family conveniences. The master bedroom has fitted wardrobes and an en suite; two further bedrooms and a modern shower room complete the sleeping accommodation.
Outside the plot is a major selling point: gated driveway parking for several cars plus electric up-and-over doors to a double garage with power, lighting and a sink. The generous, mainly lawned south-facing rear garden includes patio seating, mature trees and multiple planting beds — ideal for family outdoor use and entertaining. Lingfield station, local schools and village amenities are all within about a mile, making daily commuting and school runs straightforward.
Notable negatives are factual and important to consider: the current EPC rating is D and walls are likely cavity construction with no built-in insulation (assumed), so further energy improvements may be needed. Council tax is described as expensive. Overall, this is a large, well-presented family home with modernised interiors and strong outdoor space, but with scope for energy-efficiency upgrades.
3 bedroom semi-detached house for sale in Town Hill, Lingfield, Surrey, RH7 — £750,000 • 3 bed • 1 bath • 1559 ft²
4 bedroom detached house for sale in Godstone Road, Lingfield, RH7 — £850,000 • 4 bed • 3 bath • 2400 ft²
4 bedroom detached house for sale in Lincolns Mead, Lingfield, RH7 6TA, RH7 — £750,000 • 4 bed • 2 bath • 1987 ft²
5 bedroom detached house for sale in Saxbys Lane, Lingfield, RH7 — £1,250,000 • 5 bed • 3 bath • 3000 ft²
5 bedroom detached house for sale in Lincolns Mead, Lingfield, RH7 6TA, RH7 — £875,000 • 5 bed • 2 bath • 2240 ft²
4 bedroom end of terrace house for sale in Station Road, Lingfield, RH7 6DZ, RH7 — £500,000 • 4 bed • 2 bath • 1220 ft²


















































































































































































































