Large garden, new kitchen and garage — ideal for growing families.
Three double bedrooms with bay-window main bedroom
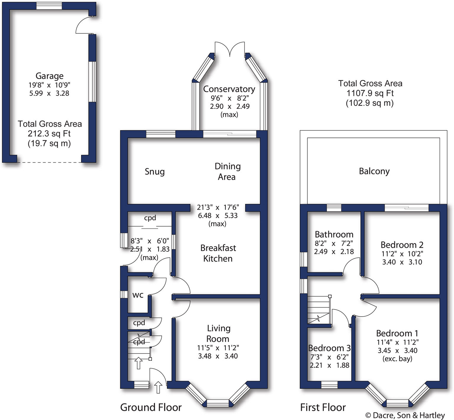
This three-bedroom detached house sits on a generous plot with a large private rear garden, garage and off-street parking — practical assets for family life. The ground floor has been extended into an open-plan breakfast kitchen and dining/snug area, creating a bright social hub; the kitchen was replaced in 2022 and includes quartz worktops plus integrated appliances. A separate utility and guest WC add everyday convenience. Upstairs, the main bedroom enjoys a bay window and the second bedroom opens onto a roomy rear rooftop balcony overlooking the garden.
The property has been newly renovated and is presented in good order throughout, with a modern four-piece bathroom and useful loft storage with lighting and ladder access. The layout is straightforward and family-friendly: clear circulation, storage under the stairs and a conservatory leading straight to the patio for easy indoor–outdoor living. Broadband availability is good and main services including gas central heating are connected.
Important practical points: the area records higher-than-average local crime and is described as very deprived, which will matter to buyers prioritising neighbourhood safety and long-term capital growth. There is only one bathroom for three bedrooms. Council Tax is Band C and the tenure is freehold. A viewing is recommended for families who need generous outside space, off-street parking and a recently updated, ready-to-move-in home.
3 bedroom detached house for sale in Springwell Court, Tingley, Wakefield, West Yorkshire, WF3 — £365,000 • 3 bed • 2 bath • 790 ft²
4 bedroom detached house for sale in Jilling Ing Park, Dewsbury, West Yorkshire, WF12 — £300,000 • 4 bed • 2 bath • 1363 ft²
3 bedroom semi-detached house for sale in Strawberry Bank, Liversedge, West Yorkshire, WF15 — £240,000 • 3 bed • 1 bath • 933 ft²
3 bedroom detached house for sale in Park View, Mirfield, WF14 9HG, WF14 — £350,000 • 3 bed • 1 bath • 1434 ft²
3 bedroom semi-detached house for sale in Thirlmere Road, Dewsbury, West Yorkshire, WF12 — £250,000 • 3 bed • 1 bath • 840 ft²
3 bedroom detached house for sale in Frank Lane, Dewsbury, WF12 — £300,000 • 3 bed • 1 bath • 980 ft²


















































































































































