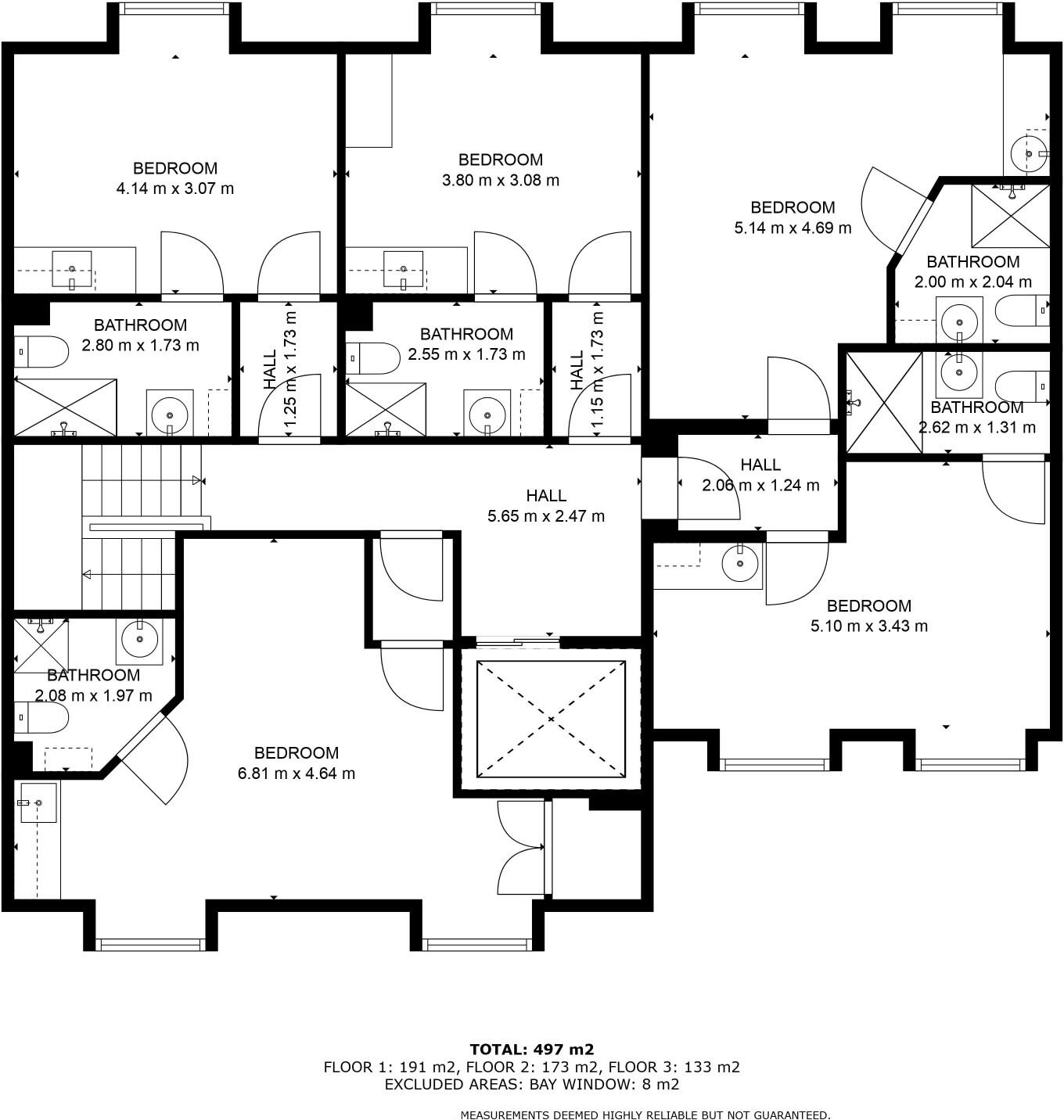
Expansive 12-bed former sheltered housing with garden and garage near Falmouth amenities..
12 bedrooms each with en-suite facilities
Set in desirable Falmouth, this large semi-detached property spans c.5,300 sqft across two joined buildings, formerly run as sheltered housing. The current layout provides 12 bedrooms each with en-suite facilities and a number of small kitchenettes, arranged mainly as self-contained units. That configuration makes the building immediately useful for care, HMO or managed accommodation, or straightforward to reconfigure into fewer large family homes or apartments.
The site includes a sizeable, manageable garden and a garage, and sits in a very low-crime, affluent area with fast broadband and no flood risk. It is close to local schools, town amenities, beaches and Falmouth University, creating multiple demand streams for owner-occupiers, students or lettings. Tenure is freehold and the property is located in an area identified as a self-sufficient retirement community.
The buildings show external wear consistent with mid-20th century construction: moss and roof discoloration are visible and the façades will require attention. Internally the unitised layout and communal rooms offer strong conversion potential but some refurbishment will be needed to modernise finishes, services and accessibility to current standards. There are no stated use restrictions, but conversion to alternative uses will be subject to standard planning and regulatory checks.
This is a proposition for a buyer seeking scale and flexibility — a developer or investor comfortable with renovation, or a family looking to create a substantial multi-bedroom residence in central Falmouth. The combination of size, location and garden makes it a rare plot with several viable end uses, provided the necessary refurbishment is factored into purchase costs.
12 bedroom semi-detached house for sale in Stracey Road, Falmouth, TR11 — £700,000 • 12 bed • 14 bath • 5350 ft²
House for sale in Oasis House & Apartment, Dracaena Avenue, Falmouth, Cornwall, TR11 2EG, TR11 — £639,000 • 1 bed • 1 bath • 2690 ft²
8 bedroom detached house for sale in Pennance Road, Falmouth, TR11 — £1,500,000 • 8 bed • 8 bath • 4007 ft²
5 bedroom terraced house for sale in Albany Road, Falmouth, TR11 — £400,000 • 5 bed • 2 bath • 1349 ft²
5 bedroom terraced house for sale in Railway Cottages, TR11 — £320,000 • 5 bed • 1 bath • 1224 ft²
7 bedroom detached house for sale in Falmouth, TR11 — £535,000 • 7 bed • 4 bath • 1482 ft²






















































































