Practical light-industrial space ideal for small businesses or investor portfolios.
- New-build hybrid workshop/office unit, available Spring 2026
- Approx. 1,300 sq ft (one of two smaller units in scheme)
- Freehold purchase from £215,000; alternative lease options offered
- Ground-floor roller shutter and dedicated loading/parking bays
- First-floor well-lit office space suitable for small businesses
- VAT elected; rateable value TBA — business rates may apply
- Gas not connected on completion; broadband speeds average
- Close to homes — noisy uses may be restricted by planning
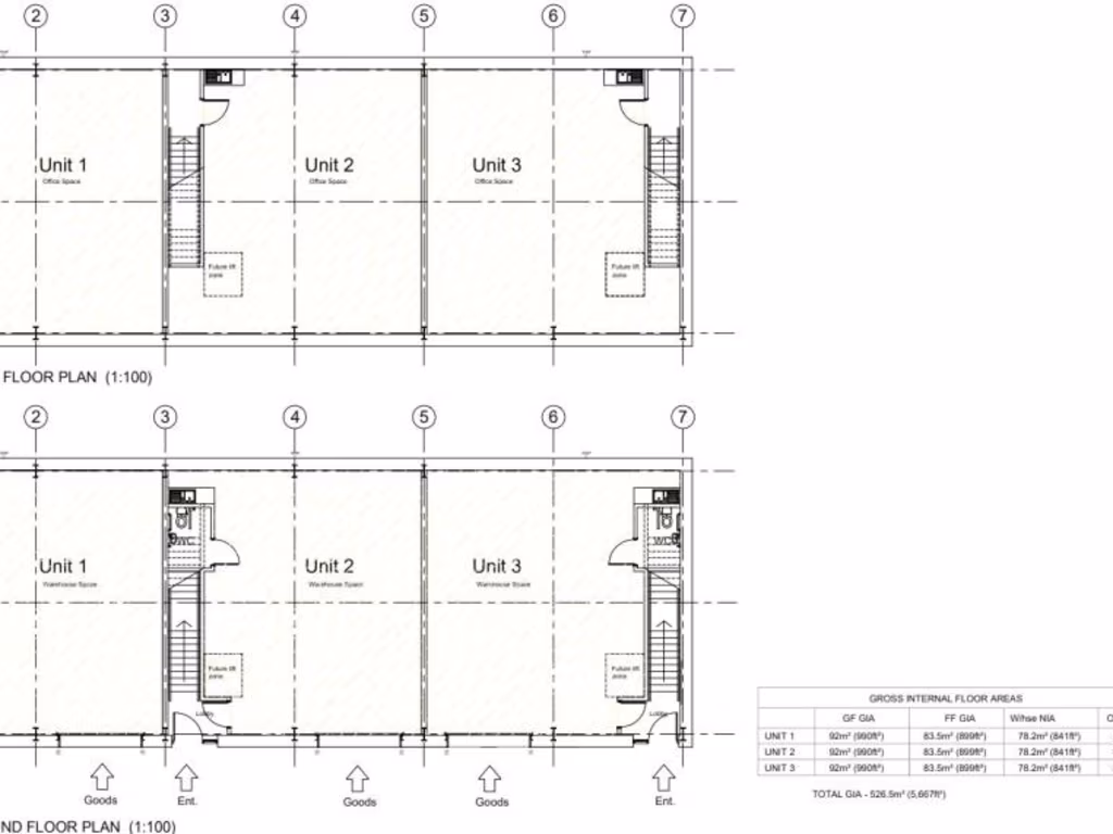
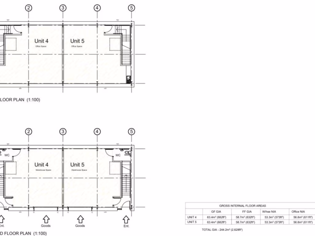
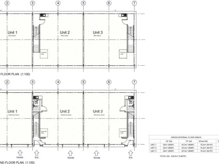
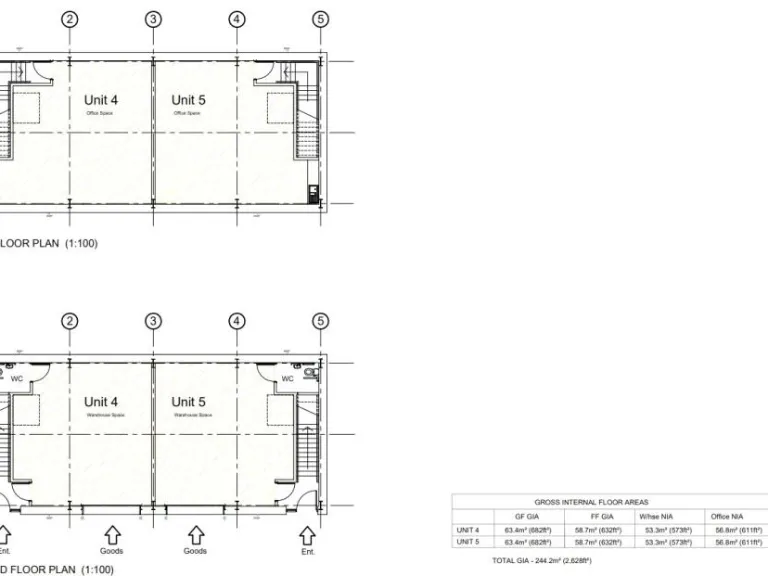
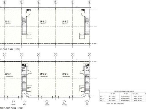
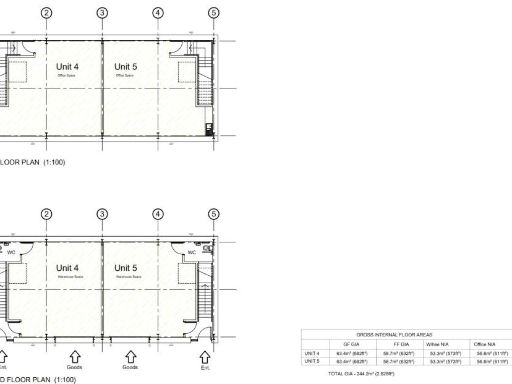
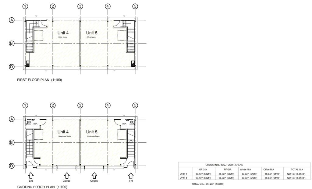
A brand-new, two-storey commercial unit in a small modern terrace at Hutton Bank, Ripon, offered from Spring 2026. This 1,300 sq ft hybrid workshop/office unit gives occupiers ground-floor roller-shutter workshop access with first-floor office accommodation — designed for SMEs, trade operators and investors seeking immediate, low-maintenance space in an affluent North Yorkshire location.
The scheme offers freehold purchase from £215,000 with alternative lease terms available; units are VAT elected. The development provides on-site parking and dedicated loading bays, good roadside visibility and straightforward vehicular access, while mature tree belts and nearby open space give a semi-rural backdrop. Mobile signal is excellent and crime levels are very low, supporting secure day-to-day trading.
Practical considerations include that gas will not be connected on completion and broadband speeds are average. Proximity to residential properties may restrict noisy or high-impact uses; interested parties should make their own planning enquiries. Rateable values and business rates are to be confirmed and may affect occupation costs.
Overall this is a practical, energy-efficient opportunity for owner-occupiers or investors seeking modern light industrial space with flexible purchase or letting options close to Ripon city centre and local retail hubs.
Office for sale in Old Market Place, Ripon, North Yorkshire, HG4 — £140,000 • 1 bed • 1 bath • 1000 ft²
3 bedroom house for sale in Magdalens Close, Ripon, HG4 — £290,000 • 3 bed • 1 bath • 699 ft²
Office for sale in Bishop Thornton, Harrogate, North Yorkshire, HG3 — £1,300,000 • 1 bed • 1 bath • 20000 ft²
3 bedroom semi-detached house for sale in West Lane ,
Ripon,
North Yorkshire,
HG4 2LQ, HG4 — £344,995 • 3 bed • 1 bath • 676 ft²
Land for sale in Bishop Thornton, Harrogate, North Yorkshire, HG3 — £1,300,000 • 1 bed • 1 bath • 20877 ft²
2 bedroom end of terrace house for sale in Ure Bank Top, Ripon, North Yorkshire, HG4 — £230,000 • 2 bed • 2 bath • 1044 ft²






































