Large Tudor-style detached home on over 1.2 acres with excellent extension potential.
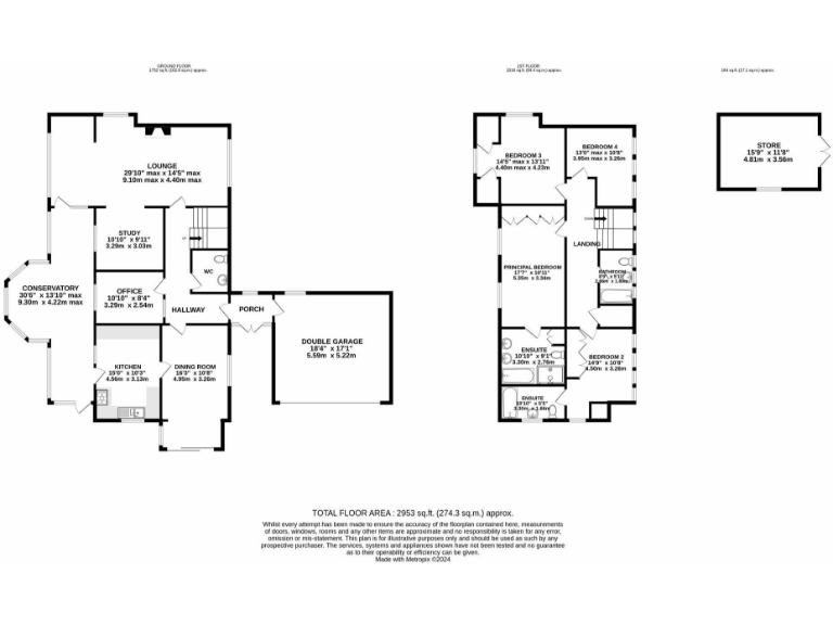
Nearly 3,000 sq ft across multiple reception rooms
Set in the heart of Great Budworth’s conservation area, this substantial Tudor-style detached home occupies just over 1.2 acres of private, landscaped grounds. Approaching 3,000 sq ft, the house offers generous, flexible living with several reception rooms, a conservatory, study and four double bedrooms — ideal for a growing family or buyers seeking space and scope.
The plot and internal layout provide clear potential for extension and reconfiguration (STPP), making this a strong proposition for purchasers wishing to customise or add value. Practical benefits include driveway parking for several vehicles, a double garage and mains gas central heating. The property has an EPC rating of D and has not been offered for sale in over 40 years.
Buyers should note material considerations up front: the house dates from the mid-20th century and will likely require updating in parts (kitchen, bathrooms, decor and possibly services). The glazing type is double glazing but install date is unknown. Broadband speeds are slow and council tax is described as quite expensive. Any significant alterations will be subject to conservation-area constraints and the usual planning process.
Overall, this is a rare opportunity to secure a large family home on a very large, private plot in a picturesque Cheshire village. It suits purchasers who value outdoor space, period character and who are prepared to invest in modernization or an extension subject to planning.
4 bedroom detached house for sale in Great Budworth home with planning permission, CW9 — £700,000 • 4 bed • 2 bath • 1615 ft²
3 bedroom bungalow for sale in Westage Lane, Great Budworth, Northwich, Cheshire, CW9 — £600,000 • 3 bed • 2 bath • 1801 ft²
2 bedroom cottage for sale in High Street, Great Budworth, CW9 — £525,000 • 2 bed • 1 bath • 847 ft²
4 bedroom detached house for sale in Westage Lane, Great Budworth, CW9 — £1,450,000 • 4 bed • 2 bath • 2866 ft²
4 bedroom detached house for sale in Period property nestled within secluded mature grounds of almost half an acre, CW9 — £700,000 • 4 bed • 3 bath • 2277 ft²
3 bedroom barn conversion for sale in Southbank, Great Budworth, CW9 — £850,000 • 3 bed • 2 bath • 1653 ft²














































































































































































