Spacious period home moments from Southampton Common and local schools.
Double-fronted Edwardian villa with high ceilings and original period features
A double-fronted Edwardian villa with generous rooms, high ceilings and original period detail, set on a large private plot in Upper Shirley. The property sits within easy walking distance of Southampton Common and is well placed for the city centre, mainline station, hospitals, university campus and a wide choice of well-regarded schools.
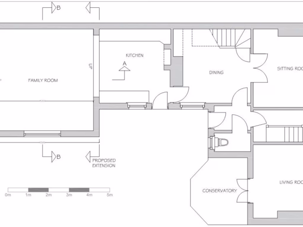
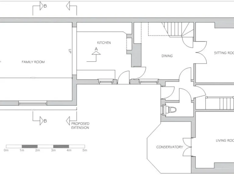
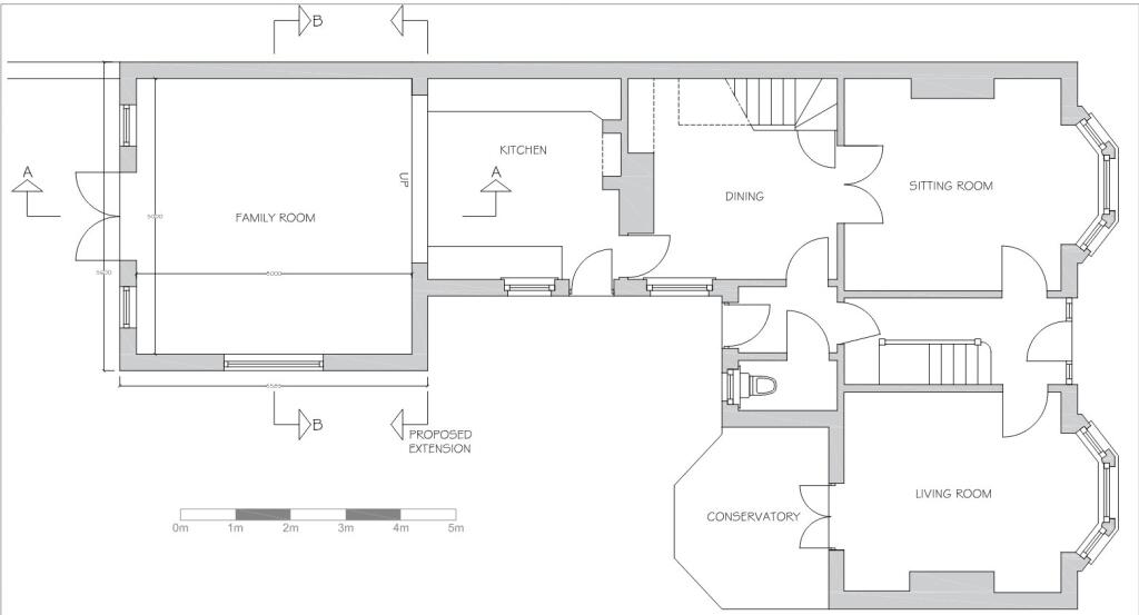
The ground floor offers three reception rooms, a kitchen/breakfast room, conservatory and a guest cloakroom. Upstairs are four well-proportioned bedrooms and the family bathroom. Outside there is driveway parking, a carport and a large, enclosed rear garden that affords privacy and plenty of space for children and entertaining.
Practical notes: the house is presented in good order but retains traditional construction (cavity walls assumed without added insulation) and has only one family bathroom. Approved planning permission for a single-storey rear extension previously existed (Ref 21/00656/FUL) but has now lapsed. Council tax is above average for the area.
This home will suit a family seeking a characterful period property with scope to extend or modernise where required. Its size, garden and location are the primary strengths, while buyers should factor in potential upgrade costs for insulation, bathroom provision and any reinstatement of lapsed planning permission.
5 bedroom detached house for sale in Upper Shirley Avenue, Upper Shirley, Southampton, Hampshire, SO15 — £700,000 • 5 bed • 2 bath • 2028 ft²
4 bedroom detached house for sale in Shirley Avenue, Shirley, Southampton, Hampshire, SO15 — £600,000 • 4 bed • 2 bath • 2196 ft²
4 bedroom detached house for sale in Handel Road, Southampton, Hampshire, SO15 — £595,000 • 4 bed • 2 bath • 1702 ft²
4 bedroom semi-detached house for sale in Norfolk Road, Shirley, Southampton, Hampshire, SO15 — £475,000 • 4 bed • 2 bath • 1451 ft²
3 bedroom terraced house for sale in St James Road, Upper Shirley, Southampton, Hampshire, SO15 — £380,000 • 3 bed • 1 bath • 1004 ft²
4 bedroom detached house for sale in Atherley Road, Shirley, Southampton, Hampshire, SO15 — £570,000 • 4 bed • 2 bath • 2063 ft²


































































