Stone cottage with large garden, dramatic fell views and excellent walking access.
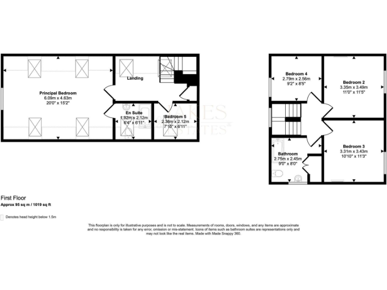
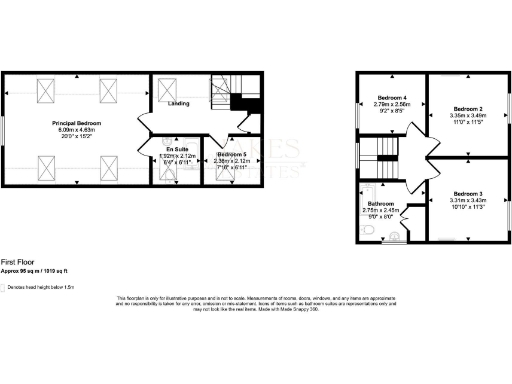
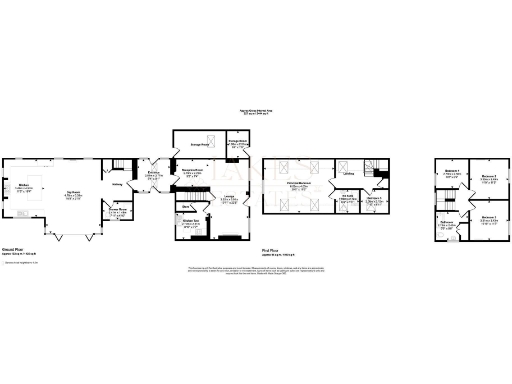
Five bedrooms and three bathrooms, including large principal suite with dressing room
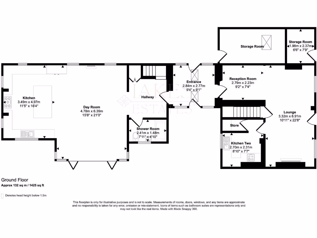
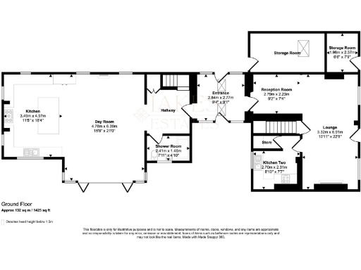
Set on the edge of the Lake District National Park, this newly renovated five-bedroom stone cottage combines traditional character with a generous modern extension. The open-plan kitchen, day room with bifold doors and large principal suite give comfortable family living and excellent scope for multigenerational use. Two fitted kitchens and three bathrooms support flexible household arrangements or potential income use. Super fast broadband (100GB) makes it practical for remote working despite rural isolation.
The gardens and large plot are standout features: a paved, partly covered patio, productive vegetable beds, mature borders, fruit trees and a private gravel driveway with space for several cars. The elevated position delivers uninterrupted countryside and fell views, and direct access to local walking routes and Blencathra for outdoor enthusiasts. The village pub and basic amenities are within walking distance.
Buyers should note material constraints of rural living: the property is served by oil-fired heating (boilers and underfloor heating) and mains utilities with septic tank drainage. There is no mobile signal on site. Flood risk for the location is recorded as high—important for insurance and long-term risk planning. The stone walls are original and likely uninsulated, which may affect running costs despite recent renovations.
Overall this is a substantial, well-presented family home in a highly desirable national-park location. It will suit buyers who prioritise privacy, expansive gardens and outdoor access, and who are comfortable with rural services and the practicalities of a high flood-risk setting.
4 bedroom barn conversion for sale in Mungrisdale, Penrith, CA11 — £795,000 • 4 bed • 3 bath • 3200 ft²
5 bedroom house for sale in Matterdale, Penrith, CA11 — £950,000 • 5 bed • 2 bath • 2000 ft²
5 bedroom detached house for sale in Horse Shoe Inn, Hutton Roof, Penrith, Cumbria, CA11 — £575,000 • 5 bed • 5 bath • 1281 ft²
6 bedroom character property for sale in Southwaite, CA4 — £995,000 • 6 bed • 2 bath • 4930 ft²
4 bedroom cottage for sale in Chapel Cottage, Glenridding, Penrith, CA11 0PG, CA11 — £1,150,000 • 4 bed • 3 bath • 2243 ft²
3 bedroom cottage for sale in Hesket Newmarket, Wigton, CA7 — £800,000 • 3 bed • 2 bath • 2419 ft²






































































































































































































































