NP26 3DB - Land for sale in Mead Farm,Llandevenny,Magor, NP26

View on Property Piper

Land for sale in Mead Farm,Llandevenny,Magor, NP26

Summary - MEAD FARM, LLANDEVENNY ROAD NP26 3DB

6 bed 5 bath Land

**Standout Features:**
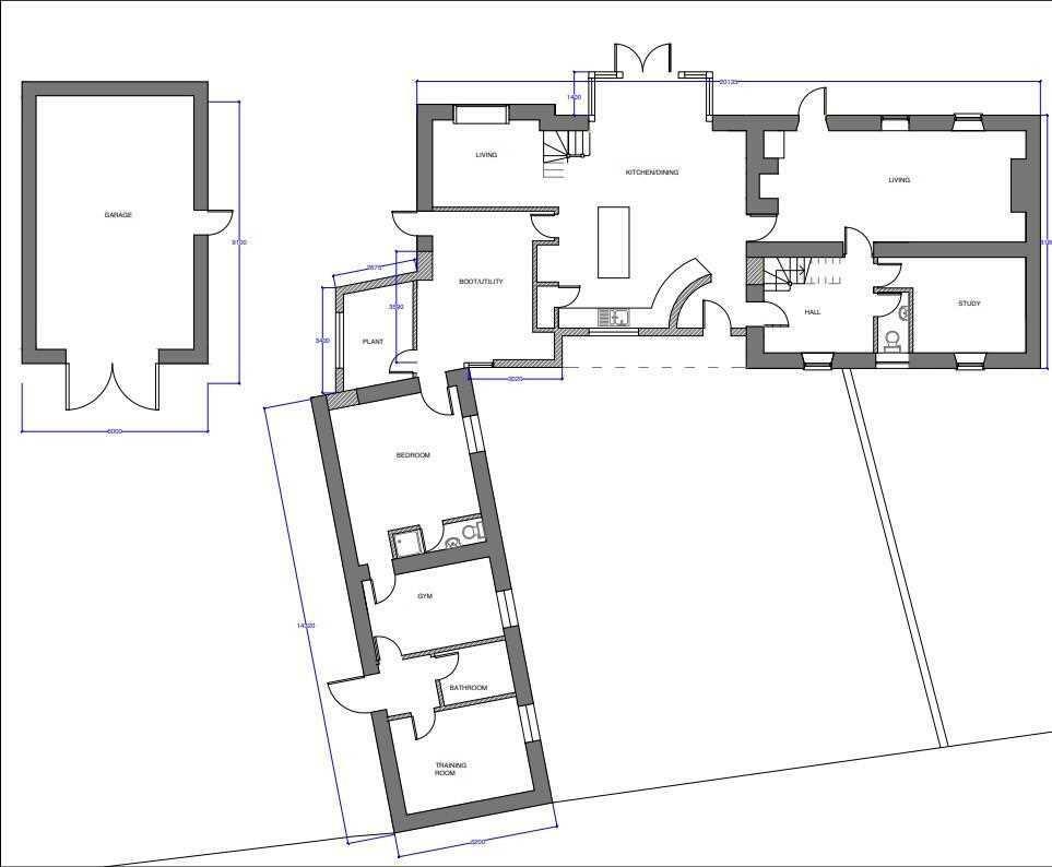
- Planning permission granted to renovate and extend a 200-year-old farmhouse into a 5/6 bedroom family home.
- Set on a large plot size of 1.66 acres in a tranquil hamlet.
- Spacious garage included.
- Future flexibility for design with an open-concept kitchen/diner, three ensuite bedrooms, and potential for annex or additional living spaces.

**Concerns:**
- Property is in need of extensive renovation.
- Council tax is considered expensive.

Unlock the potential of countryside living with this expansive property nestled on the edge of the charming hamlet of Llandevenny. With planning permission already secured for an ambitious renovation and extension, envision transforming this historic 1823 farmhouse into a beautiful 5/6 bedroom family home. The design promises a modern open-plan kitchen, generous living areas, and ensuite bedrooms—a perfect canvas for family life or entertaining.

The sizable 1.66-acre plot offers plenty of space for outdoor activities or even further development, while the included garage adds practical value. Enjoy the best of both worlds with easy access to Newport City Centre and nearby retail amenities, all while relishing the peace of rural living. Ideal for families or investors seeking a project, seize this unique opportunity to create the home of your dreams in a picturesque setting. Don’t wait—such exclusive properties are rare to find!

Property Details

Brochure Descriptions

Image Descriptions

Textual Property Features

Detected Visual Features

Nearest Bars And Restaurants

,,,,}

Nearest General Shops

,,}

Nearest Grocery shops

,,}

Nearest Supermarkets

,,}

Nearest Religious buildings

,,}

Nearest Medical buildings

,,,}

Nearest Airports

,}

Nearest Leisure Facilities

,,,,}

Nearest Tourist attractions

,,}

Nearest Train stations

,,,,}

Nearest Bus stations and stops

,,,,}

Nearest Hotels

,,}

Tags

Local Market Stats

AirBnB Data

Similar Properties

Meta

High Res Images

Compatible Images

Low res Images

Thumbnails

Raw Images