Budget-priced renovator or starter-home with garden and garage parking close to town.
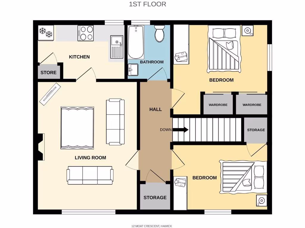
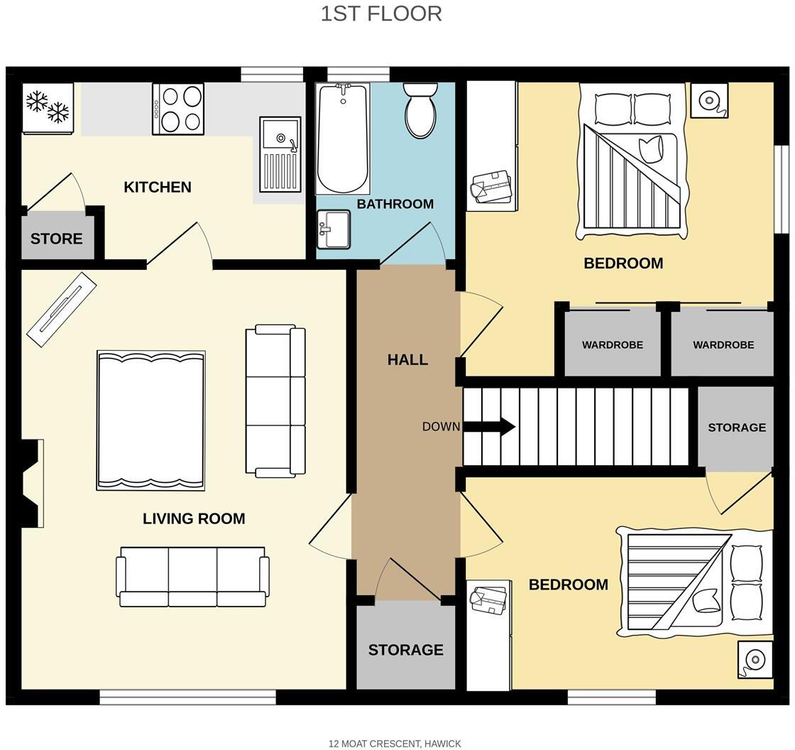
- First-floor two-bedroom quarter-house with elevated views
- Freehold tenure with EPC rating C
- Gas central heating; partial double glazing
- Private rear garden with shed and garage parking
- Requires renovation and modernisation throughout
- Some single-glazed windows (kitchen and bathroom)
- Modest room sizes; compact living footprint
- Located in a very deprived area (may affect resale/tenancy)
First-floor, two-bedroom quarter-house in Hawick’s West End, offered as a freehold purchase with scope to add value. The sitting room faces front with pleasant elevated views, and the property benefits from gas central heating, an EPC rating of C and a private rear garden with a shed. There is also garage parking and good local bus links to the town centre.
The flat requires renovation and modernisation throughout: fixtures, finishes and some windows are dated or single-glazed. Room sizes are modest, so this will suit a first-time buyer, downsizer or landlord seeking a low-entry investment with straightforward upgrade potential (kitchen, bathroom, decoration and possible insulation improvements).
Practical positives include included white goods (fridge/freezer and washing machine), loft access with partial flooring for storage, and excellent mobile and fast broadband. Be aware the property sits in an area recorded as very deprived, which may affect resale speed and tenant demand in some markets.
Overall this is a budget-priced opportunity for someone happy to carry out cosmetic and some fabric works to unlock better long-term value. The combination of freehold tenure, garden, garage and central heating gives useful baseline amenities for renovation or rental use.
2 bedroom flat for sale in Ramsay Road, Hawick, TD9 — £85,000 • 2 bed • 1 bath • 689 ft²
3 bedroom maisonette for sale in Gladstone Street, Hawick, TD9 — £95,000 • 3 bed • 1 bath
2 bedroom flat for sale in 26 North Bridge Street, Hawick TD9 9QS, TD9 — £95,000 • 2 bed • 1 bath • 775 ft²
1 bedroom flat for sale in Loan, Hawick, TD9 — £60,000 • 1 bed • 1 bath
2 bedroom ground floor flat for sale in 10 Yarrow Terrace, Hawick, TD9 9LL, TD9 — £75,000 • 2 bed • 1 bath • 710 ft²
2 bedroom flat for sale in 2E, St Cuthberts Terrace
Hawick, TD9 9DR, TD9 — £79,995 • 2 bed • 1 bath • 807 ft²






















































































