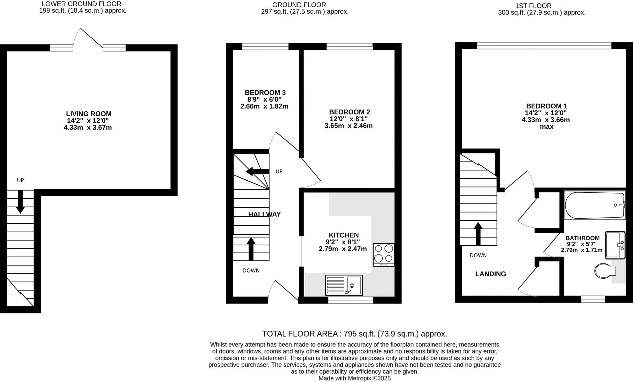
**Standout Features:**
- 3 Bedrooms, 1 Bathroom
- Terraced house with off-road parking
- Enclosed garden with patio for outdoor leisure
- Far-reaching views from multiple rooms
- Chain-free and Freehold tenure
- Conveniently located in Exwick, close to local amenities
**Summary:**
Discover this charming three-bedroom terraced home in the desirable suburb of Exwick, ideal for families or first-time buyers seeking a cozy retreat. Spanning three floors, the property features a modern kitchen with integrated appliances, a comfortable living room on the lower ground floor that leads directly to a south-facing enclosed garden, and three well-proportioned bedrooms offering stunning views.
Convenience is at your fingertips with off-road parking and proximity to local shops, schools, and transport links to Exeter City Centre. While the space is modest at 795 square feet, it presents a fantastic opportunity for personalization and potential renovations. With low crime rates and a community-focused atmosphere, this home encapsulates the welcoming essence of suburban living. Enjoy the blend of comfort, modern amenities, and scenic surroundings—an opportunity not to be missed!
3 bedroom terraced house for sale in Farm Hill, Exeter, EX4 — £250,000 • 3 bed • 1 bath • 936 ft²
3 bedroom terraced house for sale in Garland Close, Exwick, Exeter, Devon, EX4 — £220,000 • 3 bed • 1 bath • 1052 ft²
4 bedroom semi-detached house for sale in Cornflower Hill, Exeter, EX4 — £300,000 • 4 bed • 1 bath • 929 ft²
3 bedroom terraced house for sale in Rowan Way, Exwick, Exeter, EX4 — £250,000 • 3 bed • 1 bath • 786 ft²
3 bedroom terraced house for sale in Farm Hill, Exeter, Devon, EX4 — £230,000 • 3 bed • 1 bath • 716 ft²
3 bedroom terraced house for sale in Linton Road, Exeter, Devon, EX1 — £280,000 • 3 bed • 1 bath • 559 ft²






















































