**Standout Features:**
- Spacious 5-bedroom, 2-bathroom detached family home.
- Generous 2,683 square feet with modern design, gas central heating, and double glazing.
- Large driveway for 3-4 cars plus a double electric garage.
- South West facing, sun-filled rear garden with ornamental feature and fig tree.
- Potential for an open-plan kitchen and dining room by removing a wall.
- Close to Bruntwood Park, top-rated schools, and major commuter routes, including A34 and motorway access.
- Chain-free for immediate move-in.
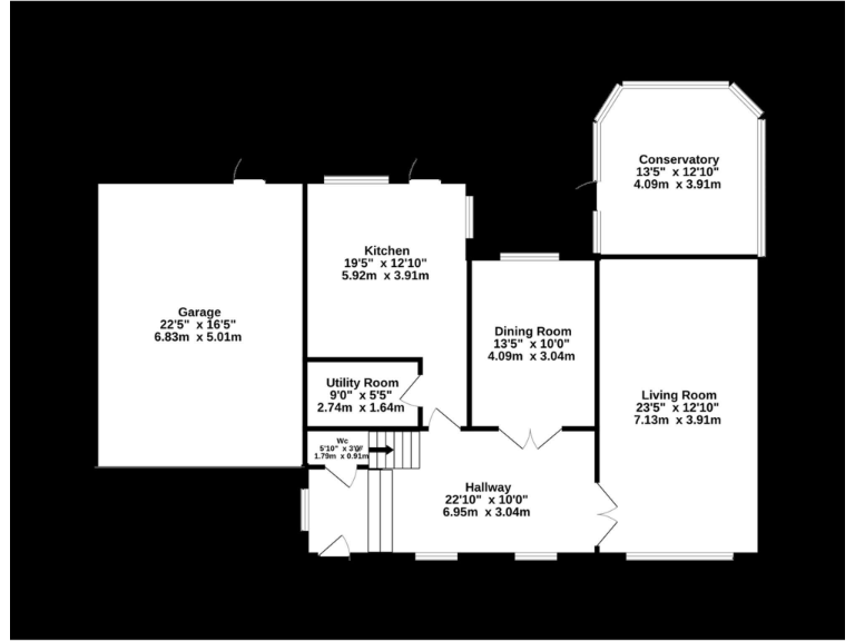
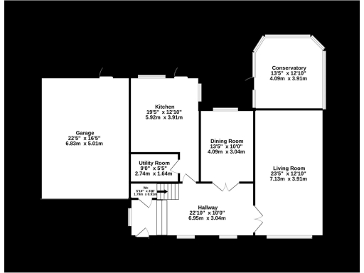
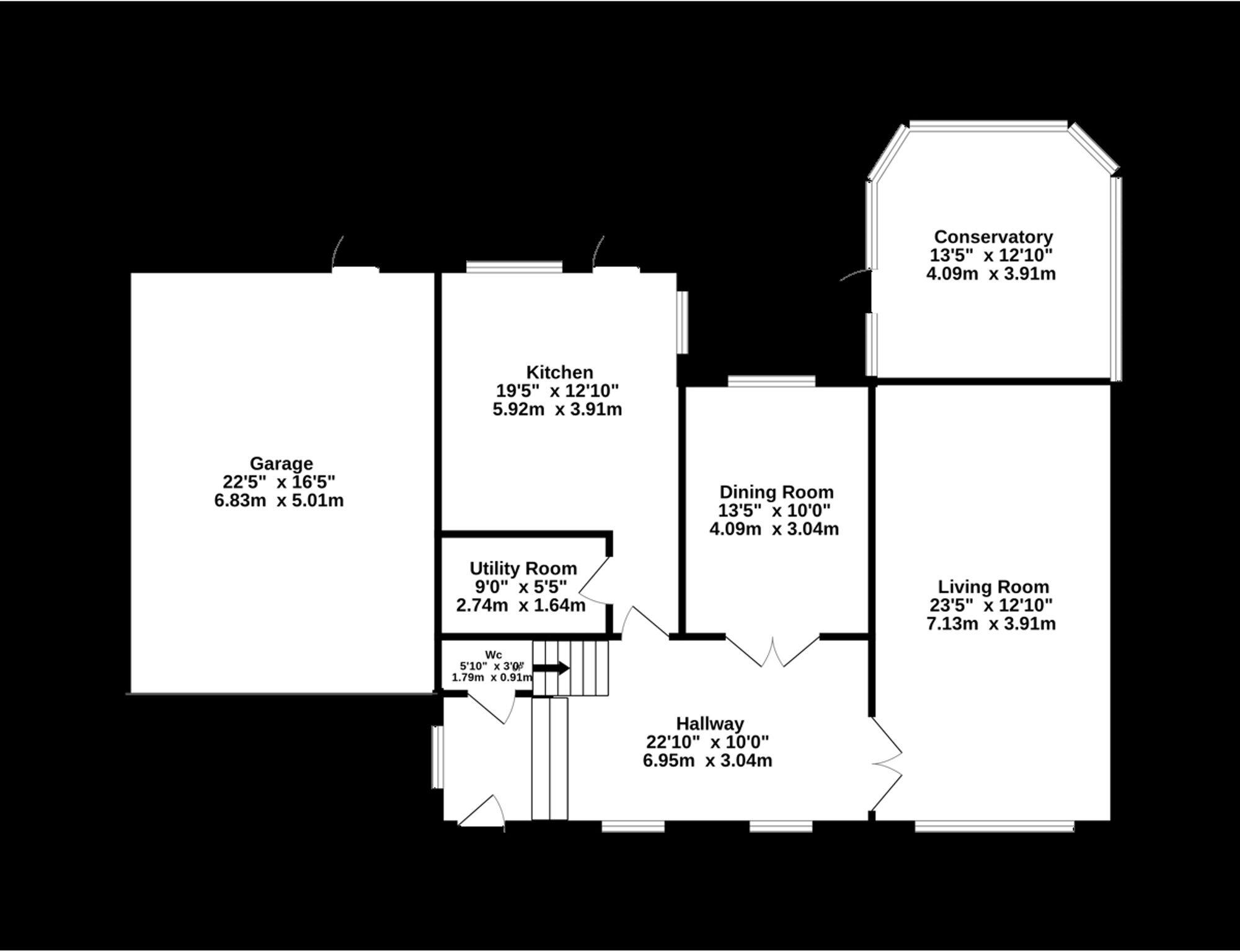
Nestled in an exclusive cul-de-sac near Cheadle Village, this stunning 5-bedroom detached home offers both elegance and flexibility, perfect for growing families. Spanning 2,683 square feet, enjoy ample living space, including a welcoming entrance hall, two reception rooms, and a spacious conservatory that fills with natural light—ideal for peaceful family afternoons or morning coffees overlooking the picturesque garden.
With five sizable bedrooms, including a master suite equipped with a walk-in wardrobe and the enchanting potential for an en-suite addition, this home caters to both comfort and functionality. The property is further enhanced by a well-appointed kitchen and separate utility room, ideal for culinary enthusiasts.
Expand your living space or take advantage of the large integral garage, which could serve as additional accommodation if desired. Outside, revel in your private, secure garden, perfect for summer gatherings or kids to play freely. Conveniently located close to top-rated schools and main commuting routes, this home blends peaceful suburban living with practicality. Don't miss this exceptional opportunity—properties like this won’t last long!
4 bedroom detached house for sale in Kingsway, Cheadle, SK8 — £550,000 • 4 bed • 2 bath • 1546 ft²
4 bedroom detached house for sale in Cringle Drive, Cheadle, Stockport, SK8 — £500,000 • 4 bed • 1 bath • 1401 ft²
4 bedroom detached house for sale in Marchbank Drive, Cheadle, Stockport, SK8 — £650,000 • 4 bed • 2 bath • 1419 ft²
5 bedroom detached house for sale in Beechfield Road, Cheadle Hulme, SK8 — £935,000 • 5 bed • 3 bath • 1833 ft²
4 bedroom detached house for sale in Southdown Crescent, Cheadle Hulme, SK8 — £635,000 • 4 bed • 2 bath • 1332 ft²
4 bedroom detached house for sale in Hulme Hall Crescent, Cheadle Hulme, SK8 — £650,000 • 4 bed • 2 bath • 1765 ft²


















































































