DH1 4TZ - 3 bedroom apartment for sale in St. Annes Court, Castle Cha…

View on Property Piper

3 bedroom apartment for sale in St. Annes Court, Castle Chare, Durham City, DH1

Summary - FLAT A ST ANNES COURT DURHAM DH1 4TZ

3 bed 2 bath Apartment

**Key Features:**
- Ground floor apartment in a Grade II listed building
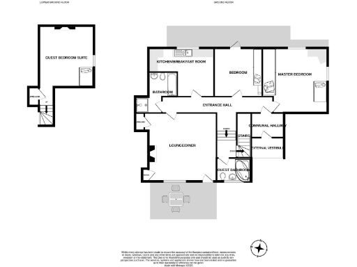
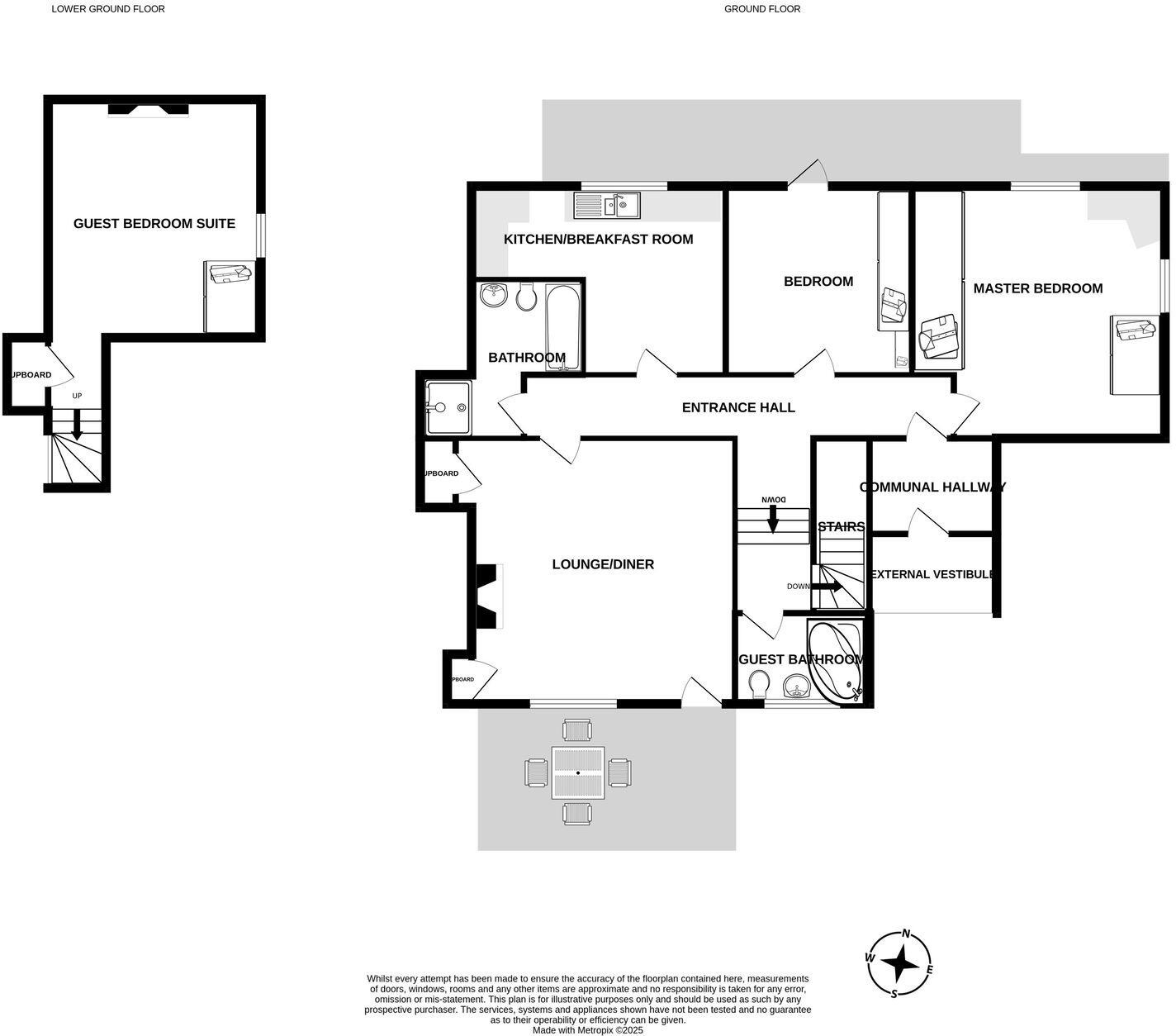
- Generous living space of over 125 square meters (1360 sq ft)
- Three spacious bedrooms, two modern bathrooms
- Private southerly aspect rear garden with terrace
- Modern fitted kitchen and dining area
- Gated allocated parking for security
- Close proximity to city amenities and transport links

Nestled in a beautifully restored Grade II listed building, this stunning ground floor flat offers a unique blend of historic charm and contemporary convenience. Spanning over 125 square meters, it features three generous bedrooms and two bathrooms, making it an ideal family home or investment opportunity. The modern fitted kitchen is perfect for entertaining, while the bright and airy lounge leads out to a private rear garden, complete with a terrace for outdoor gatherings or peaceful relaxation.

With secondary double glazing and gas central heating, the apartment ensures comfort year-round. Enjoy the convenience of gated parking and a vibrant location close to the city center, rich with amenities such as shops, eateries, and entertainment options. However, it’s important to note that the property has listed status, which might complicate future renovations. This exceptional living space is perfect for professionals, families, or investors looking to take advantage of the flourishing Durham area. Don't miss out on this exclusive opportunity—schedule your viewing today!

Property Details

Brochure Descriptions

Image Descriptions

Floorplan Description

Rooms

Textual Property Features

Detected Visual Features

EPC Details

Nearby Schools

Nearest Bars And Restaurants

,,,,}

Nearest General Shops

,,}

Nearest Grocery shops

,,}

Nearest Supermarkets

,,}

Nearest Religious buildings

,,}

Nearest Medical buildings

,,,}

Nearest Leisure Facilities

,,,,}

Nearest Tourist attractions

,,}

Nearest Train stations

,,,,}

Nearest Bus stations and stops

,,,,}

Nearest Hotels

,,}

Tags

Local Market Stats

AirBnB Data

Similar Properties

Meta

High Res Images

Compatible Images

Low res Images

Thumbnails

Raw Images

High Res Floorplan Images

Compatible Floorplan Images

Low res Floorplan Images

FloorplanImages Thumbnail

Raw Floorplan Images