SE15 2NJ - 3 bedroom terraced house for sale in Astbury Road, Peckham,…

View on Property Piper

3 bedroom terraced house for sale in Astbury Road, Peckham, London, SE15

Summary - 50 Astbury Road SE15 2NJ

3 bed 1 bath Terraced

Period mid-terrace with garden, minutes from Queens Road station.
Three double bedrooms, well proportioned
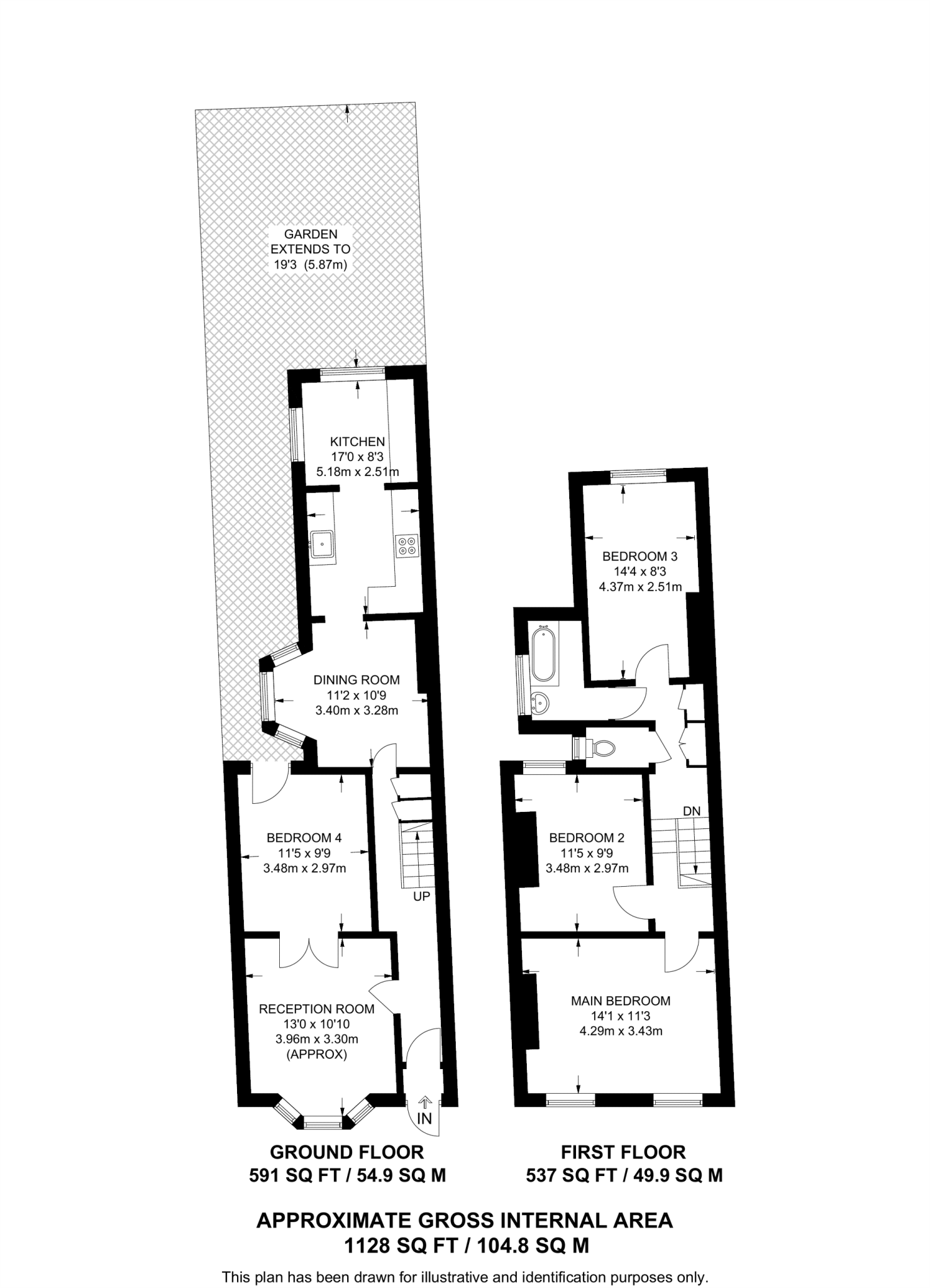
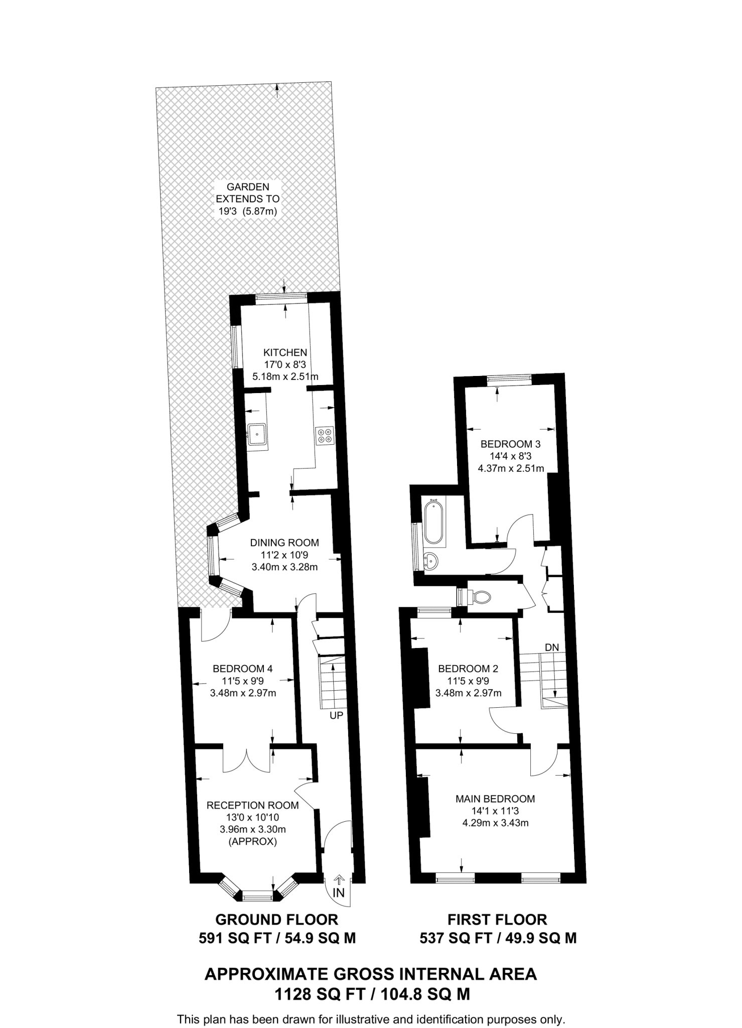
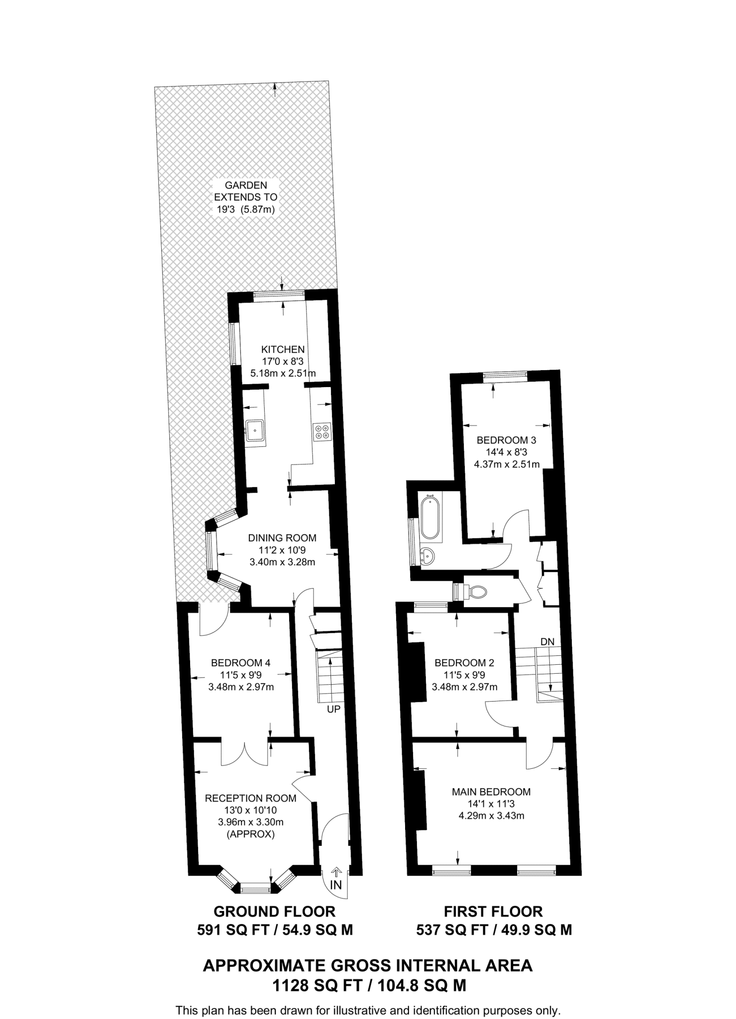
This three-bedroom mid-terrace offers 1,128 sq ft of traditional family accommodation close to Queens Road station. The house has two bright reception rooms, a separate dining room and a smart fitted kitchen with integrated appliances. A private rear garden provides outdoor space for al-fresco dining and low-maintenance planting.

The property retains period character in the living room—bay window, cornicing and fireplace—while the kitchen presents a more modern finish. Bedrooms are well proportioned and the single family bathroom serves the layout. The home is freehold and benefits from mains gas central heating and double glazing (install dates unknown).

Notable practical points: the solid brick walls have no known insulation, the living room décor is dated and will need updating, and the plot is small. The area is an inner-city, established renting-families neighbourhood with fast broadband and excellent mobile signal, but local crime levels are high and the wider area is classified as deprived. Buyers should factor potential refurbishment and security measures into budgets.

This house will suit families seeking convenient transport links and local amenities, or buyers prepared to update and personalise a period terrace in a well-connected Peckham location.

Property Details

Image Descriptions

Floorplan Description

Rooms

Textual Property Features

Target Audience

AI Tags

Detected Visual Features

EPC Details

Nearby Schools

Nearest Bars And Restaurants

,,,,}

Nearest General Shops

,,}

Nearest Grocery shops

,,}

Nearest Supermarkets

,,}

Nearest Religious buildings

,,}

Nearest Medical buildings

,,,}

Nearest Airports

,,}

Nearest Leisure Facilities

,,,,}

Nearest Tourist attractions

,,}

Nearest Train stations

,,,,}

Nearest Bus stations and stops

,,,,}

Nearest Hotels

,,}

Tags

Local Market Stats

AirBnB Data

Similar Properties

Meta

High Res Images

Compatible Images

Low res Images

Thumbnails

Raw Images

High Res Floorplan Images

Compatible Floorplan Images

Low res Floorplan Images

FloorplanImages Thumbnail

Raw Floorplan Images