**Standout Features:**
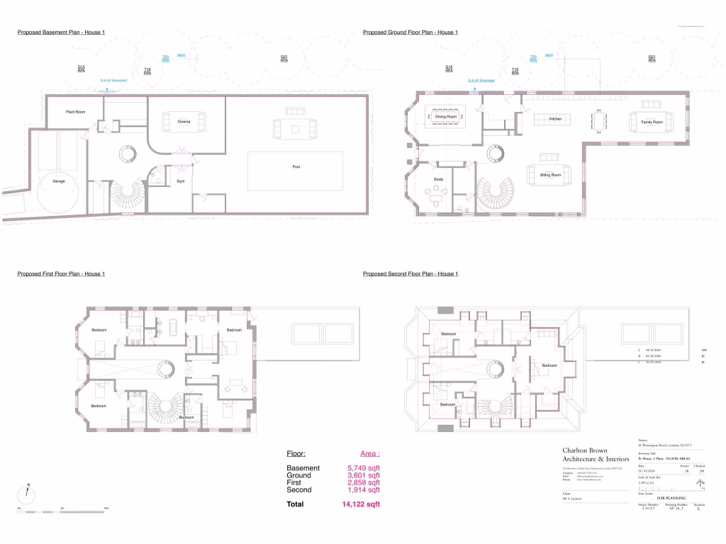
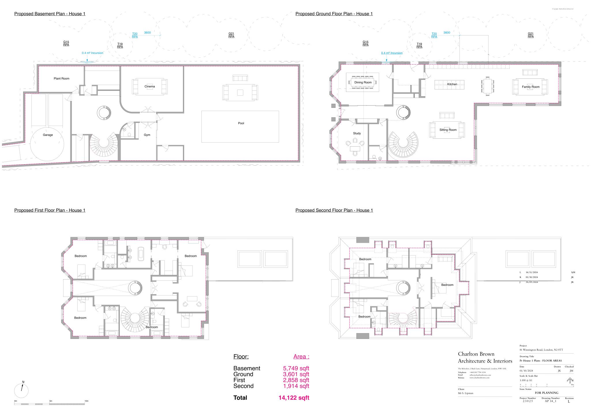
- Generous 14,122 sq. ft. of luxurious living space
- 6 spacious bedrooms and 10 bathrooms
- Stunning Neo-Georgian design with high ceilings and large rooms
- Panoramic views across Hampstead Golf Course
- Extensive leisure amenities including a proposed swimming pool, gym, and spa
- Luxury finishes throughout and potential for personalized design choices
- Prime Hampstead location, close to top-performing schools and Hampstead Heath
**Potential Concerns:**
- Currently a new build with completion specifiable by buyer
- EPC Rating of D; consider future energy efficiency upgrades
This extraordinary, newly constructed mansion on the coveted Winnington Road offers an incredible opportunity for discerning buyers seeking luxury and exclusivity. Spanning over 14,000 sq. ft., this impressive residence is designed to cater to modern family living with ample space for comfort and entertainment. The property features an array of state-of-the-art leisure amenities, including a pool and gym, and is complimented by a beautifully landscaped garden and ample garage parking.
As a chain-free freehold opportunity, future homeowners can select finishes to personalize their dream residence or opt to purchase the plot to develop a vision aligned with their specifications. Nestled in an affluent area, this home boasts easy access to elite educational institutions, lush green spaces, and communal amenities, making it ideal for families and professionals alike. Don’t miss this rare chance to secure a landmark property in one of London’s most desirable neighborhoods.
7 bedroom detached house for sale in Winnington Road, N2 — £12,500,000 • 7 bed • 8 bath • 10333 ft²
9 bedroom detached house for sale in Winnington Road, London, N2 — £9,950,000 • 9 bed • 1 bath • 8351 ft²
6 bedroom detached house for sale in Winnington Road, N2 — £24,950,000 • 6 bed • 6 bath • 16749 ft²
6 bedroom house for sale in Hampstead Lane, Kenwood, NW3 — £12,950,000 • 6 bed • 7 bath • 11467 ft²
10 bedroom detached house for sale in Winnington Road, London, N2 — £17,950,000 • 10 bed • 1 bath • 13673 ft²
9 bedroom detached house for sale in Compton Avenue, N6 — £50,000,000 • 9 bed • 9 bath • 26022 ft²














































































