Low-maintenance two-bed retirement apartment with allocated parking.
Large open-plan lounge/diner with private sun terrace
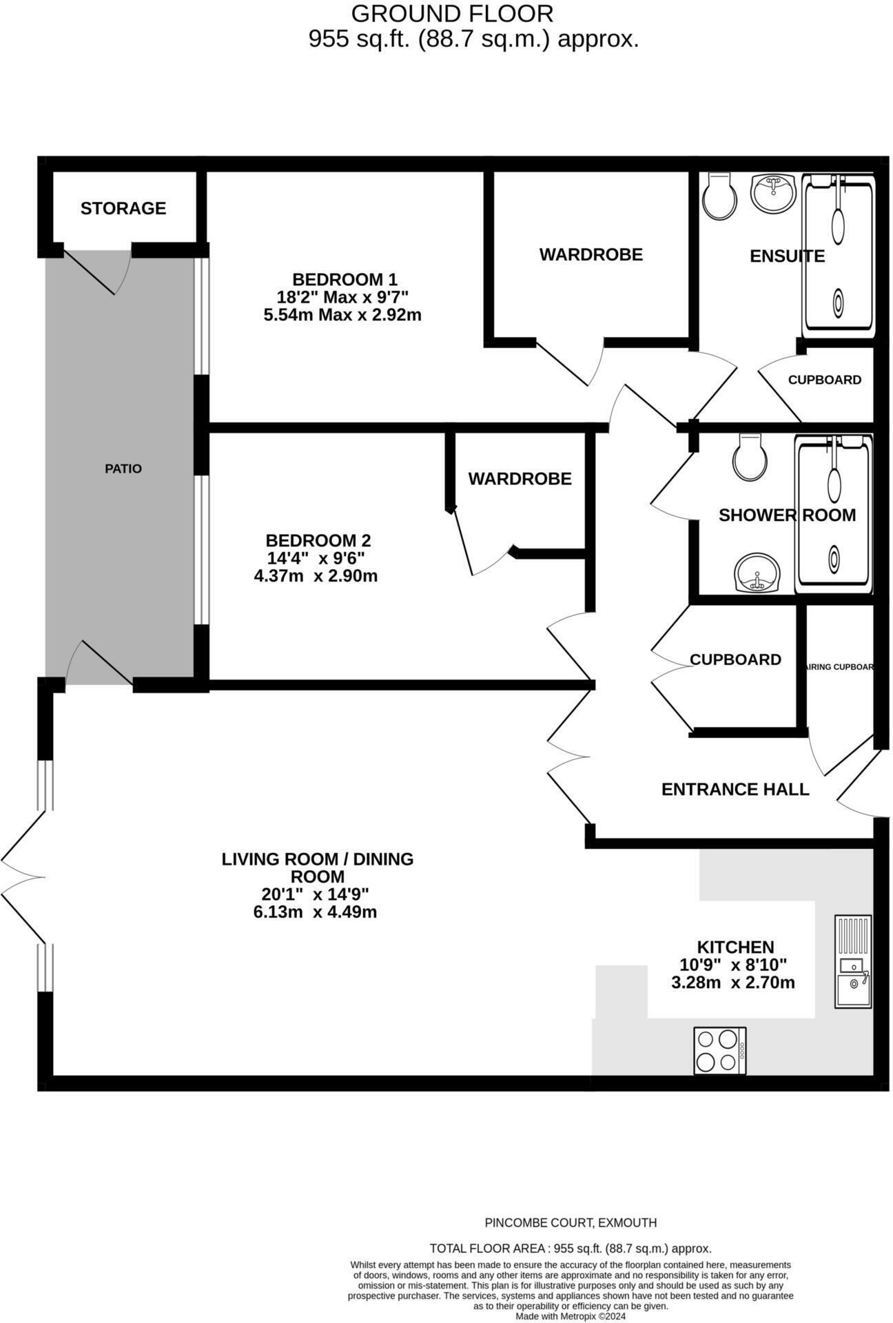
A spacious ground-floor, two-bedroom apartment in an age-exclusive development designed for easy, low-maintenance living. The large lounge/dining room opens onto a private sun terrace, and a contemporary kitchen includes integrated appliances. Both double bedrooms have walk-in wardrobes; the main bedroom includes an ensuite bath. Under-floor heating, double glazing and an internal ventilation system add comfort and efficiency.
The development offers communal gardens, allocated secure parking and a 24-hour emergency call system, with routine external maintenance, window cleaning and water rates paid through the service charge. The flat is offered with no onward chain and sits on a long lease (approximately 993 years remaining), giving tenure security.
Notable points to consider: the property is leasehold with a ground rent of £247.20 every six months and a service charge (amount to be confirmed). The wider area shows higher crime statistics and indicators of deprivation, which may affect future resale or rental demand. The building is specifically for those aged over 55, ideal for downsizers or retirees seeking a community-focused, low-maintenance lifestyle.
Overall, this apartment suits someone wanting a ready-made, comfortable retirement home with generous living space and communal support services, provided they accept leasehold costs and the local area profile.
2 bedroom apartment for sale in Pincombe Court, Buckingham Close, Exmouth, EX8 — £325,000 • 2 bed • 2 bath • 990 ft²
2 bedroom apartment for sale in Long Causeway, Exmouth, Devon, EX8 — £170,000 • 2 bed • 1 bath • 633 ft²
2 bedroom flat for sale in Salterton Road, Exmouth, EX8 2NN, EX8 — £150,000 • 2 bed • 1 bath • 619 ft²
1 bedroom apartment for sale in Douglas Avenue, Exmouth, Devon, EX8 — £130,000 • 1 bed • 1 bath • 444 ft²
1 bedroom flat for sale in Rolle Road, Exmouth, EX8 2BH, EX8 — £125,000 • 1 bed • 1 bath • 512 ft²
2 bedroom apartment for sale in Pincombe Court, Buckingham Close, Exmouth, EX8 — £325,000 • 2 bed • 2 bath • 999 ft²






































