Spacious four-bedroom family home with landscaped large rear garden.
Fully renovated Victorian semi-detached townhouse, high-spec finish
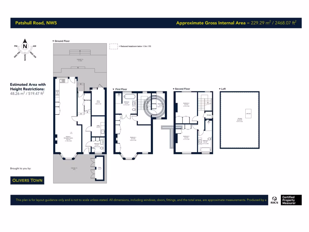
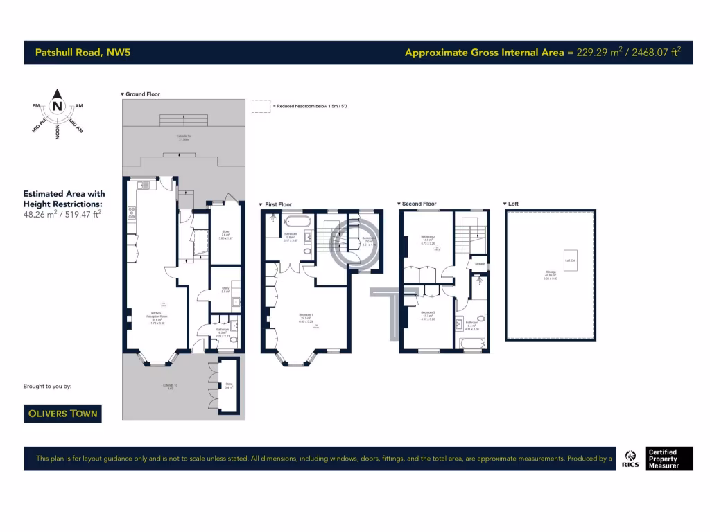
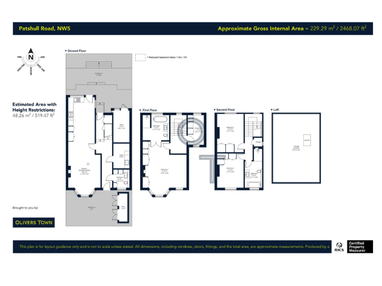
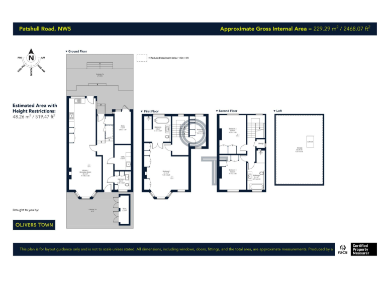
Set on sought-after Patshull Road in NW5, this fully renovated four-bedroom Victorian semi offers domestic scale with period proportions and contemporary finish. The house combines original details — bay windows and high ceilings — with a bespoke marble-topped kitchen and engineered timber floors throughout. The rear garden is generous and landscaped, while a gated front forecourt provides an attractive arrival.
Finished to a high specification, the property provides flexible family accommodation across multiple storeys with three bathrooms and a large master suite. Practicals include mains gas central heating with boiler and radiators and excellent broadband and mobile coverage. Nearby schools, parks and local shops suit families seeking inner-city convenience with a residential feel.
Important facts: the EPC rating is E and the solid-brick walls likely lack insulation, which may affect running costs and future upgrade requirements. Council tax is described as quite expensive and on-street parking is by permit only. The area records above-average crime, so buyers should assess local safety and security preferences.
This is a strong choice for a family prioritising space and style in a prime NW5 location, or for a buyer seeking a turn-key period home with clear potential for energy-efficiency improvements. Viewings will best suit those who value generous proportions and a high-spec interior but who are realistic about running costs and local parking and safety considerations.
5 bedroom terraced house for sale in Patshull Road, Camden, NW5 — £1,850,000 • 5 bed • 2 bath • 2170 ft²
4 bedroom house for sale in Patshull Road, NW5 — £2,300,000 • 4 bed • 2 bath • 2242 ft²
5 bedroom detached house for sale in Patshull Road, Kentish Town NW5 — £2,000,000 • 5 bed • 3 bath • 2206 ft²
3 bedroom maisonette for sale in Gaisford Street, London, NW5 — £1,000,000 • 3 bed • 1 bath • 1058 ft²
4 bedroom terraced house for sale in Raveley Street, Kentish Town, NW5 — £2,250,000 • 4 bed • 3 bath • 2450 ft²
5 bedroom terraced house for sale in Raveley Street, Kentish Town, NW5 — £2,500,000 • 5 bed • 3 bath • 2349 ft²






























































































