**Standout Features:**
- Chain-free, freehold property
- Three bedrooms with potential for modernization
- Off-street parking
- Generously sized garden
- Close proximity to Streatham Common and Norbury stations
- Excellent local schools and amenities nearby
- Good transport links to central London
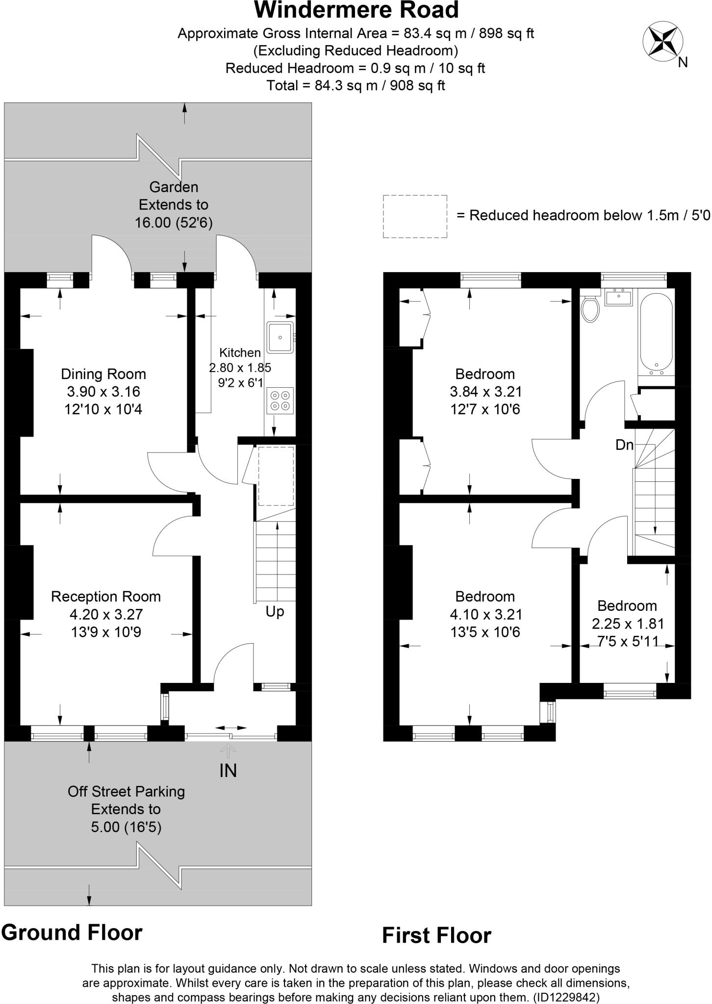
This mid-20th century terraced house presents a fantastic opportunity for buyers looking to create their dream home. With three bedrooms, including two spacious doubles and a versatile single room ideal for a home office or nursery, this property provides ample space for families. The reception room and dining area offer the potential for a cohesive living space, while the galley-style kitchen awaits your personal touch.
Significant renovation potential exists, including the possibility for rear and loft extensions (subject to planning). Located in an affluent community, the house is only a short five-minute walk to Lidl and surrounded by excellent schools—many holding outstanding Ofsted ratings. Enjoy easy access to the green expanses of Norbury Park and Streatham Common for family outings or leisurely walks.
With off-street parking and solid foundations, this home awaits a buyer ready to modernize and personalize it. Don’t miss your chance to invest in a property with so much potential in a desirable area—opportunities like this won’t be available for long!







































