Light-filled two-bedroom apartment with garage and excellent transport links.
South-facing balcony with sunny outlook over communal gardens
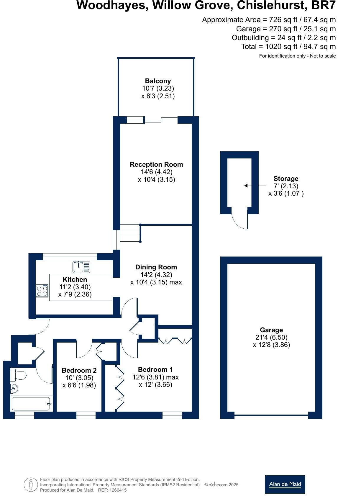
This bright two-bedroom first-floor apartment sits on Willow Grove, a short walk from Elmstead Woods station and Chislehurst High Street. The raised living area leads to a south-facing balcony that floods the open-plan living and dining space with light and overlooks well-kept communal gardens.
Practical features include a large garage, ample built-in storage, double glazing fitted after 2002, and a very long lease (954 years). Broadband and mobile signal are strong, the local area is very affluent with very low crime, and nearby schools have good Ofsted ratings — a convenient setting for families or commuters.
The accommodation is chain-free and presented in neutral, modern décor, making it easy to move into or let. Note the property has a single bathroom and is a first-floor home accessed by stairs, which may be a consideration for mobility-limited buyers. Council tax sits in a moderate band and the building dates from the late 1960s–1970s, so buyers should expect typical maintenance for that era.
Overall this is a well-located, light-filled flat with outdoor space, secure parking and strong local amenities, suited to families, couples or buy-to-let buyers seeking low immediate maintenance and long-term tenure security.
2 bedroom flat for sale in Forest Close, Chislehurst, BR7 — £465,000 • 2 bed • 1 bath • 781 ft²
2 bedroom flat for sale in Mapledene, Kemnal Road, Chislehurst, BR7 — £385,000 • 2 bed • 1 bath • 734 ft²
2 bedroom flat for sale in Willow Grove, Chislehurst, BR7 — £350,000 • 2 bed • 1 bath • 786 ft²
2 bedroom maisonette for sale in Croft Close, Chislehurst, BR7 — £325,000 • 2 bed • 1 bath • 439 ft²
2 bedroom flat for sale in Waratah Drive, Chislehurst, BR7 — £350,000 • 2 bed • 1 bath • 797 ft²
2 bedroom flat for sale in Ravens Dene, Chislehurst, Kent, BR7 — £360,000 • 2 bed • 2 bath • 672 ft²


























































