Large sunny garden, two garages and generous living across multiple reception rooms.
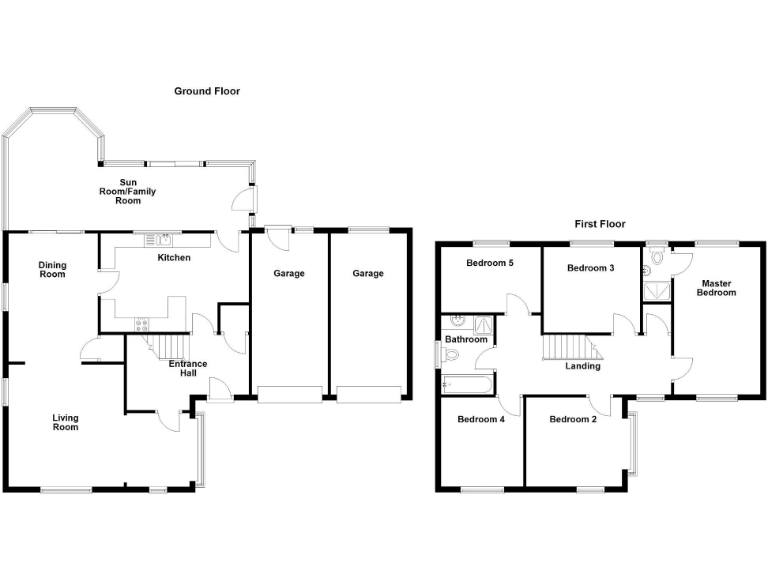
Executive five-bedroom detached on a quiet cul-de-sac
Set on a quiet cul-de-sac in a sought-after Kings Lea development, this executive five-bedroom detached home offers flexible family living across generous rooms. The large dual-aspect living room, separate dining area and a 24'5" sun room create bright, adaptable space for daily life and entertaining. The master bedroom includes an en-suite; three further double bedrooms give scope for a home office or guest suites.
Outside, the property sits on a large plot with a sunny rear garden, multiple patios and a wide driveway serving two garages — useful for families with several cars or for secure storage and hobbies. The kitchen is fitted with wall and base units, gas hob and space for appliances, and flows well to the dining and sun rooms for family meals.
Practical details: the house is freehold, built in the early 1990s with filled cavity walls and double glazing. It benefits from mains gas central heating and fast broadband in an affluent, low-crime area with good primary and secondary schools nearby. Transport links to larger towns, rail and motorways (M60/M61) are convenient for commuters.
Notable points to check before purchase: the Energy Performance Certificate is listed as 'tbc' so an up-to-date EPC rating is needed. Council tax sits in band F, which is relatively expensive. While well-presented, buyers should survey for any modernisation preferences — some fixtures and finishes date from earlier decades and could be updated to suit contemporary taste.
5 bedroom detached house for sale in Kings Lea, Adlington, PR7 — £460,000 • 5 bed • 1 bath
4 bedroom detached house for sale in Aldcliffe Court, Adlington, Chorley, PR6 — £374,995 • 4 bed • 3 bath • 1486 ft²
5 bedroom detached house for sale in Haworth Road, Chorley, PR6 — £519,995 • 5 bed • 4 bath • 2394 ft²
4 bedroom detached house for sale in Byre View, Adlington, Chorley, PR6 — £345,000 • 4 bed • 2 bath • 1087 ft²
5 bedroom detached house for sale in Woodfield Gardens, Euxton PR7 6NJ, PR7 — £725,000 • 5 bed • 3 bath • 2390 ft²
4 bedroom detached house for sale in Barn View, Adlington, Lancashire, PR6 — £375,000 • 4 bed • 2 bath • 1889 ft²


























































































































