**Standout Features:**
- Modern detached four-bedroom family home built in 2022
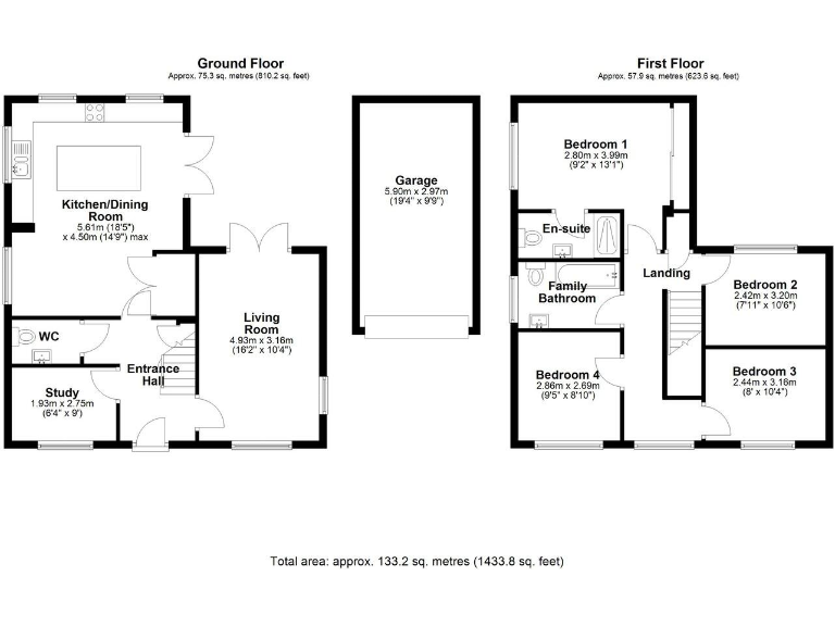
- Spacious entrance hall with under-stairs storage
- Impressive open-plan kitchen/dining area with central island and quartz finishes
- Dual-aspect living room with feature media wall and French doors to garden
- Separate study or family room
- Master bedroom includes ensuite bathroom
- Enclosed generous rear garden with extended patio
- Garage and double-width driveway for ample parking
- Upgraded heating with WiFi control and energy-efficient features
- Chain-free sale for a quick move-in
Nestled in the heart of the affluent village of Grove, this beautifully presented four-bedroom detached family home is perfect for both families and first-time buyers seeking space and modern comforts. With a perfect blend of practical living and elegant design, the property boasts a stunning open-plan kitchen/dining area featuring a large island and quartz finishes, providing an ideal entertaining space. The dual-aspect living room, complete with a stylish media wall, floods the home with natural light, complemented by a separate study, perfect for remote work or family time.
Upstairs, you'll find four well-proportioned bedrooms, including an ensuite for the master, promising comfort and privacy. An enclosed rear garden offers plenty of space for outdoor activities and gatherings, featuring a newly laid lawn and an extended patio, ideal for summer barbecues. With no onward chain, this home is ready for you to move in and make your own.
Conveniently located near local amenities and excellent transport links, including fast access to Didcot Parkway and nearby schools, this property is an excellent opportunity that combines modern living with family-friendly convenience. Don't miss out on making this stunning home your own—schedule a viewing today!
4 bedroom detached house for sale in Meteor Row, Wantage, OX12 — £435,000 • 4 bed • 2 bath • 1230 ft²
4 bedroom semi-detached house for sale in Shannon Close, Grove, Wantage, OX12 — £525,000 • 4 bed • 3 bath • 1966 ft²
5 bedroom detached house for sale in Curtiss Close, Wantage, OX12 — £475,000 • 5 bed • 2 bath • 1490 ft²
4 bedroom detached house for sale in Armstrong Avenue, Grove, OX12 — £475,000 • 4 bed • 2 bath • 1657 ft²
3 bedroom detached house for sale in Blenheim Gardens, Grove, OX12 — £425,000 • 3 bed • 2 bath • 1178 ft²
4 bedroom terraced house for sale in Lancaster Crescent, Grove, OX12 — £400,000 • 4 bed • 2 bath • 1324 ft²






















































