**Standout Features:**
- Chain free sale
- Central city location within York’s historic walls
- Spacious five-storey terrace house
- Seven bedrooms and three bathrooms
- Private gated garden with parking
- Period features including sash windows, fireplaces, and ornate ceilings
- Excellent mobile signal and average broadband speeds
**Potential Concerns:**
- Requires significant renovation
- Expensive council tax
- Limited insulation in solid brick construction
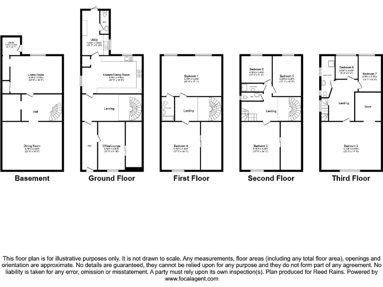
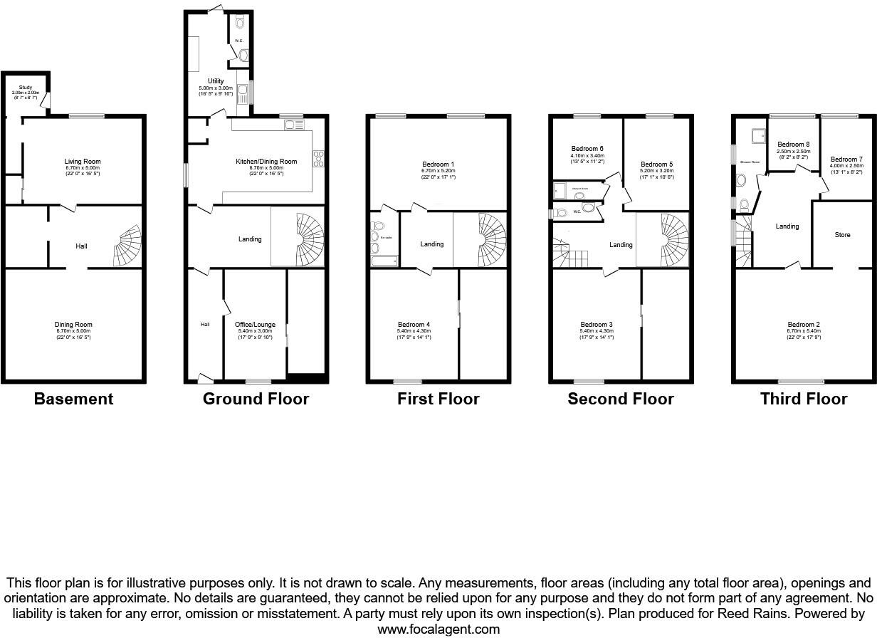
Explore a unique opportunity to own a historical gem situated in the heart of York. This five-storey terraced house boasts seven bedrooms and three bathrooms, complemented by four spacious reception rooms that showcase exquisite period features, such as Victorian high ceilings, grand fireplaces, and original stone detailing. With a private, gated garden that offers a rare outdoor space and potential parking, this property presents an ideal setting for families or investors looking to revitalize a prominent city residence.
Nestled within the cosmopolitan Micklegate area, this home allows residents to immerse themselves in vibrant city life, all while being enveloped by the charm of York's historic architecture. Although it requires extensive renovation to unlock its full potential, the layout and location provide the perfect canvas for personal design. Internal viewings are highly recommended to appreciate the grandeur and possibilities this property holds. Don’t miss this fantastic opportunity to make a historic home your own!
7 bedroom terraced house for sale in Micklegate, York, North Yorkshire, YO1 — £649,000 • 7 bed • 3 bath • 4820 ft²
4 bedroom town house for sale in Castlegate, York, YO1 9RP, YO1 — £875,000 • 4 bed • 2 bath • 2751 ft²
3 bedroom house for sale in Dewsbury Cottages, York, YO1 — £525,000 • 3 bed • 2 bath • 928 ft²
2 bedroom terraced house for sale in Falkland Street, Bishophill, YO1 — £375,000 • 2 bed • 1 bath • 754 ft²
5 bedroom house for sale in The Georgian Townhouse, Walmgate, York, YO1 — £1,150,000 • 5 bed • 5 bath • 3069 ft²
2 bedroom town house for sale in Bishophill Junior, York, YO1 6EN, YO1 — £399,995 • 2 bed • 1 bath • 882 ft²


































































































