Extensively renovated five-bedroom family home with large southerly gardens and gated driveway.
Five double bedrooms plus single/study; three bathrooms including ensuites
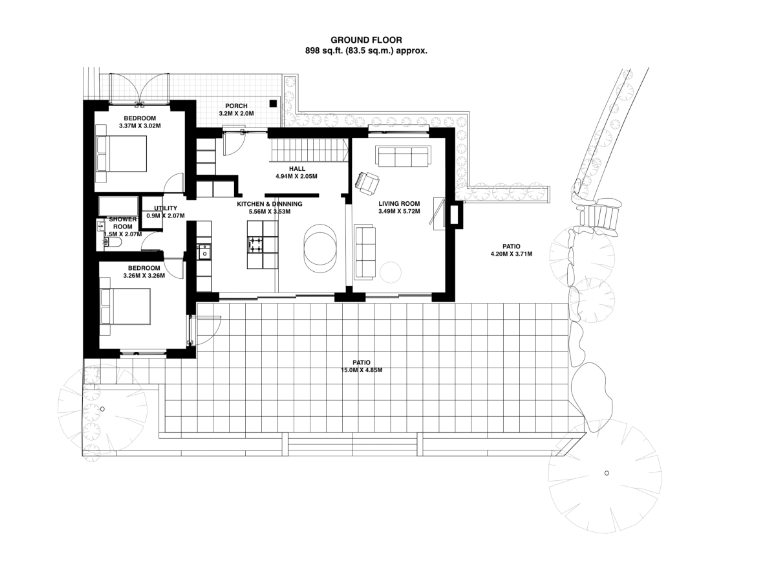
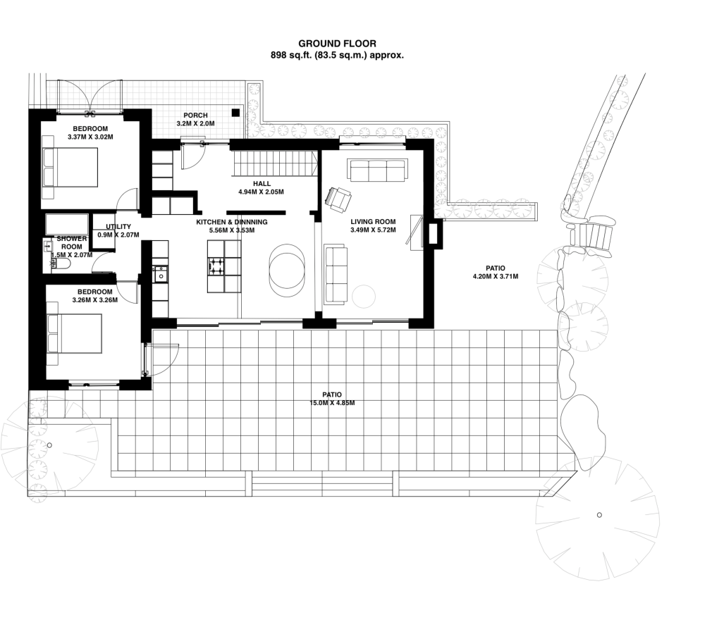
A beautifully renovated five-bedroom detached house arranged over two floors, The Rookery combines contemporary open-plan living with generous, southerly-facing gardens. The well-planned kitchen/diner and large sliding doors create a strong indoor–outdoor connection, ideal for family life and outdoor entertaining on the sun terrace. Ground-floor layout includes two double bedrooms with separate rear access, offering easy annexe or guest use.
The house has been comprehensively refurbished by architect-owners to a high standard: engineered oak parquet flooring, bespoke joinery, quartz worktops, and large panel sliding doors. Upstairs provides three further bedrooms including a master with fitted wardrobes and ensuite; the accommodation suits larger families seeking privacy and flexible spaces. The gated gravel driveway provides ample off-street parking for multiple vehicles.
Notable practical points: the property dates from 1985 and, while recently refurbished, further external development of the lower garden would require planning permission. Council Tax Band E means running costs are above average. Connectivity is typical for a rural location — superfast fibre available (max ~79–80 Mbps) and average mobile signal. There is no recorded flood risk.
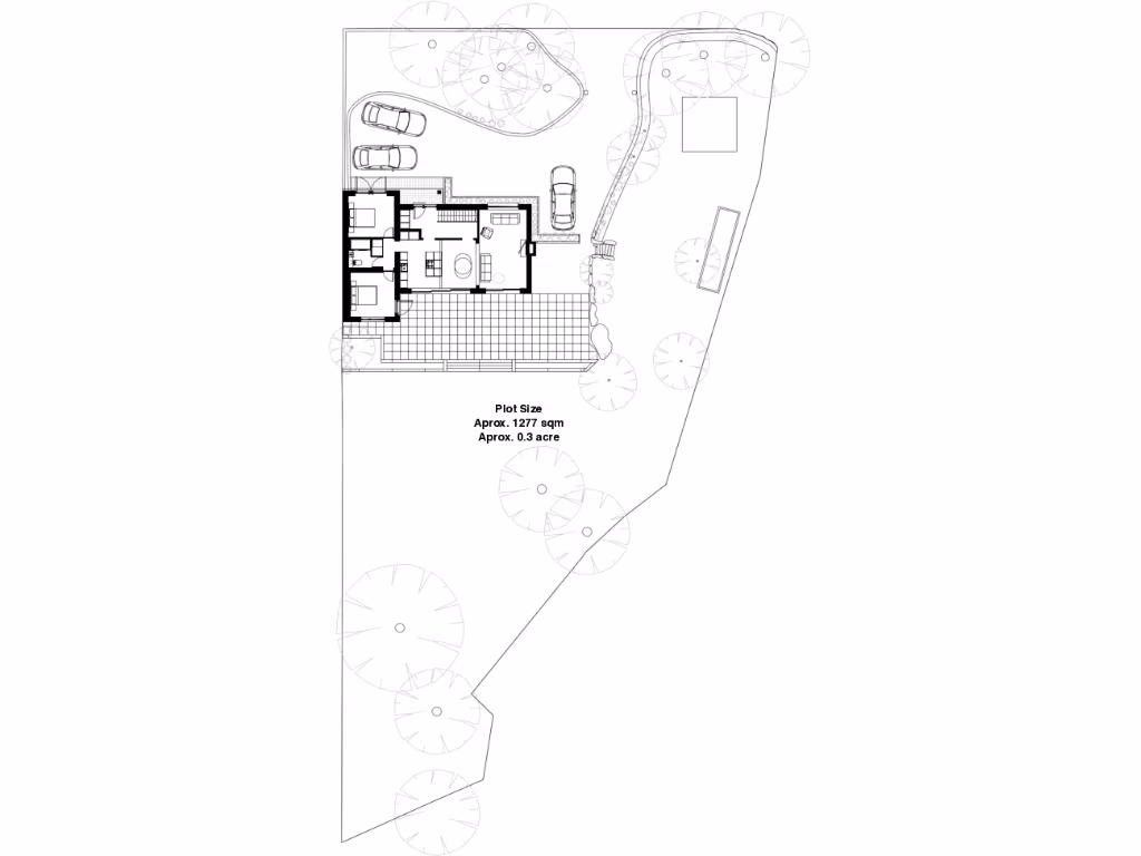
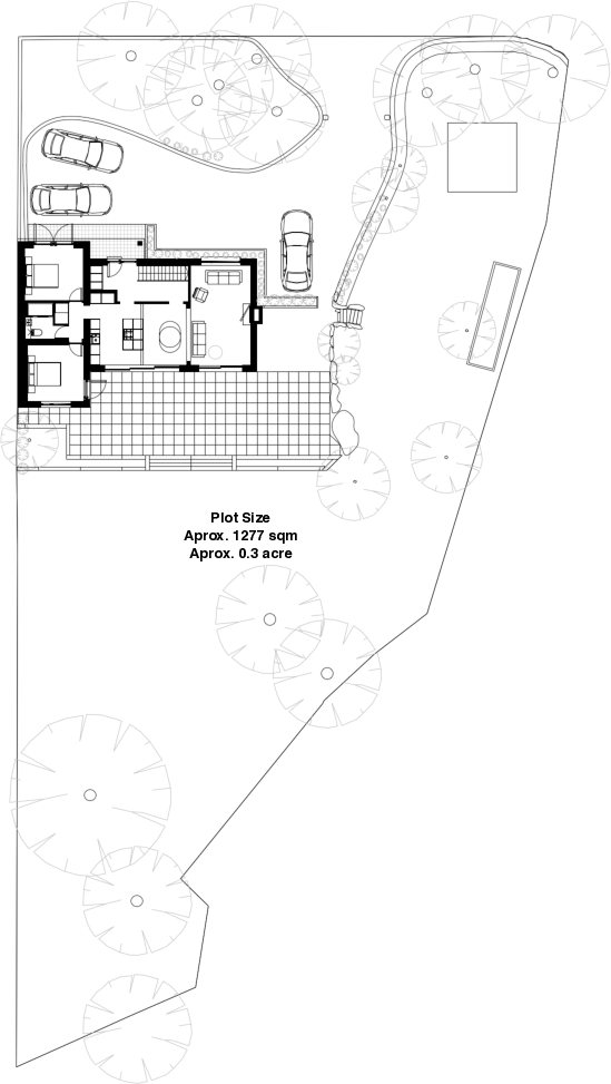
Situation-wise, the house sits on approximately 0.3 acres in a popular village setting, about 2 miles from Penryn and 2.5 miles from Falmouth, with local primary schools and amenities close by. The mature boundaries and established planting provide privacy and a tranquil woodland feel, while the nearby towns supply shops, schools and transport links.
3 bedroom detached house for sale in Antron Way, Mabe Burnthouse, TR10 — £695,000 • 3 bed • 3 bath • 1892 ft²
4 bedroom detached house for sale in Antron Way, Mabe Burnthouse, TR10 — £695,000 • 4 bed • 2 bath • 1861 ft²
5 bedroom detached house for sale in Antron Hill, Mabe Burnthouse, TR10 — £850,000 • 5 bed • 3 bath • 2798 ft²
5 bedroom detached house for sale in Falmouth, TR11 — £715,000 • 5 bed • 2 bath • 1118 ft²
4 bedroom detached house for sale in Mabe Burnthouse, TR10 — £550,000 • 4 bed • 2 bath • 1409 ft²
4 bedroom detached house for sale in Stickenbridge, Perranarworthal, TR3 — £895,000 • 4 bed • 2 bath • 1265 ft²


































































































































































