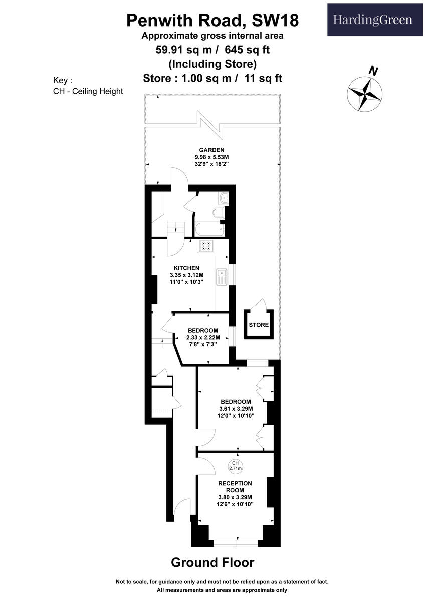
**Standout Features:**
- 2 bedrooms (1 master double, 1 single)
- Period maisonette with modern decor
- Share of freehold
- Spacious decked garden
- Excellent extension potential (subject to planning permissions)
- Low crime rates and affluent area
This charming two-bedroom period maisonette perfectly blends modern aesthetics with classic character, boasting a spacious decked garden that spans the width of the property—ideal for outdoor entertaining or family time. The light-filled master bedroom provides ample storage, while the additional single room serves as a delightful office or nursery. The contemporary kitchen features sleek appliances and engineered wood flooring, complemented by a welcoming reception room adorned with elegant period details.
Situated in a highly-qualified community near Earlsfield and Southfields, this home offers exceptional convenience. Just a short stroll to several tube and rail stations, as well as vibrant local amenities including shops, bars, and restaurants, it’s perfect for both families and professionals. Plus, with excellent schools nearby, this location offers an ideal environment for growing families. The opportunity to expand with a side return presents exciting future potential. With a competitive price of £575,000, this property won’t be available for long—don't miss your chance to make it your own!
2 bedroom flat for sale in Penwith Road, London, SW18 — £600,000 • 2 bed • 1 bath • 717 ft²
2 bedroom maisonette for sale in Penwith Road, London, SW18 — £650,000 • 2 bed • 1 bath • 775 ft²
2 bedroom flat for sale in Ravensbury Road, London, SW18 — £525,000 • 2 bed • 1 bath • 542 ft²
2 bedroom maisonette for sale in Penwith Road, London, SW18 — £565,000 • 2 bed • 1 bath • 701 ft²
2 bedroom flat for sale in Merton Road, Southfields, London, SW18 — £575,000 • 2 bed • 2 bath • 704 ft²
2 bedroom flat for sale in Merton Road, London, SW18 — £550,000 • 2 bed • 1 bath • 753 ft²


























































