Large three-bedroom shared ownership home with garden and allocated parking, near Colchester amenities.
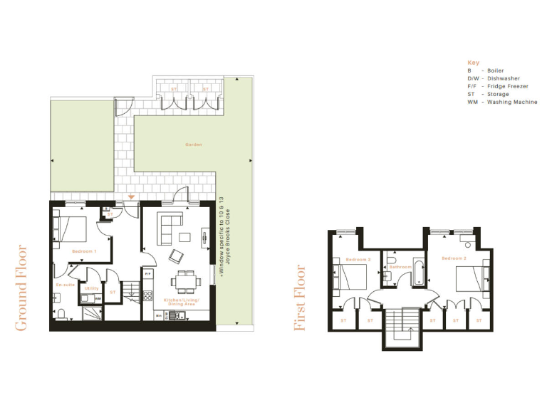
Three bedrooms, principal with en-suite
A bright, roomy three-bedroom end-of-terrace arranged over two floors, this property suits growing families needing practical, modern space. The open-plan ground floor flows onto a private garden and includes integrated fridge/freezer, dishwasher and washing machine—useful move-in inclusions. The principal bedroom has an en-suite; two further double bedrooms and a family bathroom occupy the upper floor. Allocated off-street parking and generous overall size (c.1,250 sq ft) add everyday convenience.
This sale represents a 25% shared ownership share with a 123-year lease remaining and an average service charge of £1,020. The combined mortgage-plus-rent model offers lower upfront costs, but staircasing and leasehold obligations apply—important for long-term plans. Note the listing says "New build" while the record lists original construction 1967–1975; please verify construction/finish details prior to offer.
Practical features include mains gas boiler and radiators, double glazing, fast broadband and low local crime. Colchester town centre facilities, green spaces and good transport links (rail and A12) are nearby, plus several highly regarded schools within easy reach. Mobile signal is average.
Suitable for families seeking an affordable route to ownership in a quiet, affluent suburb, this home offers immediate liveability with scope to personalise over time. Shared ownership reduces the initial cost but brings ongoing service charge and leasehold commitments to factor into affordability calculations.
4 bedroom semi-detached house for sale in Pointsman Way, Colchester, Essex, CO3 — £126,000 • 4 bed • 1 bath • 1066 ft²
3 bedroom semi-detached house for sale in Pointsman Way, Colchester, CO3 — £170,000 • 3 bed • 1 bath • 649 ft²
3 bedroom end of terrace house for sale in Abberton Road, Layer-De-La-Haye, CO2 — £223,200 • 3 bed • 1 bath • 815 ft²
3 bedroom semi-detached house for sale in Lambourne, Alresford, CO7 — £136,000 • 3 bed • 1 bath • 915 ft²
3 bedroom semi-detached house for sale in Branstons Drive, East Bergholt, Colchester, CO7 — £107,500 • 3 bed • 1 bath • 1001 ft²
3 bedroom semi-detached house for sale in Chestwood Crescent, Layer-de-la-Haye, Colchester, CO2 — £168,750 • 3 bed • 1 bath • 1009 ft²


















































































