Spacious two-bed ground-floor flat — high ceilings, parking and no chain near the sea.
Ground-floor Victorian flat, moments from the beach
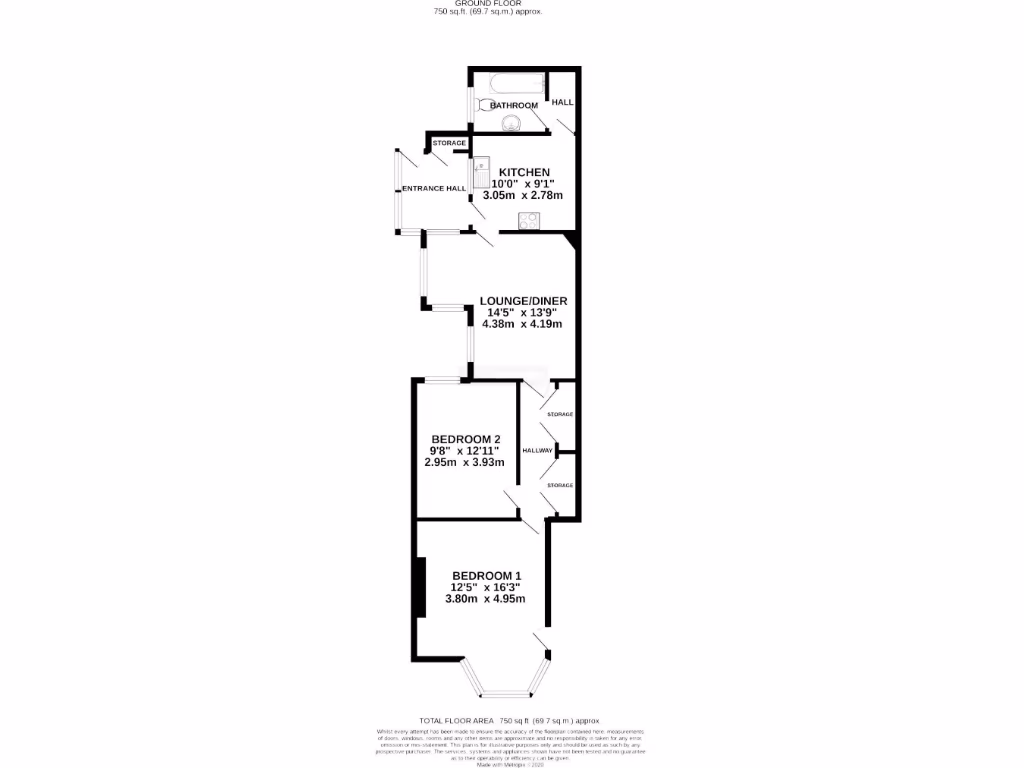
A bright, smart ground-floor Victorian flat set just a short walk from the seafront. High ceilings, large rooms and neutral decor make the space feel airy and well proportioned, ready to move into. Two double bedrooms and generous storage suit first-time buyers or those seeking to downsize without sacrificing space.
Practical advantages include an allocated off-street parking space, gas central heating, UPVC double glazing and a very long lease (962 years). There are no service charges and the nominal ground rent of £2 per year keeps running costs low; council tax is in Band A.
Material points to note: the building dates from before 1900 and external walls are sandstone/limestone with assumed no insulation, and the property has an Energy Rating of D — additional insulation work could improve comfort and running costs. The flat is leasehold, though with an effectively unrestricted term remaining, and it is sold chain-free for a straightforward purchase.
3 bedroom flat for sale in Clarence Road North, Weston super Mare - 3 BEDS + PARKING, BS23 — £220,000 • 3 bed • 1 bath • 937 ft²
2 bedroom flat for sale in Brighton Road, Weston-Super-Mare, BS23 — £175,000 • 2 bed • 1 bath • 841 ft²
2 bedroom flat for sale in Clarence Road North, Weston super Mare - CLOSE SEA FRONT , BS23 — £210,000 • 2 bed • 1 bath • 678 ft²
2 bedroom apartment for sale in Ashcombe Road, Weston-Super-Mare, BS23 — £180,000 • 2 bed • 1 bath • 668 ft²
2 bedroom flat for sale in Locking Road, BS23 — £170,000 • 2 bed • 1 bath • 520 ft²
2 bedroom flat for sale in South Road, Weston-super-Mare, BS23 — £155,000 • 2 bed • 1 bath • 530 ft²


















































