**Standout Features:**
- Generously proportioned bungalow with spacious living areas
- 0.4-acre mature gardens offering privacy and outdoor potential
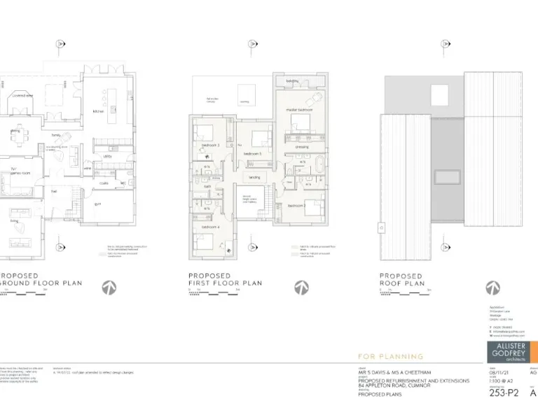
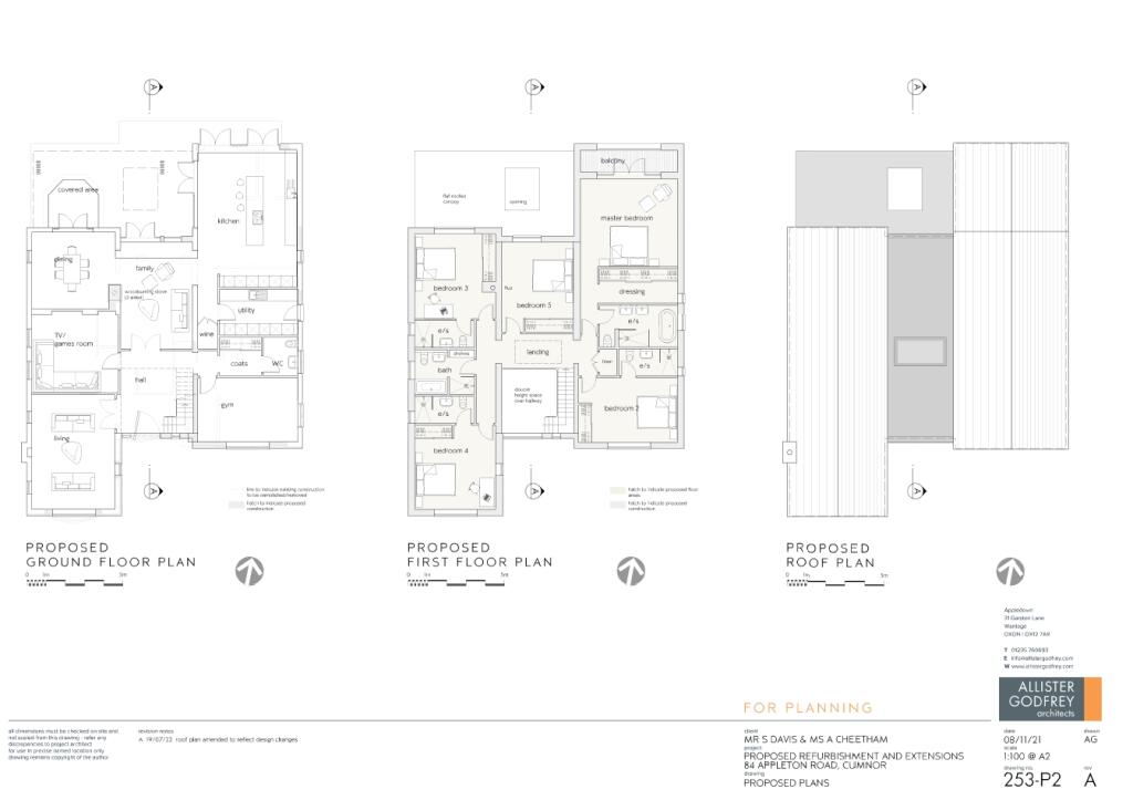
- Planning permission granted for a contemporary two-storey home, valid until September 2026
- Three sizable reception rooms, kitchen with roof lights, and conservatory
- Principal bedroom with en suite, plus two additional double bedrooms
- Well-maintained but requires some modernisation
- Detached garage and shed included
This generous bungalow offers a fantastic opportunity for families or investors, nestled within enchanting gardens that bring both tranquility and potential. Spanning an impressive 0.4 acres and surrounded by lush greenery and mature trees, the property provides a perfect blend of space and seclusion. The inviting single-storey layout features a bright kitchen with skylights, three versatile reception rooms, and a spacious conservatory, ideal for entertaining or relaxing with family.
The principal suite is complete with an en suite shower room, complemented by two additional well-sized double bedrooms, making it suitable for various living arrangements. While the bungalow currently requires some modernization, the investment is well worth it for those looking to craft their dream home. With existing planning permission for a stylish new build that maximizes the space with additional living areas, a home gym, and multiple en suite bedrooms, the future potential is immense.
Located in the village of Cumnor, just four miles from Oxford, it boasts a community-focused atmosphere with schools, shops, and recreational facilities nearby. Excellent transport links ensure easy access to Oxford, Abingdon, and further afield. Don't miss this rare chance to shape a property tailored to your lifestyle while enjoying the serenity of rural life. Act quickly—opportunities like this don’t last long!
4 bedroom detached bungalow for sale in Bertie Road, Oxford, OX2 — £780,000 • 4 bed • 3 bath • 1893 ft²
3 bedroom detached bungalow for sale in Cumnor Village, Oxford, OX2 — £600,000 • 3 bed • 2 bath • 1877 ft²
3 bedroom detached bungalow for sale in Cumnor, Oxford, OX2 — £525,000 • 3 bed • 1 bath • 865 ft²
4 bedroom detached house for sale in Oxford Road, Cumnor, Oxford, Oxfordshire, OX2 — £850,000 • 4 bed • 2 bath • 1891 ft²
4 bedroom detached bungalow for sale in The Ride, Tubney Wood, OX13 — £975,000 • 4 bed • 2 bath • 1435 ft²
5 bedroom detached house for sale in Leys Road, Cumnor, Oxford, Oxfordshire, OX2 — £1,150,000 • 5 bed • 3 bath • 2152 ft²


















































































































































