Ready-to-move three-bed with excellent transport links and small garden.
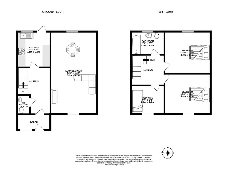
- Three good-sized bedrooms and family bathroom
- Ground-floor WC and modern open-plan living/dining
- Small rear garden with storage shed
- Move-in ready with complete onward chain
- Excellent public transport and fast broadband
- Built 1950–1966; cavity walls likely uninsulated
- Double glazing fitted before 2002 may need updating
- Tenure not specified; purchaser should confirm
A practical three-bedroom semi-detached home in Romford, presented ready to move into with a complete onward chain. The ground floor offers a handy WC and an open-plan living/dining area that feels bright and modern, while three good-sized bedrooms and a family bathroom sit upstairs to suit family routines. A garden with a storage shed provides outdoor space for children and bikes, though the plot is small.
Transport is a clear strength: frequent buses nearby and fast rail links from Romford make commuting straightforward. Local schools rated Good and a range of shops and amenities are within easy reach, so daily life is convenient for families.
Built in the 1950s–1960s, the property has double glazing installed before 2002 and cavity walls likely without added insulation — a straightforward improvement opportunity to reduce future energy bills. Tenure is not specified, which should be confirmed early in the buying process. Overall this is a comfortable, well-presented family home with reasonable scope for energy-efficiency upgrades and cosmetic personalisation.
3 bedroom semi-detached house for sale in Rosedale Road, Romford, RM1 — £450,000 • 3 bed • 1 bath • 884 ft²
3 bedroom end of terrace house for sale in Straight Road, Romford, RM3 8XU, RM3 — £440,000 • 3 bed • 1 bath • 1020 ft²
3 bedroom semi-detached house for sale in Swindon Lane, Romford, RM3 — £425,000 • 3 bed • 1 bath • 712 ft²
3 bedroom semi-detached house for sale in Inverclyde Gardens, Romford, RM6 — £575,000 • 3 bed • 2 bath • 997 ft²
3 bedroom terraced house for sale in Bell Avenue, Romford, RM3 — £425,000 • 3 bed • 1 bath • 1004 ft²
3 bedroom semi-detached house for sale in Hainault Road Romford Essex, RM5 — £490,000 • 3 bed • 1 bath • 883 ft²






















































































