**Standout Features:**
- Spacious 2 double bedrooms
- Enclosed rear garden with rear access
- Double glazing and electric heating
- Affordable council tax
- Prime location in coastal Lossiemouth
- Functional mid-20th century design with renovation potential
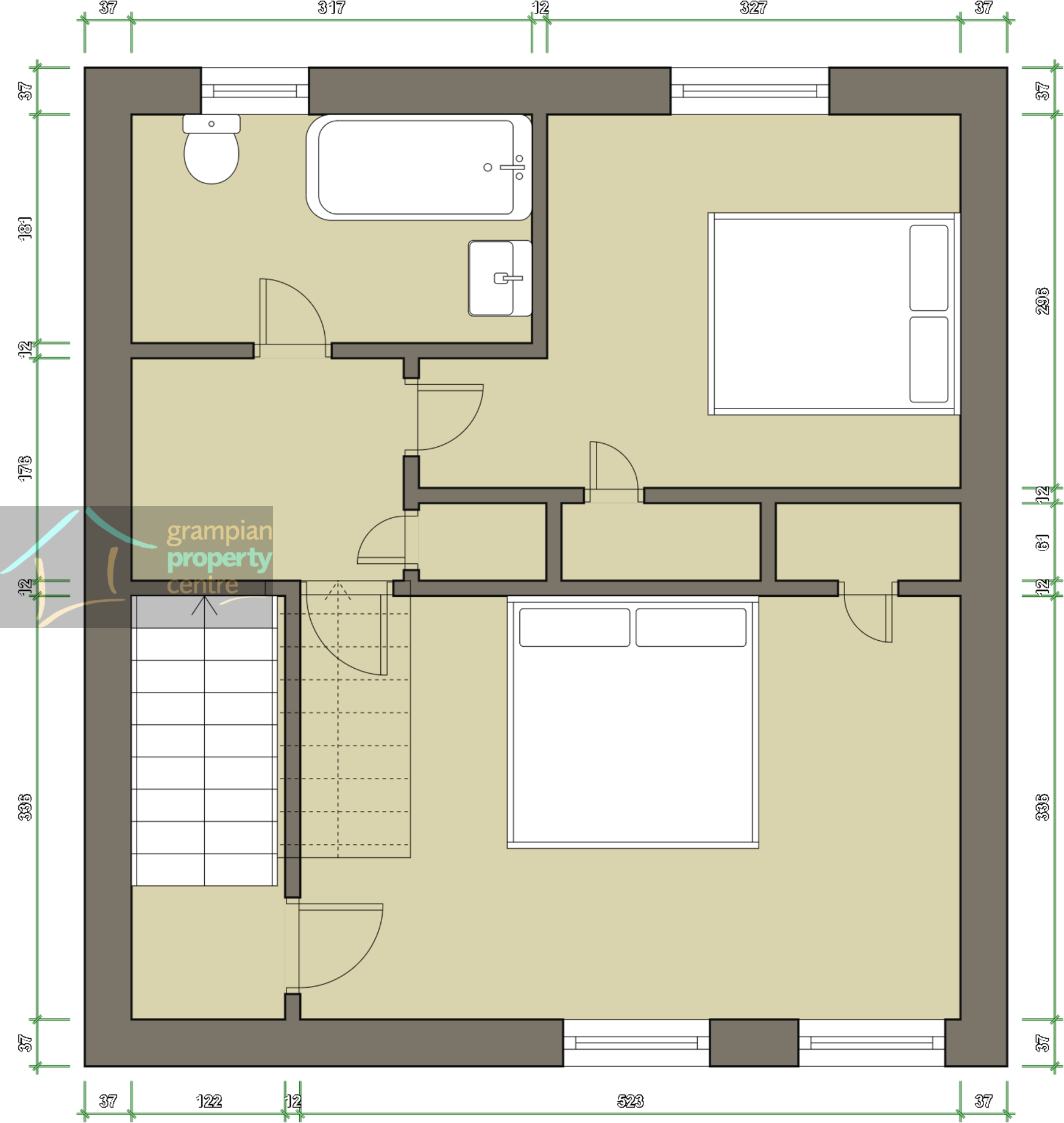
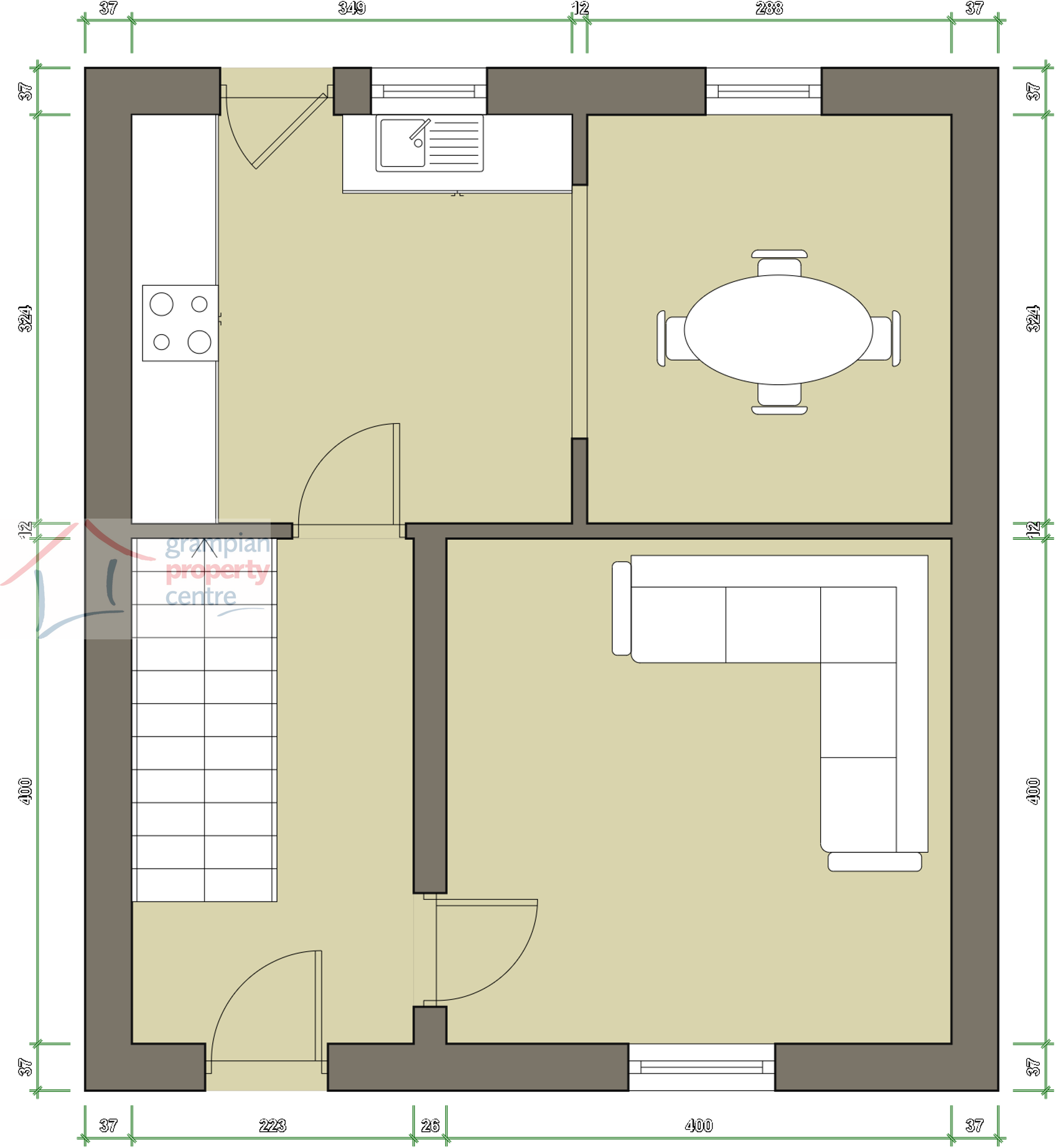
This charming 2-bedroom mid-terrace house in the desirable coastal town of Lossiemouth is perfect for families and first-time buyers seeking comfort and affordability. Spanning 706 square feet, the property showcases a functional layout with an inviting hallway, cozy lounge, and a kitchen/dining area equipped with essential appliances. The two spacious double bedrooms are complemented by a bathroom featuring modern amenities.
The enclosed rear garden offers a tranquil outdoor space, ideal for relaxation or family gatherings, with potential for further enhancements. Notably, this home features double glazing, ensuring energy efficiency in a region known for its industrious spirit. The council tax is impressively low, making this property an economical choice within a challenged community.
Although the property might benefit from some modernization, this presents an excellent opportunity for those looking to add personal touches. With average mobile connectivity and fast broadband, it suits both residential living and potential rental investment. Don’t miss the chance to make this property your own in a community that balances coastal charm with practical convenience!
2 bedroom terraced house for sale in Hillview Place, Lossiemouth, Moray, IV31 — £130,000 • 2 bed • 1 bath • 841 ft²
2 bedroom end of terrace house for sale in Bailey Place, Lossiemouth, IV31 6RW, IV31 — £140,000 • 2 bed • 1 bath
3 bedroom semi-detached house for sale in Macduff Street, Lossiemouth, Moray, IV31 — £135,000 • 3 bed • 1 bath • 1024 ft²
4 bedroom end of terrace house for sale in 34 High Street, Lossiemouth, Moray IV31 6AA, IV31 — £230,000 • 4 bed • 3 bath • 1894 ft²
1 bedroom semi-detached bungalow for sale in Forth Place, Lossiemouth, IV31 6RQ, IV31 — £125,000 • 1 bed • 1 bath
3 bedroom terraced house for sale in 91 Stotfield Road, Lossiemouth, IV31 — £175,000 • 3 bed • 1 bath • 904 ft²


















































































