- High-spec gloss kitchen with quartz worktops and breakfast peninsula
- Bright sitting room with underfloor heating and three Velux rooflights
- Detached garage, greenhouse power/water and multi-car resin driveway
- Two reception rooms plus boarded, insulated loft storage
- Two bedrooms with fitted Sharps wardrobes and built-in storage
- Heating is electric warm-air (Electricaire) — may increase running costs
- Cavity walls likely without added insulation; glazing install dates unknown
- Medium flood risk and local area crime higher than average
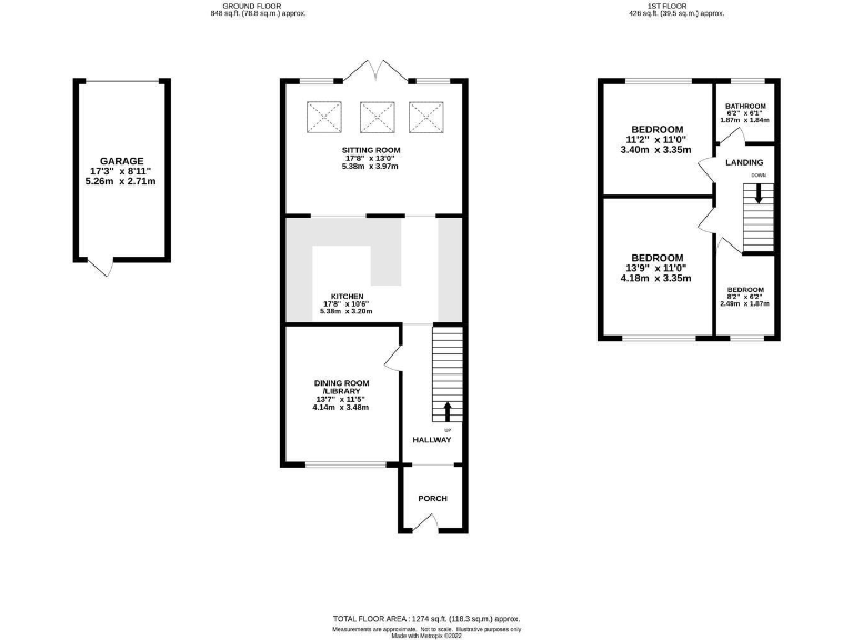
A spacious three-bedroom mid-terrace in west Brentwood, arranged over two floors with large reception rooms and good natural light throughout. The house offers a high-spec gloss kitchen with quartz worktops and a bright sitting room with underfloor heating and three rain-sensitive rooflights that flood the rear with daylight. A detached garage, greenhouse power and water supply, plus a resin driveway provide practical outdoor space and off-street parking for multiple vehicles.
This home will suit families prioritising school catchment and local green space: it falls within St Peter’s School catchment and is close to Weald Country Park and local allotments. The layout includes a separate dining/library room, three bedrooms (two with fitted Sharps wardrobes) and a boarded, insulated loft that adds useful storage or conversion potential.
Buyers should note a few material points: heating is electric warm-air (Electricaire), the walls are cavity as-built with assumed no added insulation, and glazing install dates are unknown. Flood risk is medium for the area and local recorded crime is higher than average—factors to consider for insurance and future running costs. The property is freehold and well-located for transport links and town amenities, offering strong family living potential with some scope for energy-efficiency improvements.
3 bedroom semi-detached house for sale in Wingrave Crescent, Brentwood, CM14 — £475,000 • 3 bed • 2 bath • 1051 ft²
3 bedroom end of terrace house for sale in Cameron Close, Warley, Brentwood, CM14 — £495,000 • 3 bed • 1 bath • 959 ft²
3 bedroom end of terrace house for sale in Little Highwood Way, Brentwood, CM14 — £535,000 • 3 bed • 2 bath • 910 ft²
3 bedroom terraced house for sale in Greenshaw, Brentwood, CM14 — £425,000 • 3 bed • 1 bath • 954 ft²
4 bedroom detached house for sale in The Grove, Brentwood, Essex, CM14 — £650,000 • 4 bed • 1 bath • 1088 ft²
3 bedroom semi-detached house for sale in Woodman Road, Warley, CM14 — £470,000 • 3 bed • 1 bath • 952 ft²






























































































