Low‑maintenance three-bedroom semi with private garden, garage and good transport links.
Three bedrooms with master en‑suite and separate family bathroom
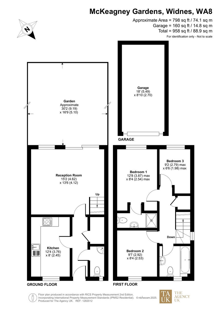
A compact, modern three-bedroom semi on a small plot, this freehold property suits families or landlords seeking low‑maintenance housing close to transport links. The house offers a practical layout across two storeys with a lounge/diner, fitted kitchen, ground-floor cloakroom, and a master bedroom with en-suite—useful for busy mornings. The rear garden is private with no properties directly behind, and a driveway plus garage provides off-street parking and storage.
Constructed around 1996–2002, the home benefits from mains gas central heating, boiler and radiators, and double glazing (installation date unknown). At about 798 sq ft the accommodation is modest but straightforward to maintain; local rents for similar homes are typically £800–£1,000 pcm, making it suitable for buy‑to‑let investors or families seeking an affordable starter or next‑step house.
Buyers should weigh clear positives against local context: the area is classified as deprived with above‑average crime and a small plot size. The property needs no known flooding protection and council tax is described as affordable, but potential purchasers may want to budget for typical upkeep and any modernisation works to kitchens or bathrooms given the era of construction.
Nearby amenities include shops, takeaways, churches and regular bus services, and three well-rated local Catholic schools are within easy reach. Broadband speeds are fast and mobile signal excellent, supporting home working or streaming. Overall, this is a practical, value-conscious option for families or investors prepared to accept a smaller footprint in exchange for privacy, parking and strong local connectivity.
3 bedroom semi-detached house for sale in Knightsbridge Close, Widnes, WA8 3BB, WA8 — £220,000 • 3 bed • 1 bath • 890 ft²
3 bedroom semi-detached house for sale in Oakfield Drive, Widnes, WA8 — £225,000 • 3 bed • 2 bath
3 bedroom semi-detached house for sale in Baynard Drive, Widnes, WA8 — £180,000 • 3 bed • 3 bath • 807 ft²
3 bedroom semi-detached house for sale in Peninsula Drive, Newton-Le-Willows, WA12 — £240,000 • 3 bed • 2 bath • 743 ft²
3 bedroom semi-detached house for sale in Haslemere, Whiston, Prescot, L35 — £210,000 • 3 bed • 1 bath • 1036 ft²
3 bedroom semi-detached house for sale in Pool Lane, Bromborough, CH62 — £225,000 • 3 bed • 2 bath • 732 ft²










































































