Single storey home with garage conservatory and scope to personalise.
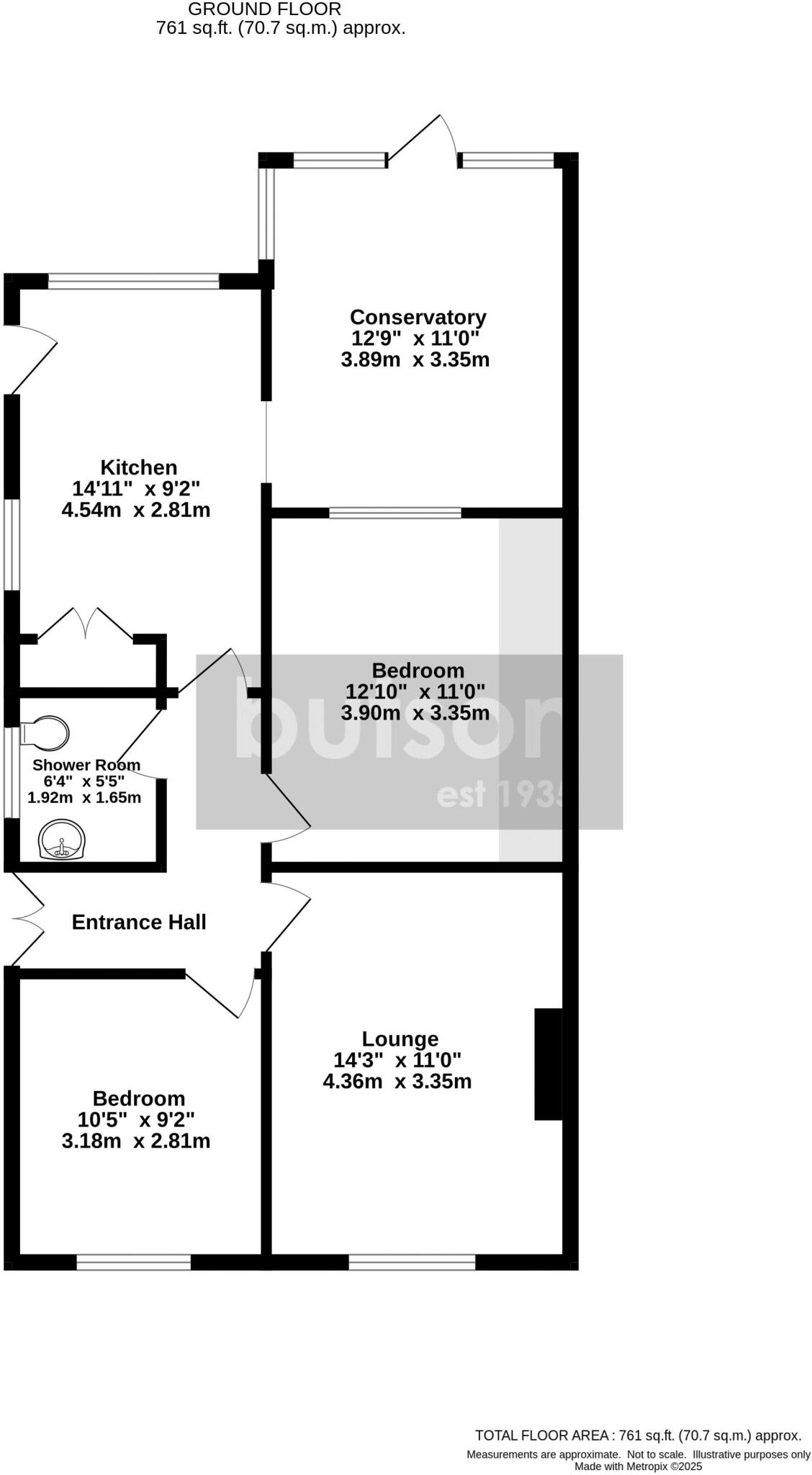
- Two bedroom true bungalow, single-storey living
- Conservatory extends living space to the rear
- Long driveway and single garage for parking and storage
- Low-maintenance paved and gravel gardens front and rear
- Recently re-roofed, gas central heating and uPVC glazing
- Requires full general renovation and modernisation throughout
- Modest living space approximately 761 sq ft
- Freehold, chain free and Council Tax Band B
This two-bedroom semi-detached true bungalow sits in a popular Thornton-Cleveleys position, a short distance from Cleveleys town centre and local bus routes. The single-storey layout includes a good-size lounge, conservatory, fitted kitchen and a practical wet room — suitable for anyone wanting ground-floor living without stairs.
The property is freehold and offered chain-free, with gas central heating, uPVC double glazing and a recently replaced roof, reducing major immediate expenditure. Outside there is a long driveway, single garage and low-maintenance front and rear gardens, making this home easy to care for and attractive to downsizers or landlords seeking a straightforward rental unit.
Importantly, the bungalow requires general renovation and modernisation throughout. Cosmetic and likely systems updating will be needed to bring the interior up to contemporary standards. Floor area is modest at about 761 sq ft, so buyers should note room sizes suit comfortable but compact living. Early viewing is recommended for those seeking a project with clear potential.
2 bedroom semi-detached bungalow for sale in Northumberland Avenue, Thornton-Cleveleys, Lancashire, FY5 — £225,500 • 2 bed • 1 bath • 625 ft²
2 bedroom semi-detached bungalow for sale in Dovedale Avenue - Thornton Cleveleys - FY5 2SR, FY5 — £139,950 • 2 bed • 1 bath • 663 ft²
2 bedroom semi-detached bungalow for sale in Eastpines Drive - Thornton Cleveleys - FY5 3RY, FY5 — £185,000 • 2 bed • 1 bath • 812 ft²
2 bedroom semi-detached bungalow for sale in North Drive - Thornton Cleveleys - FY5 2HX, FY5 — £189,999 • 2 bed • 1 bath
2 bedroom bungalow for sale in Glenmore Avenue, Thornton-Cleveleys, Lancashire, FY5 — £195,000 • 2 bed • 1 bath • 777 ft²
2 bedroom semi-detached bungalow for sale in Branksome Avenue - Thornton Cleveleys - FY5 2EW, FY5 — £180,000 • 2 bed • 1 bath • 637 ft²






































