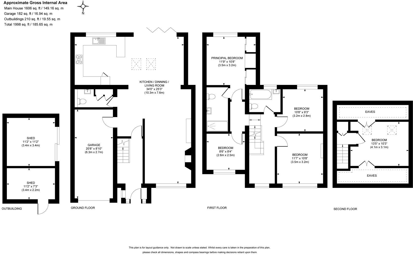
**Standout Features:**
- **Spacious Layout:** Five generous bedrooms spread over three floors with a luxurious ensuite to the master.
- **Modern Design:** Contemporary open-plan kitchen/dining area with quartz worktops and an exposed brick feature wall.
- **Natural Light:** Abundant skylights and bi-fold doors leading to a large, well-maintained garden.
- **Family-Friendly Amenities:** Children’s play area, raised patio with BBQ/dining space, and off-street parking for multiple vehicles.
- **Prime Location:** Backing onto the tranquil Basingstoke Canal, with easy access to shops and outstanding schools.
Experience modern family living in this stunning five-bedroom semi-detached home, perfect for those craving space and comfort. Designed for contemporary lifestyles, the expansive open-plan kitchen/dining room is the heart of the home, flooded with natural light that enhances every family gathering. Step through bi-fold doors to enjoy your large garden, ideal for entertaining and kids to play.
Situated in the affluent St Johns village, with a charming high street and direct access to scenic walking paths along the Basingstoke Canal, this property balances suburban peace with accessibility to Woking's vibrant amenities. With quality local schools nearby, this home is particularly appealing to families looking for educational excellence. Despite its many attributes, potential buyers should note that the home requires minor updates to reflect personal taste.
This is a rare opportunity to acquire a chain-free property in a sought-after location—act quickly to secure your ideal family retreat.
5 bedroom semi-detached house for sale in Hermitage Woods Crescent, St Johns, Woking, Surrey, GU21 — £600,000 • 5 bed • 2 bath • 1399 ft²
5 bedroom semi-detached house for sale in Hermitage Woods Crescent, Woking, Surrey, GU21 — £680,000 • 5 bed • 2 bath • 1555 ft²
3 bedroom semi-detached house for sale in Hermitage Road, Woking, Surrey, GU21 — £550,000 • 3 bed • 1 bath • 1137 ft²
4 bedroom detached house for sale in St Johns Road, St Johns, Woking, GU21 — £1,000,000 • 4 bed • 2 bath • 2192 ft²
3 bedroom semi-detached house for sale in St James Close, St Johns, Woking, GU21 — £647,500 • 3 bed • 1 bath • 1016 ft²
5 bedroom detached house for sale in Greenmeads, Woking, Surrey, GU22 — £875,000 • 5 bed • 2 bath • 1860 ft²


























































































