**Standout Features:**
- Freehold retail investment opportunity in prime town center location
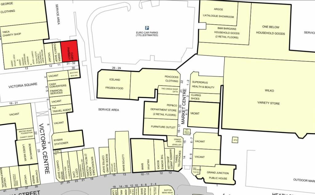
- Currently let to Clear Pharmacy (Crewe) Ltd until March 2024, generating £20,000 per annum
- Total ground floor area: 1,728 sq. ft.
- Proximity to Market Centre car park and a variety of well-known retailers
- Attractive net initial yield of 8.5%
- High foot traffic area, with nearly 100,000 weekly visitors to the Market Centre
**Concerns:**
- Existing lease expiring soon; potential for vacancy or need for new tenant arrangements
- Crime rates in the local area are categorized as very high, which could impact foot traffic and tenant interest
---
Discover a prime investment opportunity at 31-32 Market Centre, Crewe, offering a freehold retail unit currently let to Clear Pharmacy for a substantial income. With an annual rent of £20,000 and an attractive net initial yield of 8.5%, this property boasts a strategic location right across from the bustling Market Centre car park and adjacent to prominent retailers, ensuring consistent foot traffic. Stretching over 1,728 sq. ft., this modern commercial space invites diverse business possibilities for the future.
While the lease will need renewal soon as it expires in March 2024, creating a chance for potential negotiations or adjustments, the property’s prime market position is unmatched. The area yields a high volume of visitors weekly, affirming its stature as a town center hub. However, prospective buyers should be mindful of the elevated crime rates in the vicinity, which may affect demand and security considerations. Don’t miss out on the chance to secure this well-situated investment—ideal for experienced investors looking to enhance their portfolio in a growing market town!
Commercial property for sale in 10-11 Market Centre, Crewe, Cheshire, CW1 2HU, CW1 — £725,000 • 1 bed • 1 bath • 7789 ft²
Commercial property for sale in Wistaston Road, Crewe, Cheshire, CW2 — £350,000 • 1 bed • 1 bath • 3767 ft²
Commercial property for sale in 31-33 High Street, Nantwich, Cheshire, CW5 5AH, CW5 — £900,000 • 1 bed • 1 bath • 6817 ft²
Commercial property for sale in Mill Street, Crewe, CW2 — £225,000 • 2 bed • 2 bath • 1351 ft²
High street retail property for sale in 15-21 Wheelock Street, Middlewich, Cheshire, CW10 — £450,000 • 1 bed • 1 bath • 2078 ft²
Commercial property for sale in Congleton Road, Sandbach, Cheshire, CW11 — £890,000 • 1 bed • 1 bath • 20000 ft²














