Chain-free three-bedroom home steps from the seafront and local schools.
Refurbished throughout with modern kitchen and replacement bathroom
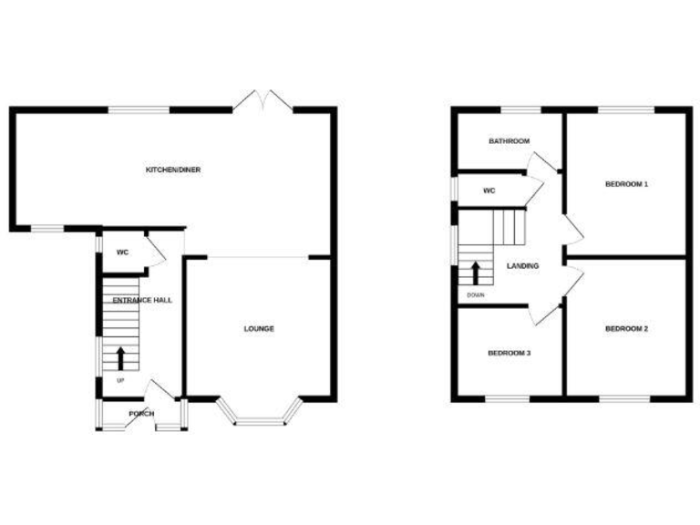
This newly refurbished three-bedroom semi offers bright, flexible living in a sought-after Holland-on-Sea location, just a short walk from the seafront, shops and good schools. The ground floor has been opened up to create a generous kitchen/dining area with a skylight and French doors that lead to a private rear garden—ideal for family meals and entertaining. The lounge retains a front bay window and a cosy fireplace, giving a comfortable balance of modern and traditional features.
Upstairs provides three well-proportioned bedrooms and a modern bathroom with a separate WC; the layout suits a growing family or a couple needing a home office. Practical extras include a driveway to a car port, gas central heating, double glazing throughout and good broadband and mobile coverage. The rear garden is approximately 35' deep, mostly lawn with a patio and shed—manageable for families who prefer low-maintenance outdoor space.
Important points to note: the plot is relatively small and the property has a single main bathroom (plus separate WC), which may be a consideration for larger households. While recently renovated throughout, any buyer wanting significant extension would need to check planning possibilities in this established residential street. Offered freehold and chain free, the house is ready for an early move-in or let-ready for investors.
Local amenities are strong—primary and secondary schools rated Good nearby, convenience shopping and eateries within easy reach, and the seafront a short walk away. This is a practical, well-presented family home in a popular coastal suburb, with genuine curb appeal and immediate usability.
3 bedroom house for sale in Frinton Road, Holland on Sea, CO15 — £250,000 • 3 bed • 1 bath • 969 ft²
3 bedroom semi-detached house for sale in Turpins Avenue, Holland-on-Sea, CO15 — £350,000 • 3 bed • 1 bath • 1141 ft²
3 bedroom bungalow for sale in Queensway, Holland on Sea, CO15 — £450,000 • 3 bed • 2 bath • 808 ft²
3 bedroom semi-detached house for sale in Fleetwood Avenue, Holland-on-Sea, Clacton-on-Sea, Essex, CO15 — £290,000 • 3 bed • 2 bath • 829 ft²
3 bedroom bungalow for sale in Dulwich Road, Holland on Sea, CO15 — £500,000 • 3 bed • 2 bath • 1463 ft²
4 bedroom detached house for sale in Ingarfield Road, Holland-on-Sea, Clacton-on-Sea, Essex, CO15 — £575,000 • 4 bed • 2 bath • 2323 ft²


















































































