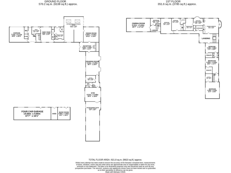
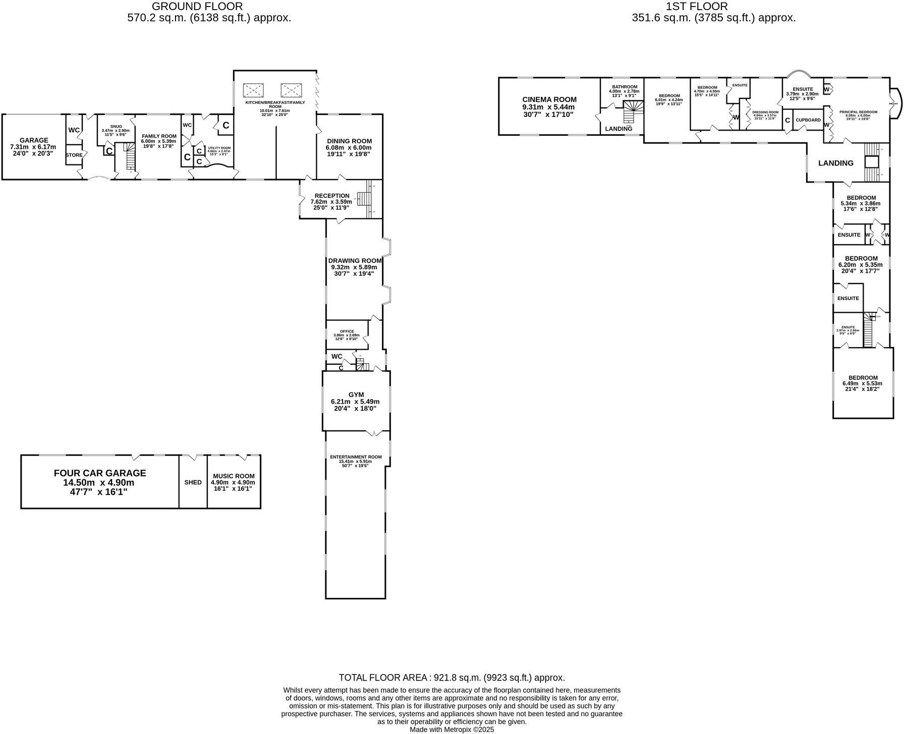
Stately six-bedroom family estate with leisure complex and almost an acre of grounds.
Approximately 9,922–10,000 sq ft of living space
A rare, nearly 10,000 sq ft detached house set within the private Little Aston Park Estate, this six-bedroom home is tailored for multigenerational family life and formal entertaining. The property blends historic Tudor-Revival character with a recent high-quality renovation: exposed beams, vaulted principal suite with balcony, and a fully refitted open-plan kitchen/family room with roof lanterns and bi-fold doors to extensive patios.
Household facilities are generous and versatile — a leisure complex with gym and entertainment room, a cinema room with separate access (potential annexe), self-contained annex accommodation, and multiple garages including a four-car garage with an adjacent music room and covered BBQ area. Grounds extend to about an acre, are immaculately tended, and are approached via electric gates and a sweeping gravel drive.
Practical considerations are straightforward: the home has underfloor heating and a mains gas boiler, an EPC rating of C, and low local crime. Broadband speeds are slow and mobile signal is average, which may affect home working and streaming without upgrades. Council tax is very expensive; buyers should factor running costs for a property of this scale.
This property suits families seeking long-term comfort and space, buyers wanting separate living for older/younger relatives, or executive purchasers seeking privacy and leisure at home. The combination of period features and contemporary fittings makes it immediately liveable, while offering scope for personal tailoring of some large internal spaces.
5 bedroom detached house for sale in Newick Avenue, Little Aston, Sutton Coldfield, B74 — £1,500,000 • 5 bed • 3 bath • 5516 ft²
5 bedroom detached house for sale in Rosemary Hill Road, Little Aston, Sutton Coldfield, B74 — £1,495,000 • 5 bed • 6 bath • 4765 ft²
7 bedroom detached house for sale in Roman Park, Little Aston Park, B74 — £2,950,000 • 7 bed • 5 bath • 7887 ft²
5 bedroom detached house for sale in Claverdon Drive, Sutton Coldfield, West Midlands B74 3AH, B74 — £1,650,000 • 5 bed • 4 bath • 3595 ft²
6 bedroom detached house for sale in Little Aston, Sutton Coldfield, B74 — £2,500,000 • 6 bed • 6 bath • 4016 ft²
5 bedroom detached house for sale in Claverdon Drive, Sutton Coldfield, Staffordshire, B74 — £1,000,000 • 5 bed • 3 bath • 2784 ft²










































































































































































































