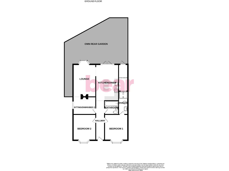
Ground-floor flat with garden, driveway and long lease near Chalkwell Beach.
Bay-fronted master bedroom with en‑suite shower
Set on desirable Woodfield Road and just a short walk from Chalkwell Station and the seafront, this ground-floor flat blends generous living space with practical outdoor areas for family life. The property's bay-fronted master bedroom with en‑suite and a long, modern open-plan kitchen-diner create a bright, sociable heart to the home — ideal for everyday family use and entertaining. A private rear garden and driveway for one large vehicle add rare outdoor and parking convenience for a central location.
Originally arranged as three bedrooms, the current layout gives a flexible two-bedroom plus reception/study arrangement; that flexibility will suit young families who need a home office, guest room or playroom. The exceptionally long lease (990+ years) and chain-free sale simplify buying and future resale prospects.
Buyers should note this is a leasehold flat in a traditionally built property with solid brick walls (no known built-in insulation) and double glazing of unknown install date. While heating is mains gas with a boiler and radiators, the property may benefit from targeted energy-efficiency improvements. Parking is limited to one off-street space and the flat is on the ground floor — convenient but with the usual ground-floor considerations for privacy and security.
Overall this is a well-sized, well-located flat offering coastal living and local schools, shops and transport on the doorstep. It suits families or buyers seeking a spacious, flexible home near Chalkwell Beach, with scope to personalise and improve energy performance over time.
2 bedroom flat for sale in Grand Parade, Leigh-On-Sea, SS9 — £500,000 • 2 bed • 2 bath • 755 ft²
2 bedroom maisonette for sale in Leigham Court Drive, Leigh-On-Sea, SS9 — £300,000 • 2 bed • 1 bath • 576 ft²
2 bedroom flat for sale in Chalkwell Bay Flats Undercliff Gardens, Leigh-On-Sea, SS9 — £350,000 • 2 bed • 1 bath • 614 ft²
2 bedroom flat for sale in Nelson Road, Leigh-on-Sea, SS9 — £280,000 • 2 bed • 2 bath • 649 ft²
1 bedroom flat for sale in The Ridgeway, Westcliff-On-Sea, SS0 — £350,000 • 1 bed • 1 bath • 713 ft²
1 bedroom flat for sale in Sandleigh Road, Leigh-On-Sea, SS9 — £265,000 • 1 bed • 1 bath • 625 ft²






































































