Move-in ready period home near Harborne High Street and excellent local schools.
No upward chain — vacant possession for a quick sale
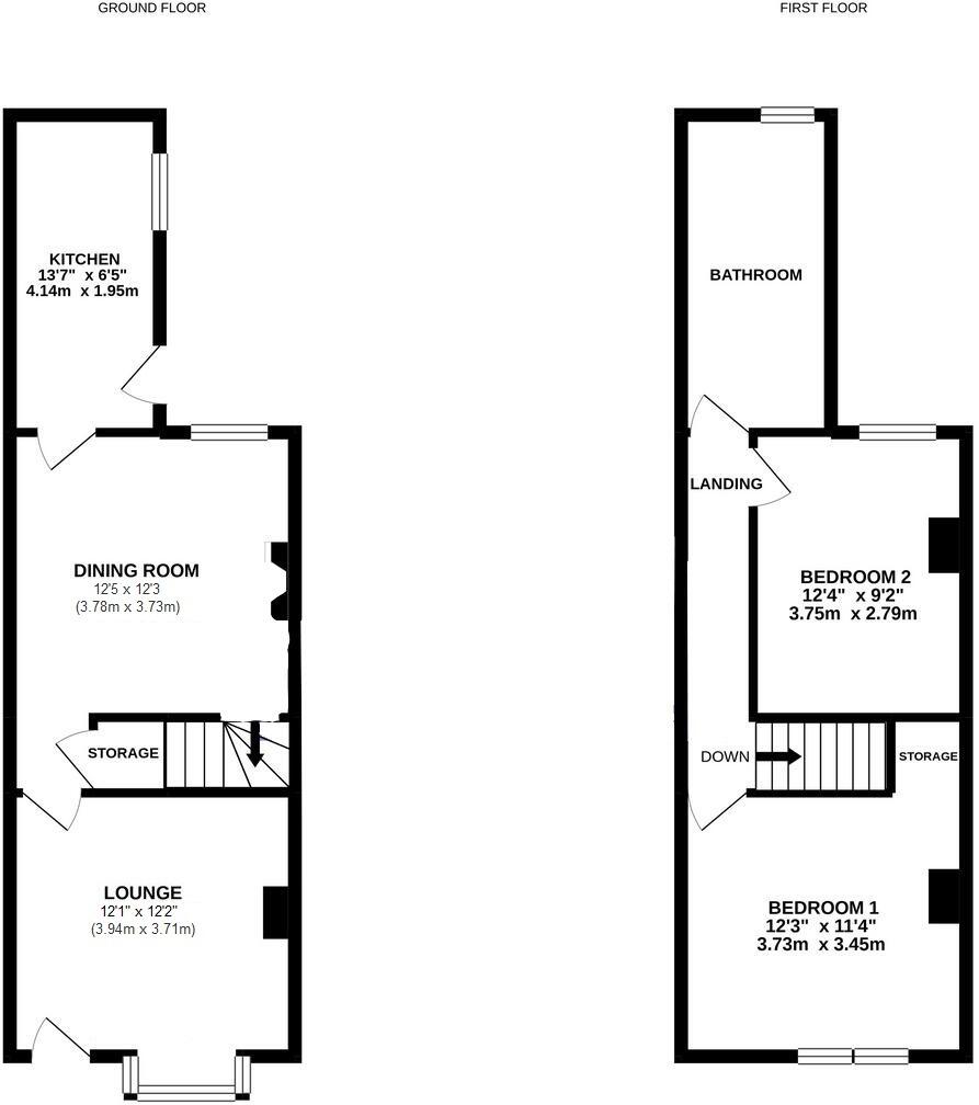
Set on one of Harborne’s most sought-after streets, this two-bedroom Victorian terrace blends original period detail with tasteful modern updates. The home is chain-free and vacant, making for a straightforward purchase and immediate occupation. Bright, well-proportioned rooms include a bay-front reception, a separate dining room with a log burner, and a fitted kitchen opening to a low-maintenance garden.  
Practical features include full double glazing, a Worcester gas boiler and an EPC C rating — all helping to keep running costs reasonable. The layout suits a small family, professionals or first-time buyers wanting a move-in-ready home within a 10–15 minute walk of Harborne High Street and convenient links to the city and local hospitals.  
Be aware this property sits on a modest plot with a small rear garden and offers one bathroom only; square footage is around 647 sq ft so living space is compact rather than expansive. The neighbourhood has average crime and mobile signal levels, but benefits from fast broadband and excellent local schools nearby. Overall this is a stylish, low-maintenance period home in a prime village-style location.
 3 bedroom terraced house for sale in Victoria Road, Harborne, Birmingham, B17 — £280,000 • 3 bed • 2 bath • 736 ft²
 3 bedroom terraced house for sale in Victoria Road, Harborne, Birmingham, B17 — £280,000 • 3 bed • 2 bath • 736 ft² 3 bedroom terraced house for sale in Hartledon Road, Harborne, Birmingham, B17 — £375,000 • 3 bed • 1 bath • 921 ft²
 3 bedroom terraced house for sale in Hartledon Road, Harborne, Birmingham, B17 — £375,000 • 3 bed • 1 bath • 921 ft² 2 bedroom terraced house for sale in Northfield Road, Harborne, Birmingham, B17 — £252,000 • 2 bed • 1 bath • 607 ft²
 2 bedroom terraced house for sale in Northfield Road, Harborne, Birmingham, B17 — £252,000 • 2 bed • 1 bath • 607 ft² 2 bedroom terraced house for sale in High Street, Harborne, Birmingham, B17 — £285,000 • 2 bed • 1 bath • 958 ft²
 2 bedroom terraced house for sale in High Street, Harborne, Birmingham, B17 — £285,000 • 2 bed • 1 bath • 958 ft² 2 bedroom terraced house for sale in Hartledon Road, Harborne, Birmingham, West Midlands, B17 0AA, B17 — £325,000 • 2 bed • 2 bath • 794 ft²
 2 bedroom terraced house for sale in Hartledon Road, Harborne, Birmingham, West Midlands, B17 0AA, B17 — £325,000 • 2 bed • 2 bath • 794 ft² 2 bedroom terraced house for sale in Northfield Road, Harborne, Birmingham, B17 — £295,000 • 2 bed • 1 bath • 851 ft²
 2 bedroom terraced house for sale in Northfield Road, Harborne, Birmingham, B17 — £295,000 • 2 bed • 1 bath • 851 ft²


























































