Compact two-bedroom retreat with wraparound veranda and year-round access.
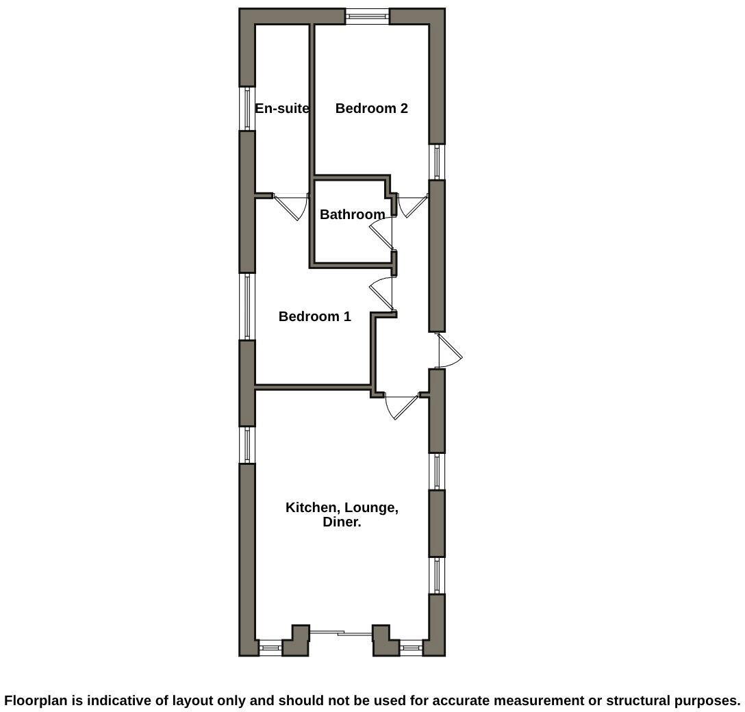
Two bedrooms including ensuite to main bedroom
Wraparound veranda with direct lake views and seating area
Open-plan kitchen/lounge/diner with integrated appliances
New build (2023) — modern finish and low-maintenance interior
Site fees £3,500 per year; utilities metered from site
Tenure not specified — confirm ownership/licence and park rules
Compact internal size with low ceilings; feels cosy, not spacious
Broadband in wider area very slow despite site WiFi (around 58Mbps)
Set on the lakeside at Helsey Farm Park, this 2023 Abbey Westwood offers modern compact living with clear rental and holiday potential. The open-plan kitchen, lounge and dining area opens onto a wraparound veranda overlooking the lake, creating an attractive, low-maintenance leisure space for all-year use. The property includes two bedrooms (one ensuite), a separate bathroom, off-street parking and a small raised garden.
Practical points for buyers: the unit is newly built in 2023, has excellent mobile reception and on-site WiFi (advertised up to around 58Mbps). Site fees are £3,500 per year and utilities are metered from the park. Tenure is not specified, so purchasers should confirm ownership type and any site licence conditions before committing.
The lodge is compact with relatively low ceilings, so space feels cosy rather than expansive. Broadband in the wider area is reported very slow, which may affect long-stay residents or remote workers despite the site WiFi. The park provides 52-week access and parking, making this a straightforward choice for holiday use, short-term lettings or a lock-up-and-leave second home.
Overall, this property suits buyers seeking a turn-key lakeside retreat with clear letting appeal, or investors wanting a manageable seaside asset. Be aware of ongoing site fees, confirm tenure, and check any park rules or letting restrictions during your due diligence.
2 bedroom park home for sale in Coots Lane, Mumby, Mumby, LN13 — £59,950 • 2 bed • 1 bath • 876 ft²
2 bedroom park home for sale in Coots Lane, Mumby, Mumby, LN13 — £59,950 • 2 bed • 1 bath • 876 ft²
2 bedroom park home for sale in Coots Lane, Mumby, Mumby, LN13 — £59,950 • 2 bed • 1 bath • 876 ft²
2 bedroom park home for sale in Coots Lane, Mumby, Mumby, LN13 — £59,950 • 2 bed • 1 bath • 876 ft²
3 bedroom park home for sale in Coots Lane, Mumby, Alford, LN13 — £74,950 • 3 bed • 1 bath • 494 ft²
2 bedroom property for sale in Woodthorpe Leisure Park, Woodthorpe, Alford, LN13 — £199,995 • 2 bed • 2 bath • 750 ft²


































































