Chain-free four-bedroom property with large garden and double garage in peaceful MK3 location.
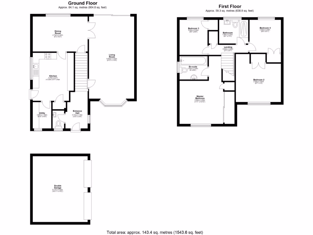
Chain-free four-bedroom detached house with en suite and cloakroom
Large private rear garden suitable for family use and entertaining
Spacious double garage plus off-street parking for two vehicles
Double glazing installed after 2002; filled cavity walls
Mains gas boiler and radiators; fast broadband and excellent mobile signal
Constructed 1976–1982 — may need updating in places
Tenure not specified; important for buyers to confirm
Council tax band above average for the area
This chain-free four-bedroom detached house on Normandy Way offers practical family living in a quiet Milton Keynes neighbourhood. The property benefits from a spacious double garage, off-street parking and a large private rear garden—ideal for children, pets and summer entertaining. Internally there is an en suite to the master bedroom and a convenient downstairs cloakroom.
Built in the late 1970s–early 1980s, the house is an average-sized family home with double glazing installed after 2002, mains gas boiler and radiators. Broadband speeds are fast and mobile signal is excellent, which suits home working or busy modern households. The area is affluent with low crime rates and several well-rated primary and secondary schools within easy reach.
Buyers should note a few practical considerations: the tenure is not specified and council tax is above average for the area. As a property of its age, some rooms may benefit from updating or minor maintenance, although the filled cavity walls and later glazing reduce immediate thermal upgrade needs.
Overall, this is a comfortable, well-located four-bedroom house offering scope to personalise and add value, particularly for families seeking space, a large garden and good local amenities.
4 bedroom detached house for sale in Beacon Court, Furzton, Milton Keynes, MK4 — £550,000 • 4 bed • 2 bath • 1292 ft²
4 bedroom detached house for sale in The Boundary, Oldbrook, MK6 — £450,000 • 4 bed • 2 bath • 1238 ft²
4 bedroom detached house for sale in Lanthorn Close, Neath Hill, MK14 — £380,000 • 4 bed • 1 bath • 1022 ft²
3 bedroom end of terrace house for sale in Downs Barn Boulevard, Downs Barn, Milton Keynes, MK14 — £290,000 • 3 bed • 1 bath • 967 ft²
4 bedroom town house for sale in Turneys Drive, Wolverton Mill, Milton Keynes, MK12 — £465,000 • 4 bed • 3 bath • 837 ft²
5 bedroom detached house for sale in Maritime Way, Brooklands, MK10 — £745,000 • 5 bed • 4 bath • 2194 ft²


















































































