Chain-free 2-bed terrace in CV5 — ideal for first-time buyers or investors.
Chain free mid-terrace, freehold ownership
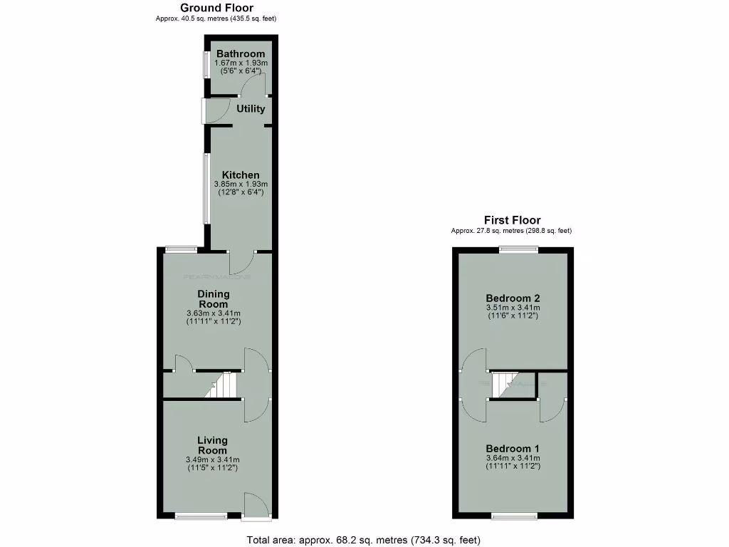
A chain-free, mid-terraced home offering straightforward living or rental potential in CV5. The layout includes two reception rooms, a galley kitchen and a ground-floor bathroom — practical for everyday family use or a buy-to-let refurbishment.
The property benefits from two large first-floor bedrooms and double glazing (installed post-2002), with gas central heating via boiler and radiators. A low-maintenance rear garden and on-street parking add convenience. The house totals approximately 936 sq ft and sits on a small plot in a city neighbourhood popular with students and professionals.
Notable negatives are a high local crime rate, a small rear garden/plot and solid-brick walls likely lacking cavity insulation. The kitchen is dated and will benefit from modernisation to improve finish and energy efficiency; the property is best suited to buyers prepared to carry out cosmetic or modest structural upgrades.
This freehold, traditional terrace with an EPC C and very cheap council tax represents an accessible purchase for first-time buyers seeking value or investors targeting steady rental demand. Viewings are recommended to assess scope and costs for any desired updates.
2 bedroom terraced house for sale in Shakleton Road, Earlsdon, Coventry, CV5 — £179,950 • 2 bed • 1 bath • 710 ft²
2 bedroom terraced house for sale in Kirby Road, COVENTRY, CV5 — £160,000 • 2 bed • 1 bath • 674 ft²
2 bedroom terraced house for sale in Ludlow Road, Earlsdon, Coventry, CV5 — £165,000 • 2 bed • 1 bath • 647 ft²
2 bedroom terraced house for sale in Kingston Road, Earlsdon, CV5 — £200,000 • 2 bed • 1 bath • 645 ft²
3 bedroom terraced house for sale in Woodway Lane, Walsgrave, Coventry, CV2 — £190,000 • 3 bed • 2 bath • 716 ft²
3 bedroom terraced house for sale in Stepney Road, Stoke Heath, Coventry, West Midlands, CV2 — £170,000 • 3 bed • 1 bath


























































